
Predaj bytu 4+1 • 111 m² bez realitkyBerlin Friedenau Berlin 12161
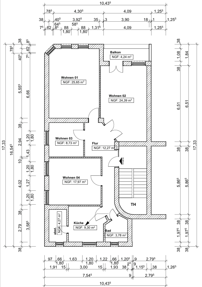
Tento klasický poklad staršej stavby sa nachádza v reprezentatívnom viacfamilijnom dome z roku 1910 s bohato členěnou štukovou fasádou, výklenkovým/turmovým elementom a malou predzáhradou. Dom je udržiavaný; vstupná hala a schodisko si zachovávajú pekné historické detaily ako ozdobné polia, drevené zábradlia a ornamentované okná. Byt ponúka cca 110,6 m², rozdelených na štyri izby, kuchyňu a denné sprchové kúpeľne. Balkon rozširuje obytný priestor do exteriéru. Originálne vybavenie, ako sú dverové dvojsklá s dreveným rámom, parkety/drevené podlahy a štukové detaily, podčiarkuje jeho šarm. Kúrenie zabezpečuje plynové podlažné kúrenie; je k dispozícii aj domofón. Celkovo je budova udržiavaná; voľný byt už bol zmodernizovaný, avšak podľa nárokov si môže vyžadovať rekonštrukciu. Tým otvára atraktívne možnosti úpravy a perspektívu zhodnotenia nielen pre užívateľov, ale aj pre kapitálových investorov prostredníctvom vkusného zlepšenia. Klasická dispozícia je vhodná pre rodiny, páry s možnosťou home office alebo reprezentatívne bývanie v pokojnej, mestskej lokalite. Zoznam chránených objektov celého komplexu zachováva architektonický charakter a robí z nehnuteľnosti vzácnu príležitosť v žiadanej lokalite.
Friedenau, časť okresu Tempelhof-Schöneberg, je považovaná za zelenú Gründerzeit lokalitu s drobnými komunitnými štvrtami. Stromami okorenený juhozápadný korzo ponúka príjemnú, mestskú obytnú atmosféru. Kaviarne (cca 20 m), reštaurácie (cca 50 m) a miestne obchody (cca 450 m) sa nachádzajú v pešej vzdialenosti; na nedalekom Breslauer Platz obohacuje ponuku aj týždenný trh. Pre oddych slúžia zelené plochy v bezprostrednom okolí (cca 280 m) ako aj Volkspark Wilmersdorf a Fennsee. Dopravné spojenie je vynikajúce: Stanica metra Friedrich-Wilhelm-Platz (U9, cca 500 m) rýchlo spája s City West a Schloßstraße. Autobusové linky sú dostupné na najbližšej zastávke (cca 150 m). Prostredníctvom uzla Innsbrucker Platz je diaľnica A100/A103 (cca 1,5 km) rýchlo dostupná; diaľkový vlakový uzol Südkreuz je vzdialený približne 4 km a letisko BER asi 23 km. Nakupovanie a gastronómia pozdĺž Bundesallee, Rheinstraße a Schloßstraße sú pohodlne dostupné – ide o lokalitu, ktorá spája pokojné bývanie so stručnými cestami do mesta.
Parametre nehnuteľnosti
| Vek | Nad 50 rokov |
|---|---|
| Stav | Pred rekonštrukciou |
| Poschodie | 2. poschodie |
| PENB | D - Menej hospodárne |
| Cena za jednotku | 6 171 € / m2 |
| Dostupné od | 5. 12. 2025 |
|---|---|
| Dispozícia | 4+1 |
| Číslo inzerátu | 970613 |
| Úžitková plocha | 111 m² |
Čo táto nehnuteľnosť ponúka?
| Balkón | |
| MHD 2 minúty pešo |
| Pivnica |
V okolí nehnuteľnosti nájdete
Stále hľadáte to pravé?
Nastavte si strážneho psa. Ponuky vybrané na mieru dostanete súhrnne 1× denne e-mailom. S Premium profilom máte po ruke rovno 5 strážcov a keď sa niečo objaví, informujú vás obratom.
























