
Prenájom bytu 3+1 • 72 m² bez realitkyKozácká, Praha - Vršovice
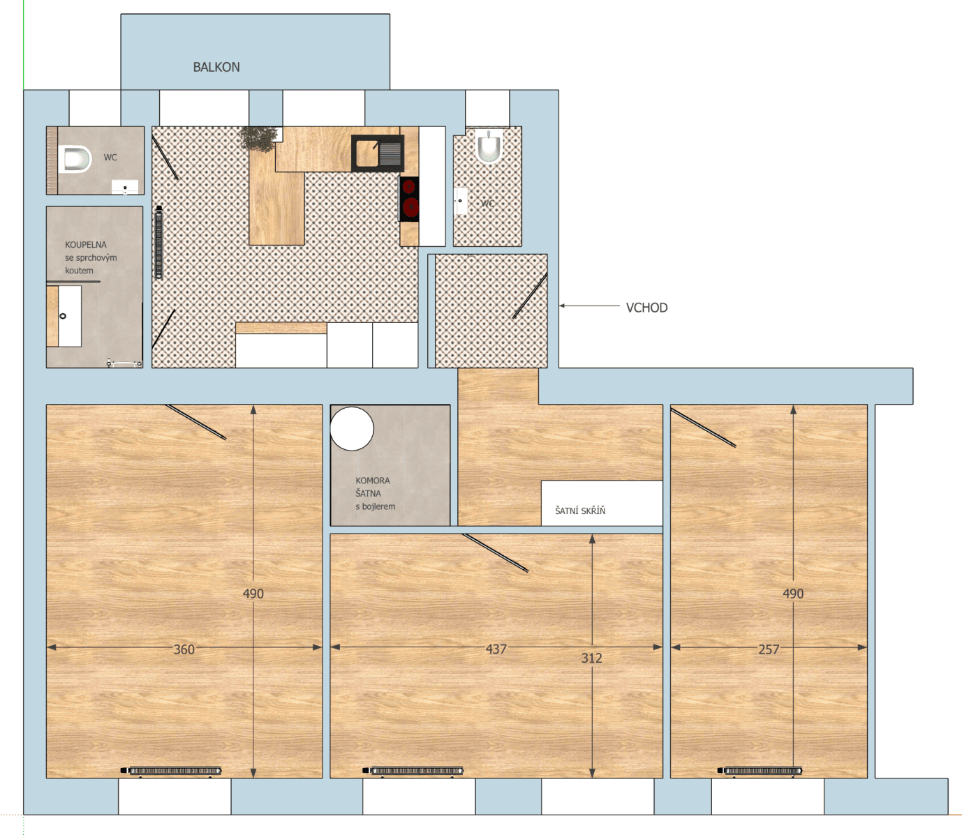
Nabízím k dlouhodobému pronájmu nově zrekonstruovaný byt 3+1 o rozloze 72m2 s balkonem v atraktivní části Vršovic u vstupu do parku Grébovka.
Byt je možné využít pro rodinu nebo jako sdílené bydlení pro až 5 osob.
Nájem za celý byt pro 1 rodinu 35000,-/měsíc
Při sdíleném bydlení po pokojích cena takto:
Ložnice 1 - 12000,-Kč/měsíc (vhodné pro 1 osobu)
Ložnice 2 - 13200,-Kč měsíc (vhodné pro 1-2 osoby)
Ložnice 3 - 14800,-Kč měsíc (vhodné pro 2 osoby)
Zálohy na poplatky celkem 5000,-Kč/měsíc + elektřina (vyúčtovatelné 1x ročně - el. chodba, topení, voda, popelnice, úklid chodby)
Elektřina v bytě se převede na nájemce.
Byt je sitován ve II.NP bytového domu, je světlý, útulný, čerstvě po rekonstrukci, vše je nové. Jsou zde 3. samostatné uzamykatelné neprůchozí pokoje, 2x WC s umyvadly, koupelna se sprchovým koutem, kuchyně s novou kuchyňskou linkou, jídelním stolem a všemi spotřebiči - indukční deska, el. trouba, mikrovlnka, lednice s mrazákem a myčka. Z kuchyně je vstup na balkon orientovaný do zahrady. Dále je zde vstupní předsíň, chodba se šatní skříní, šatna s bojlerem a přípravou na pračku.
V listopadu 2025 skončila v domě rekonstrukce stupaček, elektřiny a plynu. Do bytu je přiveden optický kabel od postytovale Vodafon. Každý pokoj má svou internetovou zásuvku. El. bojler má možnost připojení na levný proud. Vchodové dveče fungují na čipy a v bytech jsou tablety pro videozvonky.
Ulice Kozácká je klidná, ale již pár metrů odsud můžete zažít bohatý kulturní a společenský život. 50m od domu se nachází Havlíčkovy sady (Grébovka) s krásnou Grébeho vilou a Viničním altánem, kde probíhají vinobraní. Mimo jiné se zde pořádají různé kulturní akce a festivaly, letní kino, divadlo a v zimě ledové kluziště. Sousední ulice Krymská je křížencem pařížského Montmartru a berlínského Kreuzbergu. Každoročně zde probíhá festival Korso Krymská s živou hudbou a kulinářskými specialitami. V oblasti se nachází bezpočet kaváren, restaurací a barů např. vyhlášené kino a bar u Pilotů. Francouzská pekárna La Caveau pro čerstvé pečivo ke snídani. V ulici je též školka. M Náměstí míru 11 min. pěšky, tramvaj zast. Jana Masaryka 7min.
Parametre nehnuteľnosti
| Dostupné od | 1. 12. 2025 |
|---|---|
| Výstavba budov | Tehla |
| Vybavené | Čiastočne |
| Číslo inzerátu | 969806 |
| Úžitková plocha | 72 m² |
| Stav | Veľmi dobrý |
|---|---|
| Dispozícia | 3+1 |
| Poschodie | Prízemie |
| Umiestnenie | Tichá časť |
| Cena za jednotku | 486 CZK / m2 |
V okolí nehnuteľnosti nájdete
Stále hľadáte to pravé?
Nastavte si strážneho psa. Ponuky vybrané na mieru dostanete súhrnne 1× denne e-mailom. S Premium profilom máte po ruke rovno 5 strážcov a keď sa niečo objaví, informujú vás obratom.
























