
Prenájom bytu 4+1 • 106 m² bez realitkyMondstr. 8 Aschheim Aschheim Bayern 85609
Mondstr. 8 Aschheim Aschheim Bayern 85609MHD 3 minúty pešo • Výťah- 4 izbový byt
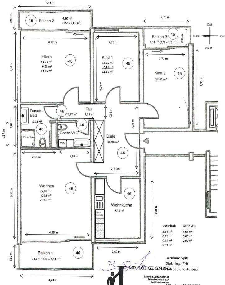
- 3 balkóny
- 1 hostínske WC (modernizované v roku 2018)
- 1 kúpeľňa so sprchou (modernizovaná v roku 2018)
- Internet do 1.000 Mbit/s (momentálne cez kábel, môže však fungovať aj cez DSL, avšak s nižšou rýchlosťou)
- Interiérové dvere vymenené (2020)
- Okná v detskej izbe a kuchyni vymenené (2025)
- Elektrická závesová lišta v spálni
- Elektrické rolety v detskej izbe (2025)
- Zabudovaná kuchyňa vrátane kvalitných elektrospotrebičov (2023)
- Parkety v predsieni, kuchyni a izbách, dlaždice vo WC a kúpeľni
- IKEA Pax skrine v spálni zostávajú v byte
- Podlahové krytiny na balkónoch zostávajú
- Suterénne úložné priestory
Obec Aschheim, so svojimi časťami Aschheim a Dornach, susedí priamo na východe s bavorským hlavným mestom Mníchov. Vyznačuje sa vysoko kvalitným bývaním, pestrou ponukou kultúrnych podujatí, množstvom športových a voľnočasových aktivít a združeniami, ktoré umožňujú skvelé kontakty pre mladých aj starých.
V kultúrnom dianí Aschheimu sa konajú okrem iného koncerty, divadelné predstavenia, čítania, filmové premietania či výstavy. Okrem mnohých športových klubov ponúkajú ďalšie možnosti voľnočasových aktivít napríklad v "Roberto Beach" pri hraní volejbalu, vo vodnom lyžovaní, v lanovom parku alebo na dvoch golfových ihriskách (18 a 9 dier). V lete lákajú na kúpanie a oddych Heimstettener See alebo Feringasee vzdialený približne 7 km, oba s pivnými záhradami.
Aschheim je rodinne orientovaná obec, ktorá výborne zabezpečuje starostlivosť o deti. V obci nájdete niekoľko materských škôl, základných aj stredných škôl. Gymnázium sa nachádza v Kirchheime, vzdialenom 3 km, pričom gymnázium priamo v Aschheime bude otvorené na školský rok 2026/2027. Takisto tu nájdete lekárov, nákupné možnosti všetkých druhov, ako aj reštaurácie a podniky pohostinstva. "Riem-Arcaden" s množstvom obchodov je vzdialených iba približne 5 km.
Výborná prepojenosť MHD – 4 minúty pešo (autobusová linka 263 alebo 285 – trasa Ismaning-Haar, prípadne 234 smerom Unterföhring; U2/Riem, S2/Riem) a zároveň prístup k diaľniciam smerom Salzburg, Nürnberg/Stuttgart a Passau.
- cca 10 km (cca 11 min.) do Mníchova
- cca 15 km (cca 22 min.) do centra Mníchova, Marienplatz
- cca 28 km (cca 28 min.) na Mníchovské letisko
Fotografie sú momentálne s nábytkom. V byte zostávajú len zabudovaná kuchyňa, kúpeľňový/WC nábytok a PAX skrine v spálni. Prípadne ešte viac podľa dohody.
K bytu nepatrí žiadne parkovacie miesto v garáži. Momentálne je prenajaté za 60 €/mesiac. V prípade potreby môžem hovoriť s prenajímateľom, aby budúci nájomca mohol uzavrieť novú nájomnú zmluvu na parkovacie miesto.
Byt je dostupný od 01.03.26 alebo podľa dohody.
Parametre nehnuteľnosti
| Vek | Nad 50 rokov |
|---|---|
| Stav | Dobrý |
| Poschodie | 2. poschodie z 5 |
| PENB | E - Nehospodárne |
| Cena za jednotku | 20 € / m2 |
| Dostupné od | 1. 4. 2026 |
|---|---|
| Dispozícia | 4+1 |
| Číslo inzerátu | 968932 |
| Úžitková plocha | 106 m² |
Čo táto nehnuteľnosť ponúka?
| Balkón | |
| Pivnica | |
| MHD 3 minúty pešo |
| Bezbariérový prístup | |
| Výťah |
V okolí nehnuteľnosti nájdete
Stále hľadáte to pravé?
Nastavte si strážneho psa. Ponuky vybrané na mieru dostanete súhrnne 1× denne e-mailom. S Premium profilom máte po ruke rovno 5 strážcov a keď sa niečo objaví, informujú vás obratom.

















