
Predaj domu • 170 m² bez realitky, Dolné Sasko
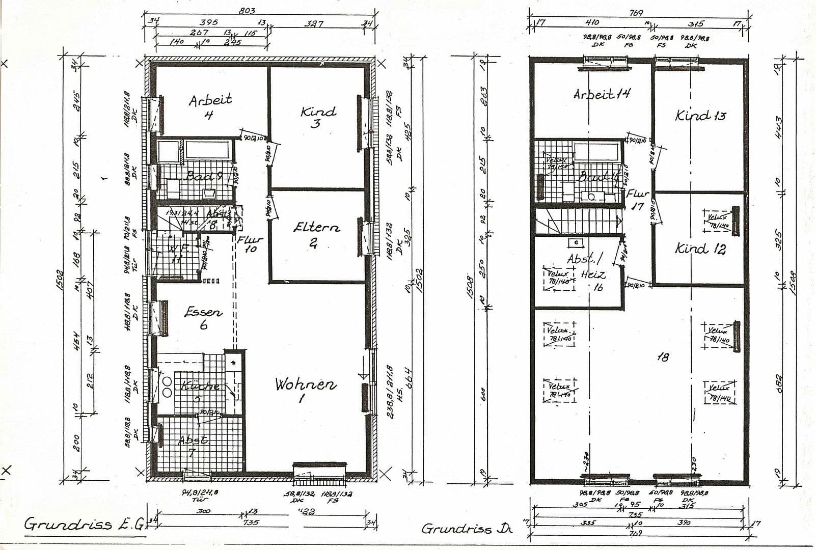
, Dolné SaskoMHD 1 minúta pešo • Parkovanie • GarážVitajte v malebnom Overi, očarujúcej štvrti Seevetalu. Tu nájdete priestranný dom v tichej lokalite, ktorý je ideálny pre rodiny a dve generácie. S celkovou rozlohou 170 metrov štvorcových a 8 svetlými izbami ponúka tento dom dostatok priestoru pre vašich blízkych. Disponuje 2 kúpeľňami, 2 dobre vybavenými kuchyňami a 3 terasami, ktoré vás pozývajú na oddych vonku. Záhrada navyše poskytuje priestor pre hry a voľnočasové aktivity. Bola novooformovaná s dôrazom na nízku náročnosť údržby.
Energetický preukaz je k dispozícii. Dom je vykurovaný zemným plynom. Energetická spotreba podľa energetického preukazu je 95,9 kWh na meter štvorcový, čím dom dosahuje energetickú triedu C.
Poloha nemôže byť lepšia. V bezprostrednej blízkosti nájdete zastávky autobusových liniek 149 a 548, čo zaručuje vynikajúce spojenie s okolitou obcou. Supermarket a reštaurácie sú dostupné do 350 metrov a DRK materská škola Bullenhausen sa nachádza len 450 metrov od vášho nového domova. Aj školy sú v okolí.
Tento rodinný dom s veľkým priestorom a príjemným prostredím je ideálnym miestom na vytváranie nových spomienok. Dom je navrhnutý ako dom pre viacero generácií a zatiaľ bol využívaný práve touto formou. Nezmeškajte príležitosť a dohodnite si prehliadku ešte dnes!
Dom bol priebežne renovovaný.
V apríli 2020 boli inštalované nové okná s trojitým zasklením a bezpečnostným uzáverom RC2N, ako aj vonkajšie dvere s bezpečnostným uzáverom RC2N.
V máji 2021 dostal obytný a kuchynský priestor na podkroví split klimatizáciu.
V máji 2023 bolo prízemie s kontrolou a čiastočnou obnovou elektroinštalácie zrenovované.
V júni 2024 bola záhrada s terasami a pergolami obnovená.
Parametre nehnuteľnosti
| Vek | Nad 50 rokov |
|---|---|
| Číslo inzerátu | 966955 |
| Plocha pozemku | 634 m² |
| Cena za jednotku | 2 935 € / m2 |
| Stav | Dobrý |
|---|---|
| Úžitková plocha | 170 m² |
| Celkové poschodia | 2 |
Čo táto nehnuteľnosť ponúka?
| Garáž | |
| MHD 1 minúta pešo |
| Parkovanie | |
| Terasa |
V okolí nehnuteľnosti nájdete
Stále hľadáte to pravé?
Nastavte si strážneho psa. Ponuky vybrané na mieru dostanete súhrnne 1× denne e-mailom. S Premium profilom máte po ruke rovno 5 strážcov a keď sa niečo objaví, informujú vás obratom.






















