
Predaj domu 5+1 • 163 m² bez realitky, Severné Porýnie - Westfálsko
, Severné Porýnie - WestfálskoMHD do minúty pešo • Parkovanie • GarážTento výnimočne navrhnutý rodinný dom v pokojnej lokalite Wormersdorf spája moderný dizajn, kvalitné materiály a jedinečnú atmosféru bývania – ideálny pre tých, ktorí hľadajú priestranné bývanie s vytříbeným štýlom.
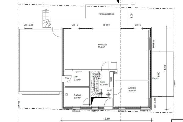
Rozloženie priestorov:
Prízemie:
Svetlý, príjemný vstupný priestor s priamym prístupom do všetkých miestností
Otvorený obývací, jedálenský a kuchynský priestor s plynulými prechodmi
Samostatná kancelária (ideálna na prácu z domu)
Priestranná hosťovská toaleta
Poschodie:
Tri dobre dispozíciou navrhnuté spálne
Moderná kúpeľňa s vaňou a sprchou s voľným prístupom
Otvorená galéria s výhľadom do obývacej izby
Vybavenie a atrakcie:
Trojsklo s ochranným slnečným sklom
Žulová schodisko a veľkoformátová dlažba
Plynový krb so žulovým obkladom
Elektrické žalúzie a markíza s pergolou
Vyhrievaný bazén s krytím
Láskavo upravená, kompletne ohraničená záhrada
Slnečná terasa z Bangkirai dreva
Fotovoltaická inštalácia s úložiskom a wallboxom
Priestranná garáž s dodatočným úložným priestorom
Tento dom ponúka najvyšší komfort bývania, udržateľnú techniku a množstvo premyslených detailov, ktoré robia každodenný život mimoriadne príjemným.
Rheinbach-Wormersdorf patrí medzi mimoriadne žiadané lokality v regióne Rhein-Sieg a spája idylický vidiecky život s mestskou blízkosťou. Tento kúzelný okraj mesta sa nachádza na južnom okraji Rheinbachu a vyniká svojím pokojom a rodinnou atmosférou, obklopený rozľahlými poľami, miernymi kopcami a krásnou prírodou.
Lokalita dokonale spája relaxáciu a každodennú praktickosť: v obci nájdete materskú školu, základnú školu, pekáreň a malé obchody s každodenným tovarom. Blízky Rheinbach ponúka pestrú škálu stredných škôl, nákupných možností, reštaurácií, lekárov a kultúrnych zariadení.
Cestujúci z práce ocenia vynikajúce spojenie – cez diaľnicu A61 a cestnú cestu B266 sa rýchlo dostanete do Bonnu, Kolína nad Rýnom a do Rýnskej oblasti. Rovnako aj železničné spojenie cez Rheinbach zaručuje pohodlnú mobilitu.
Wormersdorf je miesto, kde sa kladie dôraz na kvalitu života: prechádzky prírodou, cyklistické výlety pred Eifelom alebo pokojných večerov na vlastnej terase – tu si vychutnáte pokoj, prehľad a pocit domova.
Niektoré z vysoko kvalitných detailov vybavenia – vrátane technických zariadení a vonkajších priestorov – boli nedávno obnovené alebo doplnené a nachádzajú sa v stave ako nový.
Parametre nehnuteľnosti
| Vek | Nad 50 rokov |
|---|---|
| Dispozícia | 5+1 |
| PENB | B - Veľmi úsporné |
| Plocha pozemku | 522 m² |
| Cena za jednotku | 5 460 € / m2 |
| Stav | Veľmi dobrý |
|---|---|
| Číslo inzerátu | 966077 |
| Úžitková plocha | 163 m² |
| Celkové poschodia | 2 |
Čo táto nehnuteľnosť ponúka?
| Garáž | |
| MHD 0 minút pešo |
| Parkovanie | |
| Terasa |
V okolí nehnuteľnosti nájdete
Stále hľadáte to pravé?
Nastavte si strážneho psa. Ponuky vybrané na mieru dostanete súhrnne 1× denne e-mailom. S Premium profilom máte po ruke rovno 5 strážcov a keď sa niečo objaví, informujú vás obratom.


























