
Prenájom domu 4+1 • 131 m² bez realitkyAppelboomtwiete, 10, , Šlezvicko-Holštajnsko
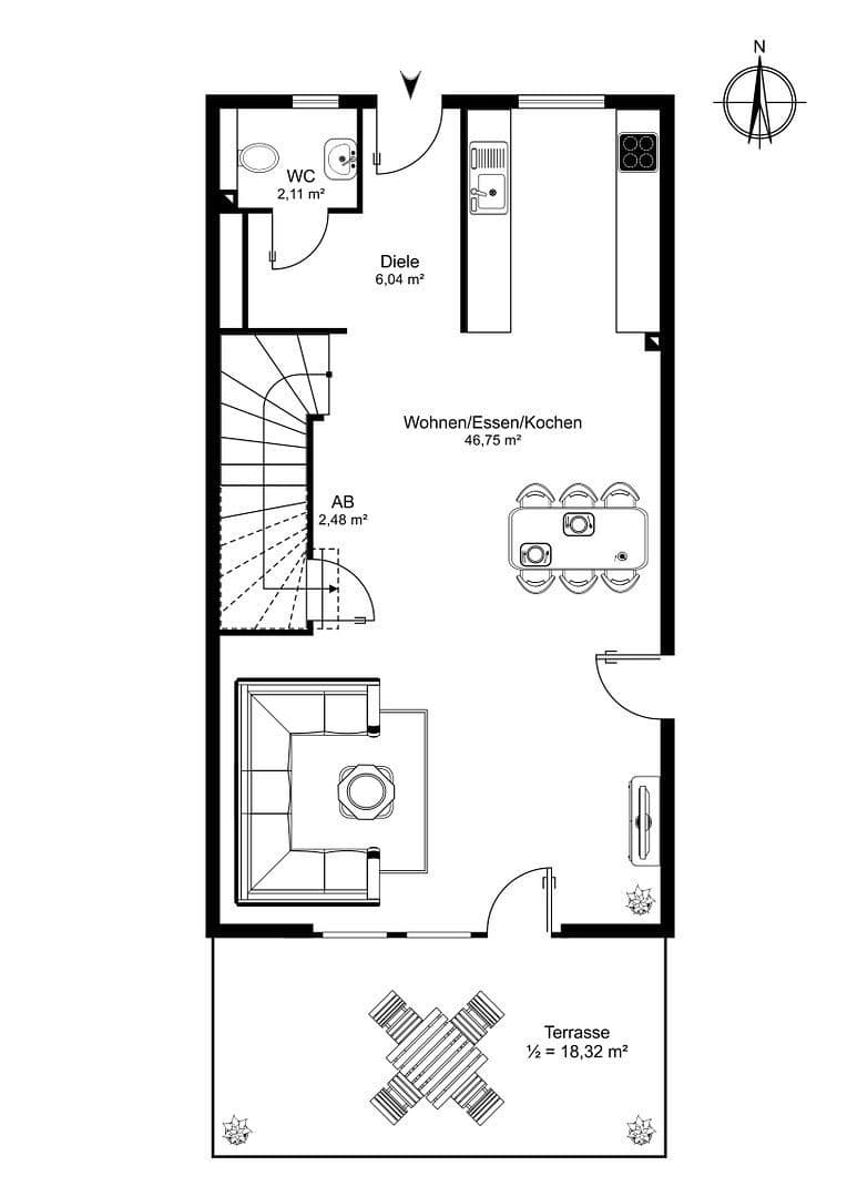
Appelboomtwiete, 10, , Šlezvicko-HolštajnskoMHD 3 minúty autom • ParkovanieNa veľmi peknom pozemku vzniká šesť kvalitných radových domov so štyrmi izbami. Každý dom sa rozprestiera na dvoch poschodiach a má obytnú plochu cca 120–130 m². Domy ponúkajú dostatok priestoru pre rodiny alebo páry a sú vybavené podľa moderných štandardov.
Zažite komfort a udržateľnosť energeticky úsporného domu: Zabezpečte si jeden z týchto šiestich moderných radových domov, ktoré spĺňajú štandard KFW 55 a tým zaručujú vysokú energetickú efektívnosť a nízke náklady na energiu.
Domy majú otvorený obývací priestor v prízemí a tri spálne v patre. K dispozícii je vysoko kvalitná vstavaná kuchyňa. Navyše, na každom poschodí je úložňa a na nerozvinutom podkroví máte ďalší priestor na uskladnenie. Okrem toho ponúkajú radové domy terasy a vlastnú záhradnú časť, ktorá je vám výhradne k dispozícii. Dve vlastné vonkajšie parkovacie miesta dopĺňajú celkovú ponuku.
Prístup na pozemok je zabezpečený pozdĺž vstupov do domov na ľavej strane pozemku a poskytuje priestor pre dvanásť parkovacích miest pre vozidlá. Vpravo od vjazdu sa nachádza verejné ihrisko. Terasové strany domov sú orientované na juh, s výhľadom do zelene a do susedných záhrad.
Vstup na stavenisko bez povolenia nie je dovolený.
V idylickom mieste Alveslohe, s počtom obyvateľov približne 2800, je táto harmónia dosiahnutá. Tu si môžete v plnej miere vychutnať uvoľnený rodinný život, pričom vaše deti budú vychovávané v bezpečí. Očarujúci dedinský charakter, ktorý bol zachovaný v Alveslohe, dokonale ladí s rozmanitosťou kultúrnych ponúk, aké sa inde zriedka nachádzajú. Táto oblasť vám ponúka možnosť buď odpočívať, alebo byť aktívny – úplne podľa vašich osobných predstáv.
Pre milovníkov prírody má Alveslohe čo ponúknuť: malé obce v juhovýchodnej časti okresu Segeberger, chránené biotopy a malé aj veľké vodné plochy. Ak sa v slnečné nedeľné ráno zobudíte a vychutnáte si široký výhľad na polia, môžete pozorovať srnky a zajace a počuť veselý spev vtákov.
Sieť chodníkov, turistických a cyklistických trás bola v posledných rokoch neustále rozširovaná, aby obohatila možnosti voľnočasových aktivít v a okolo Alveslohe. Osobitne známe je Gut Kaden, ktoré si nielen medzi nadšenými golfistami vybudovalo výbornú reputáciu. Nachádza sa len 25 km od živej atmosféry Alsteru, prístavu a nákupných možností. Krátka 20-minútová jazda z hamburgského letiska vás zavedie do vidieckej pohody a do chránenej zóny s typickou holštajnskou krajinou. V priebehu niekoľkých minút autom sa z Alveslohe dostanete do Quickbornu a Hennstedt-Ulzburg. Pobrežia Severného a Baltského mora sú taktiež vzdialené len hodinu jazdy.
• Príťažlivá a moderná vonkajšia fasáda s antracitovým klinkerom.
• Okna od podlahy po strop, trojnásobne zasklené podľa nariadenia o energetickej efektívnosti.
• Podlahové kúrenie v prízemí aj na prvom poschodí.
• Vysokokvalitná vstavaná kuchyňa s elektrickými spotrebičmi.
• Kúpeľňa v patre so sprchou, vaňou, WC a umývadlom.
• Hosťovská toaleta v prízemí.
• Všetky okná so elektrickou ochranou proti slnečnému žiareniu.
• Podkrovie cca 30 m² využiteľné ako úložný priestor.
• Ventilačný systém s prívodom a odvodom vzduchu.
• Domy získavajú vizuálnu ochranu pre optické oddelenie medzi obytnými jednotkami.
Dohodnuté je vylúčenie výpovede na obdobie dvoch rokov, ako aj indexovaný nájom.
Parametre nehnuteľnosti
| Vek | Nad 50 rokov |
|---|---|
| Stav | Novostavba |
| Číslo inzerátu | 963106 |
| Úžitková plocha | 131 m² |
| Celkové poschodia | 2 |
| Dostupné od | 5. 12. 2025 |
|---|---|
| Dispozícia | 4+1 |
| PENB | A - Mimoriadne úsporné |
| Plocha pozemku | 85 m² |
| Cena za jednotku | 14 € / m2 |
Čo táto nehnuteľnosť ponúka?
| Parkovanie | |
| Terasa |
| MHD 3 minúty autom |
V okolí nehnuteľnosti nájdete
Stále hľadáte to pravé?
Nastavte si strážneho psa. Ponuky vybrané na mieru dostanete súhrnne 1× denne e-mailom. S Premium profilom máte po ruke rovno 5 strážcov a keď sa niečo objaví, informujú vás obratom.























