
Predaj bytu 3+kk • 58 m² bez realitkyVladycká, Praha - Hostivař
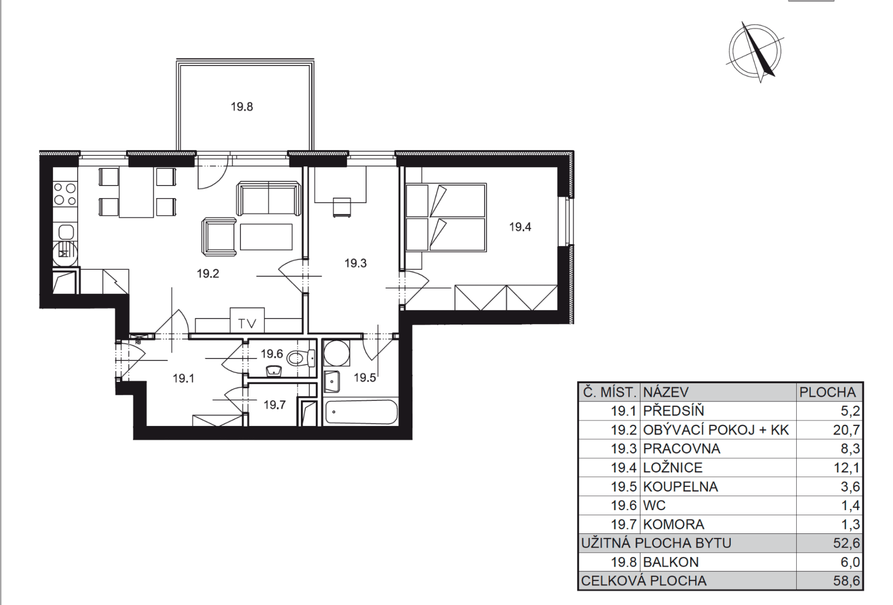
Nabízím k prodeji prostorný byt 3+kk o výměře 58 m², situovaný v novostavbě z kvalitního cihelového zdění. Byt se nachází ve čtvrtém podlaží z celkových pěti a díky výtahu je komfortní přístup zajištěn i pro osoby se sníženou pohyblivostí, což doplňuje bezbariérový přístup. Moderně vybavený interiér vytváří harmonické a útulné prostředí, které je připraveno k okamžitému nastěhování.
Stavba disponuje energetickou štítkovací kategorií B, což zaručuje úsporný provoz a šetrnost k životnímu prostředí. Mezi občanské vybavenosti patří také garážové stání, které výrazně zpříjemní každodenní život, ačkoliv parkovací místa přímo u bytu nejsou. Byt navíc nabízí malý, ale útulný balkón o výměře 6 m², ideální pro ranní kávu či odpočinek po náročném dni.
Celkově se jedná o osobní vlastnictví, kde se snoubí kvalitní provedení a moderní design s praktickými řešeními. Pro více informací a sjednání prohlídky mě neváhejte kontaktovat prostřednictvím zpráv na této platformě.
RK- ne kontaktovat!!
Parametre nehnuteľnosti
| Dostupné od | 21. 10. 2025 |
|---|---|
| Výstavba budov | Tehla |
| Vybavené | Vybavené |
| Číslo inzerátu | 957508 |
| PENB | B - Veľmi úsporné |
| Úžitková plocha | 58 m² |
| Stav | Novostavba |
|---|---|
| Dispozícia | 3+kk |
| Poschodie | 4. poschodie z 5 |
| Vlastníctvo | Osobné |
| Umiestnenie | Tichá časť |
| Cena za jednotku | 141 379 CZK / m2 |
Vyberáte byt?
Majte istotu, že máte všetky dôležité informácie!
Čo táto nehnuteľnosť ponúka?
| Balkón 6 m² | |
| Garáž |
| Bezbariérový prístup | |
| Výťah |
V okolí nehnuteľnosti nájdete
Stále hľadáte to pravé?
Nastavte si strážneho psa. Ponuky vybrané na mieru dostanete súhrnne 1× denne e-mailom. S Premium profilom máte po ruke rovno 5 strážcov a keď sa niečo objaví, informujú vás obratom.





















