
Predaj bytu 3+kk • 58 m² bez realitkyNa Padesátém, Praha - Strašnice
Na Padesátém, Praha - StrašniceMHD do minúty pešo • Čiastočne vybavenéPřímý prodej od majitele – neplatíte žádnou provizi.
Kompletní právní servis je zahrnut v ceně.
Nabízíme ke koupi krásný byt 3+kk v atraktivní lokalitě Praha 10 – Strašnice, pouhých 5 minut chůze od stanice metra Skalka.
Byt prošel v roce 2026 kompletní a nadstandardní rekonstrukcí, která byla realizována s důrazem na kvalitu provedení, funkčnost a moderní design.
Součástí rekonstrukce jsou mimo jiné:
• Kvalitní vinylové podlahy v moderním dekoru
• Plastová okna s trojskly, která zajišťují výbornou tepelnou i zvukovou izolaci
• Bezpečnostní vstupní dveře
• Moderní interiérové dveře s MDF výplní a kvalitním kováním
• Sádrové stěrky na všech stěnách, které vytvářejí dokonale hladký a luxusní vzhled interiéru
Součástí bytu je také moderní kuchyňská linka vybavená vestavěnými spotřebiči značky Gorenje.
Koupelna je řešena v moderním designu a je vybavena kvalitní sanitou Hansgrohe. Samozřejmostí jsou nové rozvody elektřiny, vody i odpadů.
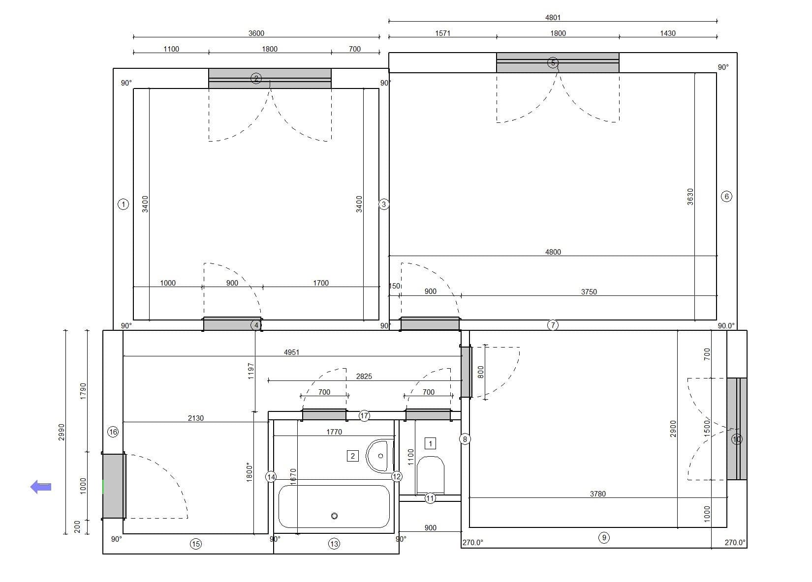
Dispozice bytu nabízí prostorný obývací pokoj s kuchyňským koutem, dvě samostatné ložnice, koupelnu a samostatné WC.
Velkou výhodou je výborná dopravní dostupnost:
• autobusová zastávka přímo před domem
• vlakové nádraží v blízkosti domu
• tramvajová zastávka v docházkové vzdálenosti
• stanice metra Skalka cca 5 minut chůze
V okolí je kompletní občanská vybavenost – školy, školky, obchody, restaurace a služby, vše v pohodlné pěší dostupnosti.
Byt je ideální jak pro vlastní bydlení, tak i jako výborná investiční příležitost.
Pro více informací nebo sjednání prohlídky nás neváhejte kontaktovat.
Parametre nehnuteľnosti
| Dostupné od | 10. 2. 2026 |
|---|---|
| Konštrukcia budovy | Tehla |
| Vybavené | Čiastočne |
| Číslo inzerátu | 989919 |
| PENB | D - Menej hospodárne |
| Úžitková plocha | 58 m² |
| Stav | Veľmi dobrý |
|---|---|
| Dispozícia | 3+kk |
| Poschodie | 2. poschodie z 4 |
| Vlastníctvo | Osobné |
| Umiestnenie | Sídlisko |
| Cena za jednotku | 155 155,17 CZK / m2 |
Čo táto nehnuteľnosť ponúka?
| MHD 0 minút pešo |
V okolí nehnuteľnosti nájdete
Stále hľadáte to pravé?
Nastavte si strážneho psa. Ponuky vybrané na mieru dostanete súhrnne 1× denne e-mailom. S Premium profilom máte po ruke rovno 5 strážcov a keď sa niečo objaví, informujú vás obratom.


















