
Prenájom bytu 2+kk • 51 m² bez realitkyNuselská, Praha - Michle
Nabízím nově kompletně rekonstruovaný byt 2+kk o velikosti 50,9 m2 k dlouhodobému pronájmu ve 4. nadzemním podlaží cihlového domu.
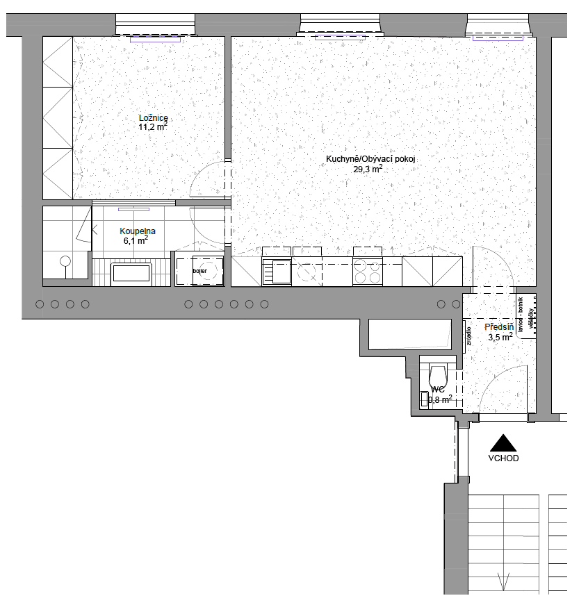
Byt tvoří obývací pokoj s kuchyňským koutem, ložnice, koupelna, samostatná toaleta a předsíň. Kuchyň je vybavena vestavěnými spotřebiči značky Brandt - lednicí s mrazákem, varnou deskou, troubou a myčkou. Okna má s vnitřními žaluziemi a vstup chrání bezpečnostní dveře.
Velkou výhodou je výborná dopravní dostupnost - tramvaje, autobusy, vlaková stanice Praha-Vršovice i metro Pankrác. V okolí se nachází kompletní občanská vybavenost, obchody, kavárny, restaurace, škola i zeleň.
Byt je vhodný pro jednotlivce nebo pár, kteří hledají dlouhodobé, klidné a odpovědné bydlení. Preferuji seriózní zájemce se stabilním příjmem. Uvítám reference z předchozího nájmu nebo zaměstnání. Nájemní smlouva a běžná komunikace probíhá v češtině. Požaduji pojištění odpovědnosti a ověření bezdlužnosti.
Parametre nehnuteľnosti
| Dostupné od | 1. 4. 2026 |
|---|---|
| Konštrukcia budovy | Tehla |
| Vybavené | Čiastočne |
| Vykurovanie | Elektrické |
| Vlastníctvo | Osobné |
| Umiestnenie | Centrum mesta |
| Cena za jednotku | 449 CZK / m2 |
| Stav | Veľmi dobrý |
|---|---|
| Dispozícia | 2+kk |
| Poschodie | 4. poschodie z 6 |
| Číslo inzerátu | 955747 |
| PENB | C - Hospodárne |
| Úžitková plocha | 51 m² |
V okolí nehnuteľnosti nájdete
Stále hľadáte to pravé?
Nastavte si strážneho psa. Ponuky vybrané na mieru dostanete súhrnne 1× denne e-mailom. S Premium profilom máte po ruke rovno 5 strážcov a keď sa niečo objaví, informujú vás obratom.

















