
Prenájom domu 5+kk • 184 m² bez realitkyPod Novou školou, Praha - Nebušice
Pod Novou školou, Praha - NebušiceParkovanie • GarážVyžaduje sa overenie bezdlžnostiModerní rodinný dům se čtyřmi ložnicemi v klidné a vyhledávané lokalitě
Nabízíme k pronájmu nadstandardně vybavený rodinný dům o dispozici 5+kk a užitné ploše 184,3 m². Nemovitost se nachází na pozemku o velikosti 432 m² a nabízí ideální zázemí pro rodinný život i práci z domova. Dům je ihned k nastěhování.
Zahrada a venkovní prostor
Součástí domu je oplocená zahrada s automatickým zavlažováním a terasou navazující přímo na obytnou část. Venkovní prostor je připraven pro relaxaci, posezení nebo například osvěžení během teplých dní – veškeré potřebné technické přípravy jsou již realizovány.
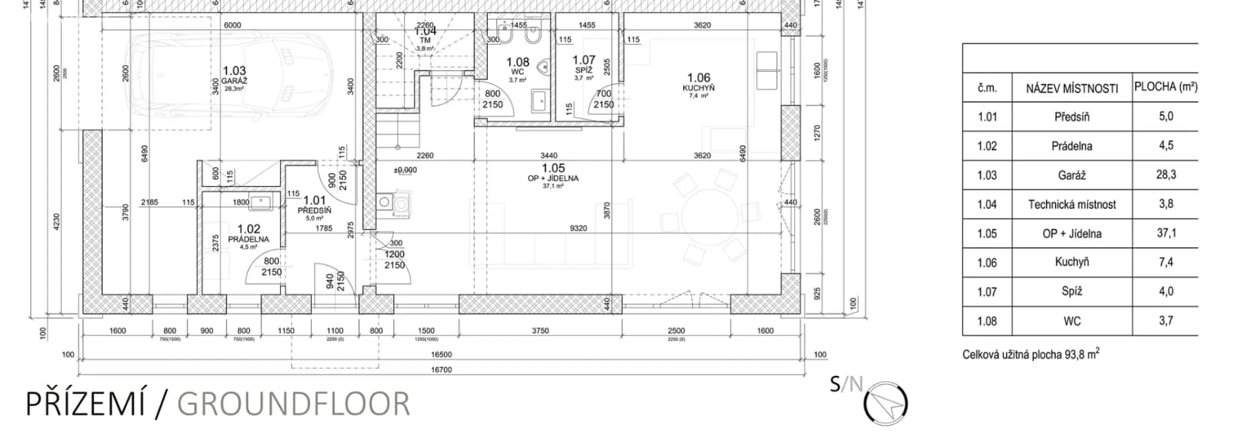
Dispozice – přízemí
V přízemí se nachází zádveří (5 m²), prádelna (4,5 m²), technická místnost (3,8 m²) a garáž (28,3 m²). Kuchyně (7,4 m²) se spíží (4,0 m²) navazuje na prostorný obývací pokoj s jídelním koutem (37,1 m²) a krbem. Nechybí ani samostatná toaleta (3,7 m²).
Dispozice – první patro
Horní podlaží nabízí čtyři ložnice (17,1 m², 14,9 m², 14,4 m² a 12,8 m²), z toho dvě mají vlastní koupelnu (4,1 m²). Dále zde najdete prostornou rodinnou koupelnu (7,4 m²), dvě šatny (3,3 m²) a centrální chodbu (9,1 m²). Všechny obytné místnosti jsou klimatizované. K dispozici je také půdní prostor vhodný pro skladování.
Kvalitní zpracování a technologie
Dům je postaven z kvalitních cihel Vandersanden, s použitím fasádního systému a zateplení značky Baumit a střešní krytinou Nelskamp. O komfortní vnitřní klima se stará podlahové vytápění Gabotherm a klimatizace Toshiba. Samozřejmostí je sanita Laufen a Hans Grohe, keramické obklady Cifre, zabezpečovací systém Jablotron, venkovní žaluzie i příprava na kamerový systém.
Cena a dostupnost
Měsíční nájemné činí 75 000 Kč, zálohy na energie a služby činí přibližně 15 000 Kč/měsíc. Dům je k dispozici ihned.
Modern Family Home with Four Bedrooms in a Quiet, Sought-After Location
We are offering a high-standard family house for long-term rent, featuring a 5-room layout (5+kk) and a total usable area of 184.3 m². The property is situated on a 432 m² plot and provides ideal conditions for family living as well as working from home. The house is available for immediate occupancy.
Garden and Outdoor Space
The fully fenced garden includes an automatic irrigation system and a terrace directly connected to the living area. The outdoor space is well-suited for relaxation, outdoor dining, or refreshing summer moments – all necessary technical preparations for additional outdoor features have already been completed.
Ground Floor Layout
The ground floor includes an entrance hall (5 m²), laundry room (4.5 m²), utility room (3.8 m²), and a spacious garage (28.3 m²). The kitchen (7.4 m²) with a pantry (4.0 m²) flows into an open-plan living and dining area (37.1 m²) featuring a fireplace. A separate guest toilet (3.7 m²) is also located on this floor.
First Floor Layout
Upstairs, there are four bedrooms (17.1 m², 14.9 m², 14.4 m², and 12.8 m²), two of which have private en-suite bathrooms (each 4.1 m²). Additionally, the first floor includes a spacious main bathroom (7.4 m²), two walk-in closets (3.3 m²), and a central hallway (9.1 m²). All bedrooms are equipped with air conditioning. There is also an attic space suitable for storage.
High-Quality Materials and Technology
The house was built using premium materials: Vandersanden bricks, Baumit insulation and façade system, and Nelskamp roof tiles. Comfortable indoor climate is ensured by Gabotherm underfloor heating and Toshiba air conditioning. Additional features include Laufen and Hans Grohe bathroom fixtures, Cifre ceramic tiles, a Jablotron security system, outdoor blinds and preparation for a camera system.
Rent and Utilities
The monthly rent is CZK 75,000, with estimated monthly utility costs of approximately CZK 15,000. The house is available immediately.
Parametre nehnuteľnosti
| Dostupné od | 9. 10. 2025 |
|---|---|
| Výstavba budov | Tehla |
| Vybavené | Nevybavené |
| Poloha domu | Sériové |
| Plocha pozemku | 291 m² |
| Stav | Novostavba |
|---|---|
| Dispozícia | 5+kk |
| Číslo inzerátu | 953776 |
| Úžitková plocha | 184 m² |
| Cena za jednotku | 408 CZK / m2 |
Čo táto nehnuteľnosť ponúka?
| Garáž |
| Parkovanie |
V okolí nehnuteľnosti nájdete
Stále hľadáte to pravé?
Nastavte si strážneho psa. Ponuky vybrané na mieru dostanete súhrnne 1× denne e-mailom. S Premium profilom máte po ruke rovno 5 strážcov a keď sa niečo objaví, informujú vás obratom.













