
Prenájom bytu 1+kk • 27 m² bez realitkyJeronýmova, Praha - Žižkov
Dobrý den,
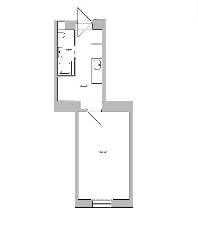
nabízím k dlouhodobému pronájmu prostorný pavlačový 1+kk byt v 1. patře činžovního domu. Byt je nezařízený, hlavní pokoj s dřevěným patrem a oknem do ulice Husitská, kuchyňská linka, koupelna s sprchovým koutem, umyvadlem a skříňkami.
Možnost sklepa. Dům s výtahem.
Adresa: Jeronýmova 88/9, Praha 3, 130 00
Rozloha: 27,6 m2
Topení: elektrická akumulační kamna (pokoj), žebřík v koupelně
Voda: elektrický bojler
Cena: 14 500kč/měsíc
Služby: 1000kč/měsíc/osoba (spotřeba vody, úklid a osvětlení domu, výtah, svoz odpadu)
Poplatky 3. stranám: cca 2500kč/měsíc elektřina, 300-500kč internet optické kabely (O2, UPC, Airwaynet)
Depozit ve výši dvou nájmů.
Nájemní smlouva min. na jeden rok.
Správa a opravy domu v režii majitelky nemovitosti. Sousedská atmosféra.
Volný od 1.4.2025
Pouze pro vážné zájemnce, ne RK. Zájemce prosím o zaslání informací o sobě.
Hello,
I offer for long-term rent of a 1-bedroom apartment on the 1st floor of an apartment building. The apartment is unfurnished, the main room with a wooden top floor and a window towards Husitská street, kitchen, bathroom with shower, sink and cabinets.
Possibility of cellar. House with elevator.
Address: Jeronýmova 88/9, Prague 3, 130 00
Size: 27,6 m2
Heating: electric storage stove (room), ladder in the bathroom
Water: electric boiler
Price: 14 500 CZK/month
Services: 1000 CZK/month/person (water consumption, cleaning and lighting of the house, elevator, waste collection)
3rd party charges: approx. 2500kč/month electricity, 300-500kč internet fibre optic cables (O2, UPC, Airwaynet)
Deposit of two rents.
Lease agreement for min. one year.
Management and repairs of the house under the direction of the owner of the property. Neighbourly atmosphere.
Available from 1.4.2025
Only for serious applicants, not real estate agencies. If you are interested, please send information about yourself. In case of interest, a scheduled visit is possible.
Parametre nehnuteľnosti
| Vek | Nad 50 rokov |
|---|---|
| Stav | Veľmi dobrý |
| Dispozícia | 1+kk |
| Poschodie | Podlahy nie sú špecifikované |
| Vykurovanie | Elektrické |
| Vlastníctvo | Osobné |
| Umiestnenie | Tichá lokalita |
| Cena za jednotku | 537 CZK / m2 |
| Dostupné od | 1. 4. 2026 |
|---|---|
| Konštrukcia budovy | Tehla |
| Vybavené | Nevybavené |
| Prevedenie | Štandardné |
| Číslo inzerátu | 853453 |
| PENB | D - Menej hospodárne |
| Úžitková plocha | 27 m² |
Čo táto nehnuteľnosť ponúka?
| Pivnica 6 m² |
| Výťah |
V okolí nehnuteľnosti nájdete
Stále hľadáte to pravé?
Nastavte si strážneho psa. Ponuky vybrané na mieru dostanete súhrnne 1× denne e-mailom. S Premium profilom máte po ruke rovno 5 strážcov a keď sa niečo objaví, informujú vás obratom.












