
Prenájom bytu 3+kk • 127 m² bez realitkyUralská, Praha - Bubeneč
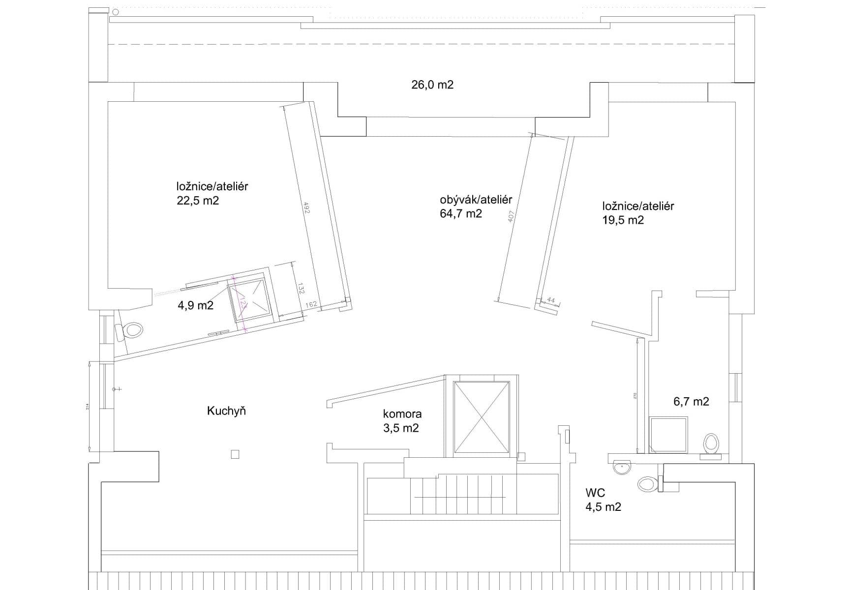
Uralská, Praha - BubenečMHD 3 minúty pešo • Čiastočne vybavené • Výťah • Garáž • Lodžia 26 m²Vyžaduje sa overenie bezdlžnostiNabízím k pronájmu podkrovní byt s dispozicí 3+kk, který se nachází v sedmém patře cihlové budovy v klidné části Prahy. Tento byt o užitné ploše 127 m² a navíc nabízí lodžii o výměře 26 m², kde si můžete vychutnat neuvěřitelný výhled na město. Dostupnost bytu je usnadněna výtahem, což přispívá k bezbariérovému přístupu, a moderní komfort zajišťuje klimatizace v každé místnosti.
Byt je částečně vybaven, což umožňuje si prostor přizpůsobit dle vlastních potřeb a vkusu. K bytu je možnost si pronajmout i garážové stání za 3500Kč/měsíc, což je velkou výhodou pro obyvatele s autem.
Nájemné činí 43 000 Kč měsíčně, přičemž náklady na bydlení jsou ve výši cca 7 500 Kč. (6tis na je na: voda, popelnice, výtah, plyn apod. a 1500Kč je odhad na elektřinu, kterou si přepíše nájemník na sebe.) Při podpisu smlouvy se skládá vratná kauce ve výši 60 000 Kč. Byt bude k nastěhování od 1.června 2026.
Pokud Vás tento nádherný penthouse zaujal, neváhejte napsat a ráda Vám vše ukážu osobně.
Parametre nehnuteľnosti
| Dostupné od | 1. 6. 2026 |
|---|---|
| Konštrukcia budovy | Tehla |
| Vybavené | Čiastočne |
| Vykurovanie | Plynové |
| Vlastníctvo | Osobné |
| Umiestnenie | Tichá lokalita |
| Cena za jednotku | 339 CZK / m2 |
| Stav | Veľmi dobrý |
|---|---|
| Dispozícia | 3+kk |
| Poschodie | 7. poschodie z 7 |
| Číslo inzerátu | 673325 |
| PENB | G - Mimoriadne nehospodárne |
| Úžitková plocha | 127 m² |
Čo táto nehnuteľnosť ponúka?
| Pivnica | |
| Výťah | |
| MHD 3 minúty pešo |
| Garáž | |
| Lodžia 26 m² | |
| Terasa |
V okolí nehnuteľnosti nájdete
Stále hľadáte to pravé?
Nastavte si strážneho psa. Ponuky vybrané na mieru dostanete súhrnne 1× denne e-mailom. S Premium profilom máte po ruke rovno 5 strážcov a keď sa niečo objaví, informujú vás obratom.





















