
Prenájom bytu 3+kk • 74 m² bez realitkyJeremenkova, Praha - Podolí
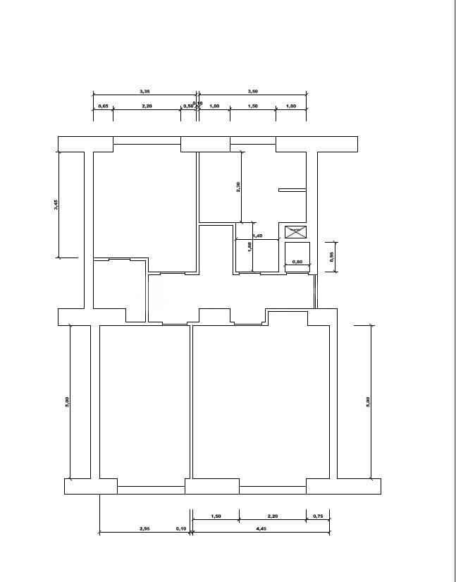
Nabízíme pronájem bytu 3+kk ve 2NP o výměře 75 m2 v cihlovém domě s výtahem v krásné a klidné lokalitě Podolí. Byt je tvořen obývákem s kuchyňským koutem, 2 neprůchozími pokoji (ložnice a dětský pokoj), koupelnou, samostatným wc a šatnou, do které je přístup z ložnice. V bytě je také velká vestavěná skříň (v chodbě) a další vestavěná skříň sloužící jako botník (v chodbě). K bytu náleží malý balkon, situovaný na jih (do ulice Jeremenkova). Byt bude nevybavený.
Obývák a dětský pokoj jsou velice světlé a jsou orientovány do ulice Jeremenkova, koupelna a ložnice jsou situovány do zeleně - do svahu Kavčích Hor, tudíž v ložnici je výhled do zelené stráně.
Koupelna je velice nadstandartně řešena s velkou vanou a se sprchovým koutem, 2 umyvadly, prostorem pro pračku se sušičkou, elektrickým žebříkem a skříní.
Kuchyně je vybavena kuchyňskou linkou IKEA s vestavěnými spotřebiči (myčka šířky 60 cm, elektrická trouba, mikrovlnka, pákový kávovar, lednice s mrazákem) a plynovým sporákem. Je možný vstup na soukromou klidnou zahradu, která patří k bytovému domu.
Je zde velmi dobrá dopravní dostupnost - centrum 12 minut tramvají, metro 7 minut tramvají (Karlovo náměstí) nebo 7 minut autobusem (Budějovická). Byt je po celkové rekonstrukci, vhodný pro rodinu s dětmi.
Vytápění je řešeno centrální kotelnou pro celý bytový dům. Elektřina a plyn budou přepsány přímo na nájemníka.
Zúčtovatelné poplatky bytu 4100 Kč (vodné stočné, teplo, teplá voda, domovní odpad, společné náklady domu).
K nastěhování od 1.4.2026.
Parametre nehnuteľnosti
| Dostupné od | 1. 4. 2026 |
|---|---|
| Konštrukcia budovy | Tehla |
| Vybavené | Čiastočne |
| Vykurovanie | Ústredné |
| Vlastníctvo | Osobné |
| Rekonštrukcia | Kompletné |
| Úžitková plocha | 74 m² |
| Stav | Veľmi dobrý |
|---|---|
| Dispozícia | 3+kk |
| Poschodie | 2. poschodie |
| Číslo inzerátu | 652226 |
| PENB | G - Mimoriadne nehospodárne |
| Umiestnenie | Tichá lokalita |
| Cena za jednotku | 378 CZK / m2 |
Čo táto nehnuteľnosť ponúka?
| Balkón 3 m² | |
| MHD 1 minúta pešo |
| Výťah |
V okolí nehnuteľnosti nájdete



Prenájom bytusídl. Hůrka, Kralupy nad Vltavou - Kralupy nad Vltavou, Středočeský kraj- 3+kk
- 58 m²
16 000 CZK + 2 514 CZK

Stále hľadáte to pravé?
Nastavte si strážneho psa. Ponuky vybrané na mieru dostanete súhrnne 1× denne e-mailom. S Premium profilom máte po ruke rovno 5 strážcov a keď sa niečo objaví, informujú vás obratom.
























