
Prenájom bytu 2+kk • 51 m² bez realitkyČernochova, Praha - Košíře
Černochova, Praha - KošířeVybavené • Balkón 3,79 m²Vyžaduje sa overenie bezdlžnostiNabízím k pronájmu byt 2+kk ve 4. patře v novostavbě v ulici Černochova.
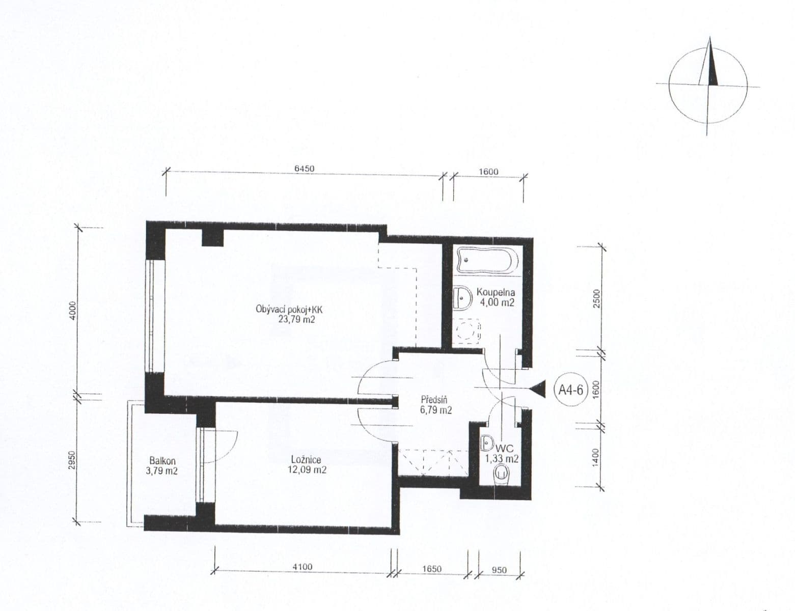
Celková plocha bytu 51,48 m2.
Okna na západ, výhled do zeleně.
Byt je kompletně vybavený, vestavěné skříně na chodbě a v ložnici, pračka, lednice, myčka, televize...
Nábytek na fotkách zůstává v bytě. Samozřejmě je možná domluva něco z vybavení odvézt.
V domě jsou 2 výtahy.
Vchod do domu na čip.
V okolí domu zeleň, prodejna Albert 10 min.
Zastávka autobusu Urbanova - 6 minut na Anděl.
Měsíční nájem 20 000 Kč + voda, topeni, a elektřina 3 000 Kč + 1000 Kč za služby. Kauce 40 000 Kč.
K nastěhování od února, či března 2026.
K bytu možno pronajmout garážové stání za 2000Kč/měsíc.
Bez provize RK.
Parametre nehnuteľnosti
| Vek | 10 - 30 rokov |
|---|---|
| Stav | Veľmi dobrý |
| Dispozícia | 2+kk |
| Poschodie | 4. poschodie z 9 |
| Číslo inzerátu | 447695 |
| PENB | C - Hospodárne |
| Úžitková plocha | 51 m² |
| Dostupné od | 1. 1. 2026 |
|---|---|
| Konštrukcia budovy | Tehla |
| Vybavené | Vybavené |
| Vykurovanie | Ústredné |
| Vlastníctvo | Osobné |
| Umiestnenie | Tichá lokalita |
| Cena za jednotku | 392 CZK / m2 |
Čo táto nehnuteľnosť ponúka?
| Balkón 3,79 m² |
V okolí nehnuteľnosti nájdete
Stále hľadáte to pravé?
Nastavte si strážneho psa. Ponuky vybrané na mieru dostanete súhrnne 1× denne e-mailom. S Premium profilom máte po ruke rovno 5 strážcov a keď sa niečo objaví, informujú vás obratom.


















