
Predaj domu 4+1 • 139 m² bez realitky, Hesensko
Samostatne stojaci rodinný dom v Bad Homburg Ober-Erlenbach bol postavený v roku 1995 a ponúka obytnú plochu približne 140 m² na parcele o rozlohe 304 m².
Aktuálny energetický preukaz bol vyhotovený podľa nových smerníc a pre tento nízkoenergetický dom udelená hodnota je „D“. Kúrenie bolo obnovené koncom roka 2021. Dom nevyžaduje žiadne dodatočné energetické zásahy na obvodovom plášti.
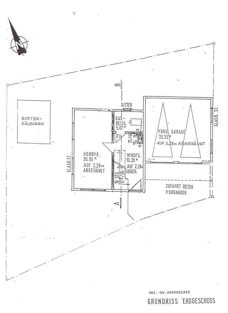
Nehnuteľnosť disponuje štyrmi izbami, pričom jedna z nich bola pôvodne navrhnutá ako dve izby, ktoré je v prípade potreby možné rozdeliť. Okrem toho sú k dispozícii dve garáže a pred domom ležia dve parkovacie miesta.
Rozloženie priestorov je nasledovné:
• Prízemie: dve garáže, vstupná hala s predsieňou, hobby izba a miestnosť na sušenie/kúrenie.
• 1. poschodie: pracovňa, kuchyňa, spiatočná komora, toaleta pre hostí, chodba a priestranný obývací priestor.
• 2. poschodie: spálňa, kúpeľňa, komora a priestranná izba pre hostí.
Obzvlášť je potrebné vyzdvihnúť tichú polohu v slepej uličke na okraji poľa a príjemné susedstvo. Ku domu patrí aj záhradná chata s dažďovými sudmi. Dva pozemky za hlavnou parceľou sa od roku 1997, po dohode s majiteľmi, využívajú bez pachtovného poplatku ako spoločná záhrada.
Bad Homburg Ober-Erlenbach je mimoriadne rodinne priateľská štvrť s vysokou kvalitou života a vynikajúcou infraštruktúrou. Táto lokalita spája pokojné, prírodou obklopené bývanie s dostupnosťou všetkých zásadných zariadení dennej potreby v bezprostrednej blízkosti.
Pre rodiny ponúka Ober-Erlenbach vynikajúce možnosti opatrovania a vzdelávania: veľmi kvalitná základná škola s pripojenou starostlivosťou, tri materské školy, voľnočasové centrum (hort) a možnosti starostlivosti o deti do 3 rokov zabezpečujú optimálnu starostlivosť aj pre najmenších obyvateľov.
Okrem toho štvrť disponuje vlastnou knižnicou, pekárňou, útulnými kaviarňami, poštovým úradom, zmrzlinárňou a mnoho ďalšími zariadeniami. Blízky obchod s potravinami a niekoľko fariem s regionálnymi nákupnými možnosťami ponúkajú pohodlné a zároveň kvalitné zásobovanie.
Dopravné spojenie je taktiež veľmi dobré: viaceré autobusové linky zabezpečujú rýchlu dostupnosť okolitých miest, susedných štvrť a centra Bad Homburgu, ako aj všetkých stredných škôl. Celkovo je Ober-Erlenbach ideálnym miestom pre bývanie rodín, ktoré ocenia pokojné prostredie spojené s vynikajúcou infraštruktúrou.
Parametre nehnuteľnosti
| Vek | Nad 50 rokov |
|---|---|
| Dispozícia | 4+1 |
| PENB | D - Menej hospodárne |
| Plocha pozemku | 304 m² |
| Cena za jednotku | 4 597,12 € / m2 |
| Stav | Dobrý |
|---|---|
| Číslo inzerátu | 1016318 |
| Úžitková plocha | 139 m² |
| Celkové poschodia | 2 |
Čo táto nehnuteľnosť ponúka?
| Balkón | |
| Parkovanie |
| Garáž | |
| MHD 2 minúty pešo |
V okolí nehnuteľnosti nájdete
Stále hľadáte to pravé?
Nastavte si strážneho psa. Ponuky vybrané na mieru dostanete súhrnne 1× denne e-mailom. S Premium profilom máte po ruke rovno 5 strážcov a keď sa niečo objaví, informujú vás obratom.



















