
Predaj domu 5+1 • 160 m² bez realitky, Severné Porýnie - Westfálsko
, Severné Porýnie - WestfálskoMHD do minúty pešo • Parkovanie • GarážTu je preklad do slovenčiny:
Ide o nový, udržiavaný dvojdom, situovaný v zelenej a rodinne príjemnej lokalite v Langenfelde, v blízkosti jazera Richrather.
Budova bola postavená v roku 2020 v masívnej a nízkoenergetickej technológii.
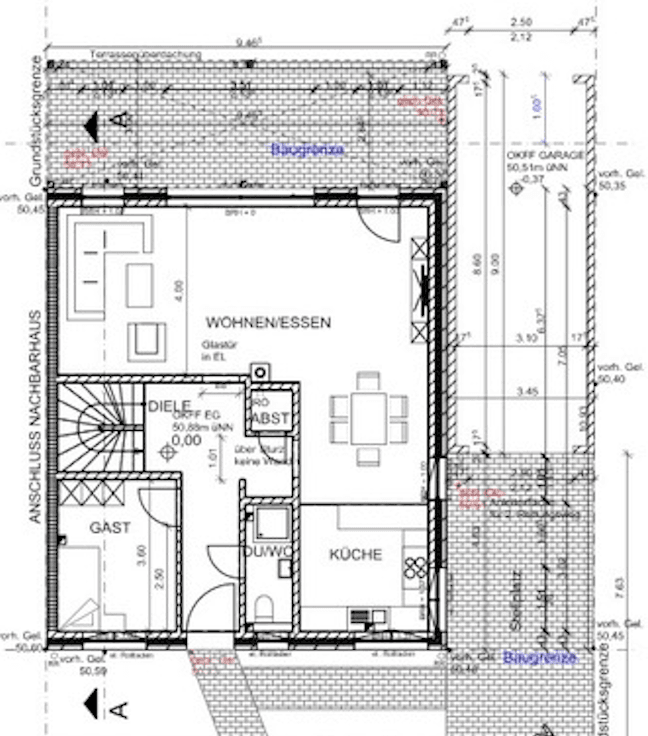
Základová plocha domu je približne 9,40 m x 10,90 m.
Objekt má bezbariérový prístup.
Dom je úplne s podkrovím (suterénom), má sedlovú strechu, je obložený tehličkami a tepelne izolovaný. Neviditeľný pozemok na juhozápadnej strane má štvorcovú plochu 365 m² a ponúka absolútny pokoj a súkromie.
Obe obytné úrovne, ako aj všetky suterénne priestory, majú podlahové kúrenie, pričom každá miestnosť je individuálne ovládateľná.
Všetky miestnosti sú vybavené elektrickými žalúziami s tepelnou a zvukovou izoláciou, trojsklovými oknami s tepelnou aj zvukovou ochranou, viackrát zabezpečenými proti vloupaniu (v prízemí navyše uzamykateľnými), ochrannými sieťami proti hmyzu na oknách a dverách a vnútornými aj vonkajšími parapetmi z granitu a prírodného kameňa.
Vstupné dvere domu sú vloupaním odolné, pripravené na inštaláciu elektrozámku a otváranie pomocou dotykového senzora.
Všetky obytné miestnosti, ako aj veľká suterénna miestnosť, sú vybavené sieťovými zásuvkami.
Vykurovanie domu zabezpečuje udržateľné vzduch-voda tepelné čerpadlo od Stiebel Eltron s podlahovým kúrením a individuálnym ovládaním pre jednotlivé miestnosti – všetko v jednom zariadení bez vonkajšej jednotky, vrátane prípravy teplej vody a ventilačného systému s rekuperáciou tepla. Čerpadlo sa nachádza v suteréne a je možné ho prípadne rozšíriť o funkciu chladenia.
Suterén bol postavený ako vodotesná „biela vaňa“ podľa WU konštrukcie v súlade s normou DIN 18195/6. Má celkovú využiteľnú plochu viac ako 80 m² a strop má výšku 2,30 m. Podlahy sú obložené dlažbou; jedna suterénna miestnosť, s rozlohou presahujúcou 30 m², ponúka široké možnosti využitia, napríklad ako kancelária, herňa, priestor pre oslavy, fitnes alebo podobne. Steny sú prevažne omietnuté, pričom suterénne priestory disponujú obytnou kvalitou. Schodisko vedúce zo suterénu až do horného poschodia je vyhotovené z prírodného granitového kameňa.
10 m² veľká značka vstavaná kuchyňa so vstavanou linkou, indukčnou varnou doskou a Bora odsávacím systémom, chladniaco-mraziacou kombináciou, mikrovlnkou, umývačkou riadu a barovým pultom zapadá optimálne do otvoreného obývacieho a jedálneho priestoru a je zahrnutá v kúpnej cene. Pracovné dosky a zadné steny sú vyrobené z granitu.
V obývacej miestnosti sa navyše nachádza trojsklenený krb pre príjemné večery alebo ako prechodné riešenie pred začiatkom vykurovacej sezóny.
Mesačné prevádzkové náklady sa v súčasnosti pohybujú okolo 300,00 €.
Dom je navyše vybavený alarmovým systémom a vonkajšími kamerami, čo zvyšuje bezpečnosť. Už je vedené prázdne potrubie (leerohr) z podkrovia do suterénu pre plánovanú fotovoltaickú solárnu inštaláciu a v garáži je inštalovaný prívod silného prúdu pre možnú nabíjaciu stanicu pre elektromobily.
Dom je veľmi univerzálny, hodnotu zvyšujúci, postavený s dôrazom na budúcnosť a v vysokej kvalite. Nachádza sa v tichej lokalite, no zároveň centrálne v zóne s utíšenou premávkou, bez prechádzajúceho tranzitu.
Školy, materské školy, rôzne lekárske ordinácie, nemocnica, obchody bežného denného života, reštaurácie a mnoho ďalších zariadení sa nachádzajú v pešej vzdialenosti.
Obevnú dobré dopravné spojenie zabezpečujú diaľnice A3, A59 a cesta B8. Cez S-Bahn je priamy spoj s centrom Düsseldorf a Leverkusenu. Autobusové zastávky č. 785 (smerom do Langenfeldu a centra Düsseldorf) a č. 790 (smerom do Hilden) sú taktiež ľahko dostupné pešo.
Atraktívna dvojdomová polovička ohromí svojim kvalitným interiérom. Nehnuteľnosť ponúka okrem dvoch kúpeľní aj dodatočný priestor v suteréne – sprchovaciu miestnosť s toaletou a saunu – čo poskytuje dostatok priestoru na wellness a starostlivosť o telo. Suterénne priestory sú priestranné a komfortné, a môžu byť určite využité aj komerčne, napríklad ako kancelária. Využiteľná plocha suterénu je 80 m². Na podkroví sa nachádza ďalší úložný priestor s rozlohou približne 40 m², pričom v strednej časti má výšku nad 2 m.
Na hornom poschodí je ešte malý balkón orientovaný na záhradnú stranu (juhozápad).
Priestranná garáž s rozmermi 3,40 x 9,00 m patrí taktiež k domu. Je vybavená elektrickými sekčnými garážovými dverami, ovládanými cez diaľkové ovládanie, a na záhradnej strane navyše disponuje kývacími dverami.
Záhradný domček o rozmeroch 3 x 3 m, s elektrickou prípojkou a ďalšou malou terasou, je vyrobený z masívneho borovicového dreva s hrúbkou 32 mm.
V lete sa využíva vonkajší bazén s rozmermi približne 3 x 6 m.
Zakúpením tejto nehnuteľnosti získate dom, ktorý takmer nenechá priestor pre ďalšie priania a je možné do neho okamžite nastúpiť bez nutnosti veľkých dodatočných úprav.
V prípade záujmu obdržíte podrobné expozičné materiály s detailným popisom vrátane fotografií tejto nehnuteľnosti, ak nám písomne prostredníctvom e-mailu oznámite vaše údaje – meno, adresu a telefónne číslo, na ktorom ste dosiahnuteľní.
Parametre nehnuteľnosti
| Vek | Nad 50 rokov |
|---|---|
| Dispozícia | 5+1 |
| PENB | A - Mimoriadne úsporné |
| Plocha pozemku | 365 m² |
| Cena za jednotku | 5 562,50 € / m2 |
| Stav | Dobrý |
|---|---|
| Číslo inzerátu | 1013888 |
| Úžitková plocha | 160 m² |
| Celkové poschodia | 2 |
Čo táto nehnuteľnosť ponúka?
| Balkón | |
| Pivnica | |
| Parkovanie | |
| Terasa |
| Bezbariérový prístup | |
| Garáž | |
| MHD 0 minút pešo |
V okolí nehnuteľnosti nájdete
Stále hľadáte to pravé?
Nastavte si strážneho psa. Ponuky vybrané na mieru dostanete súhrnne 1× denne e-mailom. S Premium profilom máte po ruke rovno 5 strážcov a keď sa niečo objaví, informujú vás obratom.



















