
Prenájom bytu 2+1 • 55 m² bez realitkyFürstenwalder Straße 2, , Dolné Sasko
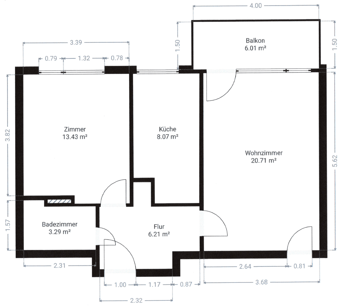
Fürstenwalder Straße 2, , Dolné SaskoMHD 2 minúty pešoVo 2. poschodí Vás čaká moderný 2-izbový byt s obytnou plochou 54,74 m², ktorý je k dispozícii v prvom nástupe po zásadnej rekonštrukcii – všetko bolo zmodernizované!
Byt je v kvalitnom, takmer novom stave a ponúka Vám komfort novostavby. Balkon rozširuje Váš obytný priestor von a vyzýva na oddych na čerstvom vzduchu.
Môžete sa okamžite nasťahovať a nemusíte sa o nič starať!
Nehnuteľnosť sa nachádza v príjemnej lokalite v štvrti Hannover-Misburg. Obchody pre denné potreby sú v pešej vzdialenosti, čo zabezpečuje pohodlnú zásobu.
Doprava verejnou dopravou je výborná: Zastávka električky linky 7 aj autobusová zastávka sú v bezprostrednej blízkosti a umožňujú rýchle a pohodlné spojenie do centra mesta a do okolitých štvrti.
Celkovo lokalita presviedča vďaka svojej dobrej infraštruktúre, výbornej dostupnosti a kombinácii mestského bývania s praktickým prístupom k denným potrebám.
- Prvýkrát po rekonštrukcii
- 2 izby
- 54,74 m² obytného priestoru
- svetlé obytné priestory s kvalitnou masívnou dubovou parketou
- priestranné izby
- nové interiérové dvere
- nová elektroinštalácia
- nové radiátory
- veľký obývací priestor
- všetky miestnosti sú svetlé, namaľované na bielo
- omietnuté hladké steny
- pekný biely hamburger líštový profil v obytných priestoroch
- rekonštruovaná kúpeľňa s priesvitnou sprchou Rainshower so skleneným prvkom
- uterákový radiátor
- dostatok zásuviek a TV prípojiek vo všetkých miestnostiach
- osvetlenie cez stropné spotky v chodbe, kúpeľni a kuchyni
- priradená pivnica
Voľný od teraz.
Nájomné 750,–– €. Nebytné náklady vrátane vykurovacích nákladov 200,–– €
Kaucia 3 mesačné nájomné
V prípade záujmu nám prosím napíšte:
1) Vaše meno,
2) Vaše telefónne číslo,
3) Čomu sa venujete,
4) Koľko osôb sa nasťahuje.
Prehliadky budú možné v najbližšej dobe. Tešíme sa na Váš záujem a následne Vás budeme kontaktovať ohľadom termínu.
Byt je vo fáze dokončovania. Obrázky preto zobrazujú fotky podobného bytu, ktorý disponuje identickou výbavou.
Parametre nehnuteľnosti
| Vek | Nad 50 rokov |
|---|---|
| Stav | Po rekonštrukcii |
| Poschodie | 2. poschodie |
| Úžitková plocha | 55 m² |
| Dostupné od | 15. 4. 2026 |
|---|---|
| Dispozícia | 2+1 |
| Číslo inzerátu | 1013034 |
| Cena za jednotku | 13,64 € / m2 |
Čo táto nehnuteľnosť ponúka?
| Balkón | |
| MHD 2 minúty pešo |
| Pivnica |
V okolí nehnuteľnosti nájdete
Stále hľadáte to pravé?
Nastavte si strážneho psa. Ponuky vybrané na mieru dostanete súhrnne 1× denne e-mailom. S Premium profilom máte po ruke rovno 5 strážcov a keď sa niečo objaví, informujú vás obratom.










