
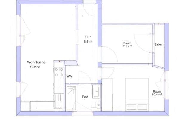
Prenájom bytu 2+1 • 60 m² bez realitkySchulenburger Landstr 55, , Dolné Sasko
Schulenburger Landstr 55, , Dolné SaskoMHD 2 minúty pešoPozor, máme ďalší byt v dome – prosím, prečítajte si aj ďalšie informácie.
2-izbový bungalov s veľkou súkromnou záhradou v Hannover-Hainholz
Krásny, kompletne zrekonštruovaný bungalov postavený v zadnej časti domu (prizemný) s cca 60 m² obytného priestoru. Prvý nástup po kompletnej rekonštrukcii – všetko je nové, vrátane vonkajšej izolácie.
Hlavnou prednosťou je veľká, súkromná záhrada bez výhľadu zvonku (cca 170 m²)
– ideálna na oddych.
Pokojná, no zároveň skvelo centrálná poloha v Hannover-Hainholz.
Zastávka Hainhölzer Markt je vzdialená iba asi 50 metrov a je ľahko dostupná pešo.
Priamo oproti vzniká moderné obchodné centrum s približne 2 855 m² obytného priestoru, 5 820 m² maloobchodnej plochy a 216 parkovacími miestami – perfektná infraštruktúra a ďalšie zhodnotenie lokality.
Obchody, nemocnice, materské školy a školy sa nachádzajú v tesnej blízkosti.
Niektoré fotografie sú staršie; okná a vonkajšia fasáda sú momentálne v rekonštrukcii.
Perfekt vhodné pre páry alebo prácu z domu.
Pri záujme, prosím, ozvite sa.
Prevádzkové náklady
Obsahujú: čerstvú vodu, odpadovú vodu, poistenie budovy, zodpovednosť vlastníka nehnuteľnosti, pozemkovú daň, poplatok za dažďovú vodu, poplatky za komínara, údržbu vykurovacieho zariadenia a odvoz odpadu. Uvedené údaje platia pre 2 osoby.
Typ vykurovania: centrálny plyn.
Ešte na prenájom:
3. poschodie – 2-izbový byt, 55 m², studený nájom 770 €
Byt v zadnej časti domu, prízemie – 2-izbový byt, 60 m², 770 €
Prízemný byt – 2-izbový byt, 40 m², studený nájom 600 €
Parametre nehnuteľnosti
| Vek | Nad 50 rokov |
|---|---|
| Stav | Po rekonštrukcii |
| Číslo inzerátu | 1011492 |
| Cena za jednotku | 15 € / m2 |
| Dostupné od | 1. 5. 2026 |
|---|---|
| Dispozícia | 2+1 |
| Úžitková plocha | 60 m² |
Čo táto nehnuteľnosť ponúka?
| MHD 2 minúty pešo |
| Terasa |
V okolí nehnuteľnosti nájdete
Stále hľadáte to pravé?
Nastavte si strážneho psa. Ponuky vybrané na mieru dostanete súhrnne 1× denne e-mailom. S Premium profilom máte po ruke rovno 5 strážcov a keď sa niečo objaví, informujú vás obratom.


















































