
Predaj domu 6+1 • 200 m² bez realitky, Brandenbursko
Eingebettet in eine ruhige und gepflegte Siedlung im unmittelbaren Landschaftsschutzgebiet vereint dieses außergewöhnliche Haus moderne Architektur mit naturnahem Wohnen auf höchstem Niveau.
Vložený do pokojnej a udržiavanej štvrti v bezprostrednej blízkosti chráneného prírodného územia spája tento výnimočný dom modernú architektúru s bývaním v úzkom kontakte s prírodou na najvyššej úrovni.
Die harmonische Kombination aus Holz, Glas und Stahl sowie die klare architektonische Linie schaffen ein stilvolles und zugleich warmes Wohnambiente.
Harmonická kombinácia dreva, skla a ocele, ako aj jasné architektonické línie vytvárajú štýlové a zároveň útulné bývanie.
Großzügige Glasflächen öffnen den Blick aus den Wohnräumen und dem Garten weit über das Wasser und lassen Innen- und Außenraum miteinander verschmelzen.
Priestranné sklenené plochy otvárajú výhľad z obytných priestorov a záhrady ďaleko cez vodnú hladinu, čím spájajú interiér s exteriérom.
Die Weite, das natürliche Licht, die unmittelbare Nähe zum See und die besondere Ruhe dieses Ortes verleihen dem Haus eine einzigartige Atmosphäre.
Rozľahlosť, prirodzené svetlo, bezprostredná blízkosť k jazeru a zvláštna pokojnosť tohto miesta dodávajú domu jedinečnú atmosféru.
Das Haus überzeugt durch seine besondere Bauweise als Vollmassivholzhaus, eine der hochwertigsten Formen des Holzbaus, die sich deutlich von der klassischen Ständerbauweise abhebt.
Dom zaujme svojou špecifickou konštrukciou – ako dom postavený z masívneho dreva, jedna z najkvalitnejších foriem drevostavieb, ktorá sa výrazne líši od klasickej rámovej stavby.
In Verbindung mit einer modernen Wärmepumpe und ökologischen Materialien erfüllt die Immobilie höchste energetische Ansprüche als nachhaltiges Niedrigenergiehaus.
V kombinácii s moderným tepelným čerpadlom a ekologickými materiálmi spĺňa nehnuteľnosť najvyššie energetické nároky ako udržateľný nízkoenergetický dom.
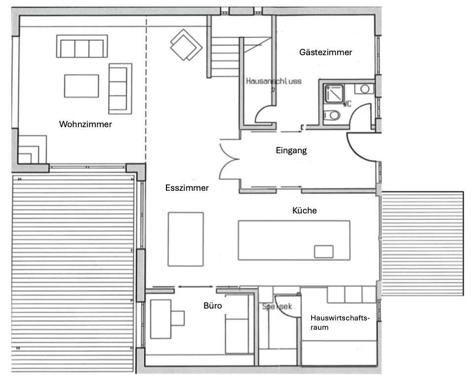
Im Erdgeschoss befindet sich der großzügige Wohn- und Essbereich mit ca. 2,80 m hohen Decken und bildet das Herzstück des Hauses.
V prízemí sa nachádza priestranný obývací a jedálenský priestor so stropmi s výškou približne 2,80 m, ktorý tvorí srdce domu.
Raumhohe Verglasungen sorgen für viel Tageslicht und öffnen die Räume mit einem großzügigen Austritt zur Terrasse mit unverstelltem Blick auf den See.
Od podlahy po strop sa rozprestierajú sklenené plochy, ktoré zabezpečujú hojný príliv denného svetla a otvárajú priestory s veľkorysým prístupom na terasu s nepretržitým výhľadom na jazero.
Über dem Wohnbereich erstreckt sich eine offene Galerie bis unter das Schrägdach und schafft eine beeindruckende Raumhöhe von über 5 Metern.
Nad obývacím priestorom sa rozprestiera otvorená galéria až pod šikmú strechu, čím vzniká pôsobivá výška izieb presahujúca 5 metrov.
Die klaren Sichtachsen und der weite Blick ins Grüne unterstreichen das offene Raumgefühl und die enge Verbindung zur Natur.
Jasné zorné osi a široký výhľad do zelene podčiarkujú otvorený pocit priestoru a úzke spojenie s prírodou.
Die offene Designerküche mit stilvoller Edelstahl-Arbeitsplatte fügt sich harmonisch in diesen Bereich ein und bildet den zentralen Treffpunkt des Hauses.
Otvorená dizajnová kuchyňa so štýlovou pracovnou doskou z nerezovej ocele sa harmonicky začleňuje do tejto časti domu a tvorí jeho centrálny stretnovací bod.
Bodentiefe Fenster öffnen den Raum zur geschützten Frühstücksterrasse im Innenhof.
Podlahou až po strop otvárajú okná priestor na chránenú raňajkovú terasu vo vnútornom dvore.
Hinter der Küche, über eine Schwenktür diskret abgetrennt, liegen der Hauswirtschaftsraum mit funktioneller Arbeitsküche sowie eine zusätzliche Speisekammer, die praktischen Stauraum und kurze Wege im Alltag ermöglichen.
Za kuchyňou, diskrétne oddelené otáčavou dverou, sa nachádza technická miestnosť s funkčnou pracovnou kuchyňou, ako aj dodatočný spižiár, ktorý poskytuje praktický úložný priestor a skracuje denné vzdialenosti.
Ein Büro mit wandintegrierter Sitzbank bietet einen angenehmen Platz zum Arbeiten oder Lesen.
Kancelária so vstavanou lavičkou v stene ponúka príjemné miesto na prácu alebo čítanie.
Ergänzt wird das Raumangebot im Erdgeschoss durch ein Gästezimmer, einen Abstell- und Technikraum sowie ein modernes Gäste-WC mit Dusche.
Priestor v prízemí dopĺňa hosťovská izba, úložná a technická miestnosť a moderné hosťovské WC so sprchou.
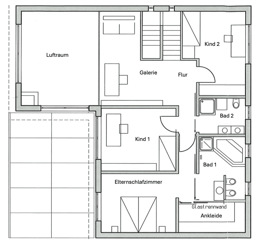
Im Dachgeschoss erwarten Sie eine offene Galerie, drei großzügige Zimmer mit reizvollem Blick auf den See sowie zwei hochwertig ausgestattete Bäder.
Na podkroví vás čaká otvorená galéria, tri priestranné izby s pôsobivým výhľadom na jazero a dve kvalitne zariadené kúpeľne.
Das Master-Schlafzimmer ist als private Einheit konzipiert und vereint Schlafbereich, Bad en Suite und einen begehbaren Kleiderschrank (mit Dachfenster) zu einem exklusiven Rückzugsort.
Hlavná spálňa je navrhnutá ako súkromná jednotka a spája spálňu, kúpeľňu en suite a priestranný šatník (s oknom vo streche) do exkluzívneho útočiska.
Auch der Außenbereich überzeugt durch seine durchdachte Gestaltung.
Aj vonkajší priestor zaujme svojím premysleným dizajnom.
Das zur Südwestseite ausgerichtete Grundstück bietet optimale Sonnenverhältnisse und beeindruckende Ausblicke.
Pozemok orientovaný na juhozápad ponúka optimálne slnečné podmienky a pôsobivé výhľady.
Gewachsene Bäume, ein variables Sonnensegel und Aluminiumjalousien sorgen für angenehme Verschattung.
Zrelé stromy, nastaviteľný slnečník a hliníkové žalúzie zabezpečujú príjemné tiene.
Eine automatische Bewässerungsanlage mit Brunnenwasser erleichtert die Pflege.
Automatický zavlažovací systém s vodou z vlastného studne zjednodušuje údržbu.
Der überdachte Eingangsbereich in eleganter Glas-Stahl-Konstruktion rundet das architektonische Gesamtkonzept ab und bietet einen komfortablen, geschützten Zugang vom Carport und den Garagen direkt ins Haus.
Strešaný vstup v elegantnej sklenenej oceľovej konštrukcii dopĺňa celkový architektonický koncept a ponúka pohodlný, chránený prístup priamo z prístrešku pre autá a garáží do domu.
Ein besonderes Highlight ist die stilvolle Gartensauna mit großzügiger Glasfront, die eine fließende Verbindung zwischen Innen- und Außenraum schafft und den Erholungswert dieses Anwesens unterstreicht.
Špeciálnym lákadlom je štýlová záhradná sauna s priestrannou sklenenou čelou, ktorá vytvára plynulé prepojenie medzi interiérom a exteriérom a umocňuje relaxačný potenciál tejto nehnuteľnosti.
Ein weiteres Highlight dieser Immobilie ist der direkte Zugang zum Falkenhagener See, der sich unmittelbar vor dem Grundstück befindet.
Ďalším vrúcim bodom tejto nehnuteľnosti je priamy prístup k jazeru Falkenhagener, ktoré sa nachádza bezprostredne pred pozemkom.
Hier eröffnen sich vielfältige Freizeitmöglichkeiten wie Schwimmen, Bootfahren oder Spaziergänge am Ufer.
Tu sa otvárajú rôzne možnosti voľnočasových aktivít ako plávanie, člnkovanie alebo prechádzky pozdĺž brehu.
Ein Zuhause für Menschen, die Architektur, Natur und Qualität in perfekter Balance schätzen.
Domov pre ľudí, ktorí ocenia architektúru, prírodu a kvalitu v perfektnom balanse.
Falkensee zählt mit rund 45.000 Einwohnern zu den besonders gefragten Wohnorten unmittelbar an der Berliner Stadtgrenze.
Falkensee, s približne 45 000 obyvateľmi, patrí medzi mimoriadne žiadané bývateľské lokality priamo pri berlínskych hraniciach.
Eingebettet in die reizvolle Natur des Havellandes, umgeben von Wäldern und Wiesen, bietet die Stadt eine vollständig ausgebaute Infrastruktur.
Vložené do pôvabnej prírody Havellandu, obklopené lesmi a lúkami, mesto ponúka plne rozvinutú infraštruktúru.
Dazu gehören vielfältige Schul- und Betreuungsangebote, zahlreiche Einkaufsmöglichkeiten, Dienstleister sowie eine gute medizinische Versorgung – hier finden Sie alles für den täglichen Bedarf.
Medzi ne patrí široká ponuka škôl a opatrovateľských zariadení, početné nákupné možnosti, poskytovatelia služieb ako aj kvalitná zdravotná starostlivosť – tu nájdete všetko pre každodenné potreby.
Für Familien stehen verschiedene Kindertagesstätten wie beispielsweise die „Kita am See“ sowie weitere Einrichtungen in der Umgebung zur Verfügung.
Pre rodiny sú k dispozícii rôzne materské školy, napríklad „Kita am See“ a ďalšie zariadenia v okolí.
Auch für Schulkinder gibt es eine breite Auswahl, etwa Schulen mit Montessori-Konzept, die Europaschule oder den Leonardo-da-Vinci-Campus in Nauen.
Aj pre školákov je tu široký výber – či už ide o školy s Montessori konceptom, európsku školu alebo Leonardo-da-Vinci-Campus v Naune.
Darüber hinaus bietet Falkensee eine attraktive Gastronomieszene mit italienischen Restaurants, Steakhäusern, griechischer Küche und vielen weiteren kulinarischen Möglichkeiten.
Okrem toho Falkensee ponúka atraktívnu gastronomickú scénu s talianskymi reštauráciami, steakhouse, gréckou kuchyňou a mnohými ďalšími kulinárskymi možnosťami.
Das Lebensmodell „in Falkensee wohnen und in Berlin arbeiten“ ist besonders beliebt – sowohl bei Angestellten großer Unternehmen als auch bei Wissenschaftlern und Politikern.
Životný model „bývať vo Falkensee a pracovať v Berlíne“ je mimoriadne obľúbený – nielen medzi zamestnancami veľkých spoločností, ale aj medzi vedcami a politikmi.
Dank der gut ausgebauten Verkehrswege erreichen Sie die Berliner Innenstadt mit dem Auto in etwa 30 Minuten, beispielsweise über die B5/Heerstraße, den Brunsbütteler Damm oder die Falkenseer Chaussee/Nonnendammallee.
Vďaka dobre rozvinutým dopravným cestám sa do berlínskeho centra dostanete autom približne za 30 minút, napríklad cez cestu B5/Heerstraße, Brunsbütteler Damm alebo Falkenseer Chaussee/Nonnendammallee.
Über die B5 besteht zudem eine schnelle Anbindung an das Autobahnnetz, sodass auch Fernziele wie Hamburg oder Hannover zügig erreichbar sind.
Cez B5 je navyše rýchle spojenie s diaľničnou sieťou, takže aj vzdialenejšie destinácie, ako Hamburg či Hannover, sú ľahko dostupné.
Der öffentliche Nahverkehr ist ebenfalls gut organisiert:
Verejná doprava je taktiež dobre zorganizovaná:
Die Buslinien 652, 653 und 655 verbinden Falkensee mit den Bahnhöfen Falkensee, Seegefeld, Finkenkrug und Dallgow-Döberitz sowie mit dem Havelpark.
Autobusové linky 652, 653 a 655 spájajú Falkensee s vlakovými stanicami Falkensee, Seegefeld, Finkenkrug a Dallgow-Döberitz, ako aj s Havelparkom.
Freizeitmöglichkeiten wie das B5 Outlet Center, der Erdbeerhof oder die Döberitzer Heide sind schnell erreichbar und laden zur aktiven Erholung ein.
Voľnočasové aktivity, ako B5 Outlet Center, jahodárska farma alebo Döberitzer Heide, sú rýchlo dostupné a lákajú na aktívny oddych.
Ob Wassersport auf dem See, Joggen im nahegelegenen Wald oder Aktivitäten wie Reiten, Golf und Tennis – die Umgebung bietet zahlreiche Möglichkeiten für eine abwechslungsreiche Freizeitgestaltung.
Či už vodné športy na jazere, beh v susednom lese, alebo aktivity ako jazda na koni, golf či tenis – okolie ponúka množstvo možností pre pestrý voľný čas.
Die drei Regionalbahnhöfe sind mit dem Fahrrad oder Auto in etwa 5 bis 8 Minuten erreichbar.
Tri regionálne vlakové stanice sú dostupné autom alebo bicyklom za približne 5 až 8 minút.
Von dort gelangen Sie in rund 20 Minuten zum Berliner Hauptbahnhof – ideal für Pendler.
Odtiaľ sa dostanete za približne 20 minút na hlavnú stanicu v Berlíne – ideálne pre dochádzajúcich.
Zudem erreichen Sie in weniger als 10 Minuten den Bahnhof Berlin-Spandau mit Anschluss an die U-Bahnlinie U7 sowie an den Fern- und Regionalverkehr (ICE, IC/EC sowie S- und Regionalbahnen).
Okrem toho do stanice Berlin-Spandau sa dostanete za menej ako 10 minút, s prípojom na linku metra U7 a diaľkovú aj regionálnu dopravu (ICE, IC/EC, ako aj S a regionálne vlaky).
Ausstattung & Highlights:
Vybavenie a hlavné výhody:
• Architektenhaus in Vollmassiv-Holzbauweise am See
Architektonický dom vo výstavbe z plne masívneho dreva pri jazere
• Grundstück ca. 1.134 m² in ruhiger Lage mit unverbaubarem Blick zum See
Pozemok cca 1 134 m² v pokojnej lokalite s nezmeniteľným výhľadom na jazero
• Wohnfläche ca. 200 m² mit großzügiger Raumgestaltung
Obytná plocha cca 200 m² s priestranným usporiadaním
• Großzügiger Wohn- und Essbereich mit raumhoher Verglasung und Blick zum See
Priestranný obývací a jedálenský priestor so sklenenými stenami od podlahy po strop a výhľadom na jazero
• Offene Galerie über dem Wohnbereich
Otvorená galéria nad obývacím priestorom
• Südwest ausgerichtetes Gartengrundstück
Záhradný pozemok orientovaný na juhozápad
• Vollständig verzinktes Pultdach – besonders langlebige und hochwertige Ausführung
Úplne pozinkovaná sedlová strecha – mimoriadne odolná a kvalitná konštrukcia
• Niedrigenergiehaus (Energieklasse A) mit neuer Wärmepumpe und ökologischen Baumaterialien
Nízkoenergetický dom (energetická trieda A) s novým tepelným čerpadlom a ekologickými stavebnými materiálmi
• Fussbodenheizung
Podlahové kúrenie
• Exklusive volleingerichtete Schreinerküche mit Edelstahl-Arbeitsplatte
Exkluzívna kompletne zariadená stolárska kuchyňa s nerezovou pracovnou doskou
• Wohnzimmer mit Kamin
Obývacia izba s krbom
• Master-Schlafzimmer mit offen gestaltetem Bad en Suite
Hlavná spálňa s otvorene navrhnutou kúpeľňou en suite
• Frühstücksterrasse und Seeterrasse mit variablen Sonnensegel
Raňajková terasa a jazerná terasa s nastaviteľným slnečníkom
• Türen im EG sind ca. 2,50m hoch
Dvere v prízemí majú výšku približne 2,50 m
• Hochwertige, elektrisch betriebene Außenraffstores mit verstellbaren Lamellen in allen Räumen
Kvalitné, elektricky ovládané vonkajšie žalúzie s nastaviteľnými lamelami vo všetkých miestnostiach
• Separate Arbeitsküche im Hauswirtschaftsraum
Samostatná pracovná kuchyňa v technickej miestnosti
• Überdachter Eingangsbereich in eleganter Glas-Stahl-Konstruktion
Strešaný vstup v elegantnej sklenenej oceľovej konštrukcii
• 2 Einzelgaragen und 1 Carport mit grosszügigem Hofbereich
2 samostatné garáže a 1 prístrešok na auto (carport) s priestranným dvorom
• Modische Zauanlage mit elektrischem Schiebetor und Hoftür
Moderné oplotenie s elektrickou posuvnou bránou a dverami do dvora
• Separates Saunahaus mit Glasfront und Außenjalousie
Samostatný sauna domček s čelnou sklenenou konštrukciou a vonkajšími žalúziami
• Automatische Beregnungsanlage (5 Regelkreise) mit aus eigenem Brunnen
Automatický zavlažovací systém (5 okruhov) s vodou z vlastnej studne
• 2 Gartenhäuser für Gerätschaften und Werkbank
2 záhradné domčeky pre náradie a dielňu
• Einbauschränke im Flurbereich
Vstavané skrine v predsieni
Parametre nehnuteľnosti
| Vek | Nad 50 rokov |
|---|---|
| Dispozícia | 6+1 |
| PENB | A - Mimoriadne úsporné |
| Plocha pozemku | 1 134 m² |
| Cena za jednotku | 8 125 € / m2 |
| Stav | Po rekonštrukcii |
|---|---|
| Číslo inzerátu | 1010799 |
| Úžitková plocha | 200 m² |
| Celkové poschodia | 2 |
Čo táto nehnuteľnosť ponúka?
| Bezbariérový prístup | |
| Parkovanie | |
| Terasa |
| Garáž | |
| MHD 1 minúta pešo |
V okolí nehnuteľnosti nájdete
Stále hľadáte to pravé?
Nastavte si strážneho psa. Ponuky vybrané na mieru dostanete súhrnne 1× denne e-mailom. S Premium profilom máte po ruke rovno 5 strážcov a keď sa niečo objaví, informujú vás obratom.
































