
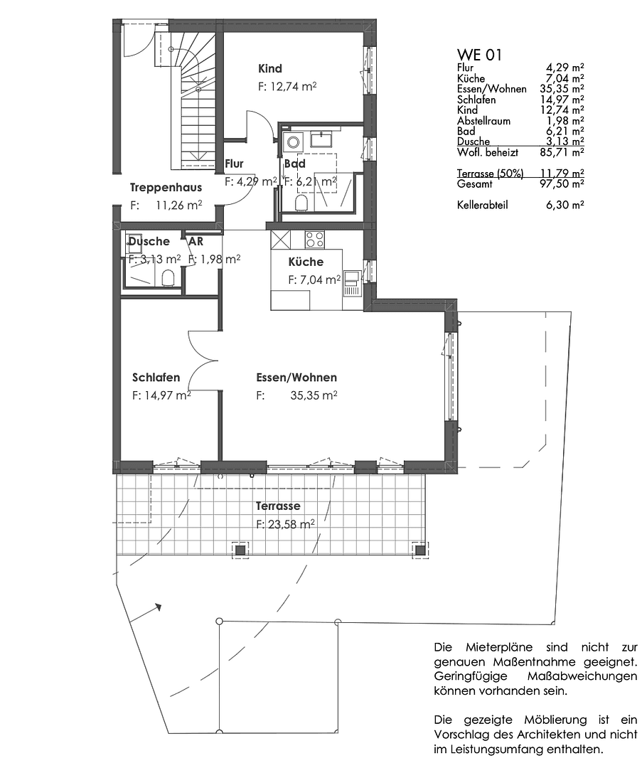
Prenájom bytu 3+1 • 98 m² bez realitkyDorfstraße 11b Germering Germering Bayern 82110
Dorfstraße 11b Germering Germering Bayern 82110MHD 1 minúta pešo • Parkovanie • GarážTento vysoko kvalitne zariadený byt disponuje modernou kúpeľňou, dvoma krásnymi spálňami a priestranným, otvoreným obývacím priestorom. K nemu náleží aj prilehlá terasa a záhrada.
Byt je postavený podľa najnovších štandardov energetickej účinnosti a je vybavený decentralizovaným vetracím systémom pre obytné priestory, ktorý zaisťuje príjemné a zdravé bývanie.
Bytový dom sa nachádza pri dedinskej ceste a má výborné spojenie do centra mesta, jeho okolia a smerom do Mníchova.
Medzi vybavením patrí pivnica, miesto v podzemnej garáži aj vonkajšie parkovacie miesto. Možnosti nabíjania elektromobility môžu byť k dispozícii.
- približne 20 km od Mníchova
- vynikajúce spojenie na diaľnicu A99, ako aj na štátne cesty B2 a B471
- masívna stavba
- kvalitné okná s trojitým tepelným ochranným zasklením
- elektrické hliníkové rolety
- kúpeľne a chodby s kvalitnou dlažbou
- obývacie a spálňové miestnosti, ako aj kuchyňa, vybavené dizajnovou podlahou
- vstupné dvere bytu s protihlukovým Ex tesnením a dverným zorníkom
- elektrický systém podzemnej garáže s diaľkovým ovládaním
- prípojka pre práčku sa nachádza v kúpeľni
- geotermálna energia
- rovnomerné podlahové kúrenie vrátane miestnych termostatov
- decentralizovaný ventilačný systém
- interkom s obojsmernou komunikáciou
Hlavný obrázok je generovaný umelou inteligenciou. Záhrada sa momentálne ešte realizuje.
Parametre nehnuteľnosti
| Vek | Nad 50 rokov |
|---|---|
| Stav | Veľmi dobrý |
| Číslo inzerátu | 1010004 |
| Úžitková plocha | 98 m² |
| Dostupné od | 1. 6. 2025 |
|---|---|
| Dispozícia | 3+1 |
| PENB | A - Mimoriadne úsporné |
| Cena za jednotku | 21,38 € / m2 |
Čo táto nehnuteľnosť ponúka?
| Bezbariérový prístup | |
| Garáž | |
| MHD 1 minúta pešo |
| Pivnica | |
| Parkovanie | |
| Terasa |
V okolí nehnuteľnosti nájdete
Stále hľadáte to pravé?
Nastavte si strážneho psa. Ponuky vybrané na mieru dostanete súhrnne 1× denne e-mailom. S Premium profilom máte po ruke rovno 5 strážcov a keď sa niečo objaví, informujú vás obratom.










