
Predaj domu 4+kk • 147 m² bez realitky, Bádensko-Wurttembersko
, Bádensko-WurttemberskoMHD 3 minúty pešo • ParkovanieJedinečný, útulný polovičný dvojdom v tichej slepej uličke s výhľadom na zeleň v Michelfeldu.
V roku 1994 bol dom postavený ekologickou technológiou dreveného rámu a vďaka dôkladnej starostlivosti a pravidelným investíciám je v veľmi dobrom stave.
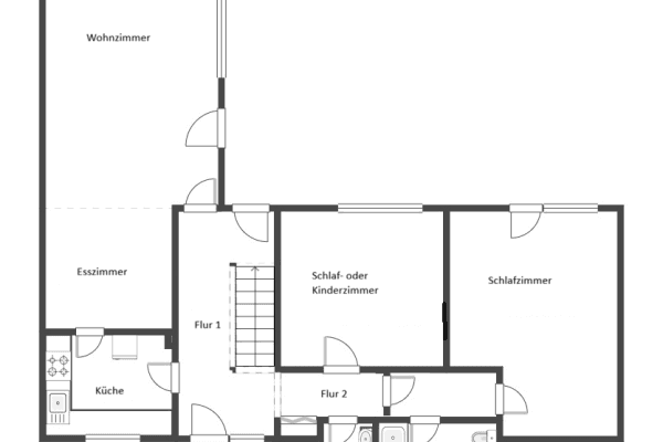
Približne 146 m² obytného priestoru je rozložených na 2 úrovne. Okrem príjemnej chodby sa v prízemí nachádza hosťovské WC, technická miestnosť s pripojením pre práčku a sušičku, otvorený obývací a jedálenský priestor s výhľadom do záhrady a vysoko kvalitnou pecou zo specksteinu, ako aj priamo pripojená kuchyňa v štýle vidieckeho domu.
Na poschodí, okrem troch ďalších izieb, nájdete malé sprchové kúpeľne a kúpeľňu s prirodzeným osvetlením vybavenú vaňou.
Hlavnou atrakciou je sauna prístupná z kúpeľne. Cez rozkladacie schody sa dostanete na podkrovie, ktoré ponúka priestranné úložné priestory a v prípade potreby sa dá jednoducho rozšíriť.
Z jasného obývacieho a jedálneho priestoru sa dostanete na terasu so sklenným prístreškom vedúcu do útulnej záhrady.
Odtiaľ máte nádherný výhľad na zeleň, pretože k pozemku susedí nezastaviteľná zelená plocha s málo navštevovaným detským ihriskom. V záhrade sa navyše nachádza prístrešok s dostatočným priestorom pre bicykle a podobné veci a s malou dielňou.
Vďaka inštalácii drevenej pece v roku 2022 a obnovenému plynovému kotlu z roku 2014 bývate veľmi energeticky efektívne.
Okamžite sa nasťahovať a cítiť sa dobre bez časovo náročnej a finančne zaťažujúcej rekonštrukcie – to je tu možné.
Predaj prebieha bez realitného makléra! Kontaktovanie zo strany maklérov nie je vítané.
K dispozícii je detailnejší informačný materiál.
Sťahovateľný od začiatku júna 2026.
Nehnuteľnosť sa nachádza v Angelbachtal-Michelfeldu.
V blízkosti premávajú autobusové linky 703, 761 a 791. V bezprostrednom okolí nájdete dve reštaurácie, pekáreň, kaviareň a supermarket. Takisto je pešo dostupných niekoľko zeleňových a parkových plôch, fitness centier, dvoch kvetinárstiev, pobočka pošty a lekáreň. V bezprostrednom okolí sa nachádza aj jeden z troch materských škôl. Zaujímavé kultúrne zariadenia, možnosti nočného života a dobrá lekárska starostlivosť sú nakoniec dostupné aj v širšom okolí.
Parametre nehnuteľnosti
| Vek | Nad 50 rokov |
|---|---|
| Dispozícia | 4+kk |
| PENB | B - Veľmi úsporné |
| Plocha pozemku | 282 m² |
| Cena za jednotku | 3 400,68 € / m2 |
| Stav | Po rekonštrukcii |
|---|---|
| Číslo inzerátu | 1009313 |
| Úžitková plocha | 147 m² |
| Celkové poschodia | 2 |
Čo táto nehnuteľnosť ponúka?
| Parkovanie | |
| Terasa |
| MHD 3 minúty pešo |
V okolí nehnuteľnosti nájdete
Stále hľadáte to pravé?
Nastavte si strážneho psa. Ponuky vybrané na mieru dostanete súhrnne 1× denne e-mailom. S Premium profilom máte po ruke rovno 5 strážcov a keď sa niečo objaví, informujú vás obratom.


















