
Predaj bytu 4+1 • 105 m² bez realitkyRaistinger Str. 2/2, , Bádensko-Wurttembersko
Raistinger Str. 2/2, , Bádensko-WurttemberskoMHD 1 minúta pešo • GarážNa predaj ponúka moderný, štýlovo prerobený prízemný 4-izbový byt v centre Herrenbergu. Budova spája prvotriednu architektúru, energeticky efektívne technické riešenia a sociálny koncept bývania, čím vzniká výnimočný domov s dlhodobou hodnotou.
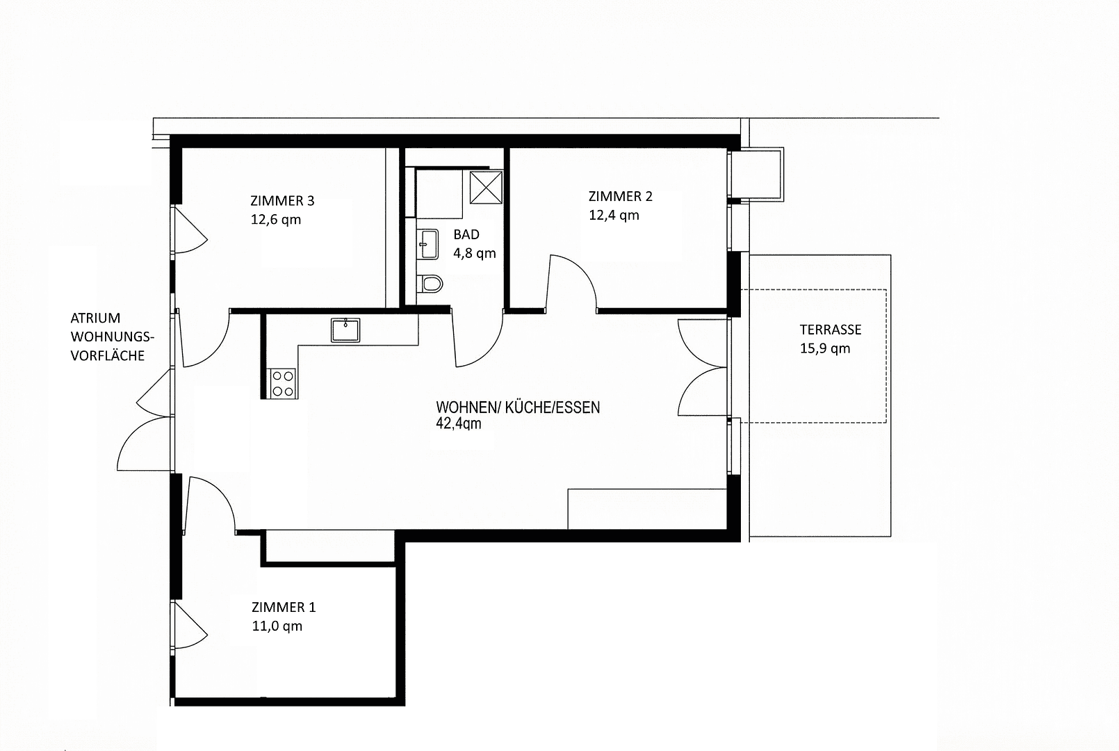
S obytnou plochou 104,32 m² ponúka byt obývaciu, jedálenskú a kuchynskú časť, ako aj tri dobre navrhnuté spálne. Stenné okná s celopozdĺžnym sklom prispievajú k príjemnému pocitu priestrannosti a vytvárajú harmonické prepojenie medzi vnútorným a vonkajším prostredím.
Medzi špeciálne atrakcie patrí veľkorysá terasa (cca 30 m²) a vnútorné atrium s priamym vstupom z obývacej časti – ideálne pre oddychové chvíle vonku, spoločenské večery alebo ako bezpečný priestor na hranie pre deti.
Byt sa nachádza v inovatívnom, udržateľne navrhnutom komplexe budov. Vďaka solárnej teplárni, fotovoltaickej inštalácii a kotlu na pelety profitujete z mimoriadne nízkych prevádzkových nákladov a moderného, úsporného zabezpečenia energie.
Pre dodatočné pohodlie máte k dispozícii podzemné parkovacie miesto, výťah a veľkorysé spoločné oddychové priestory v dome, ktoré podporujú komunitný duch medzi obyvateľmi a robia obytný komplex obzvlášť atraktívnym pre rodiny, páry a tých, ktorí si cenia komunitu.
Lokalita je výborná: blízko centra, v tichom prostredí a s vynikajúcim dopravným spojením – obchody, materské školy, školy, vlaková stanica a čarovné historické centrum Herrenbergu sú ľahko dostupné pešo. Zároveň vás prírodné okolie pri Schönbuch láka na rekreačné aktivity v prírode.
Vybavenie bytu zodpovedá vyššiemu štandardu.
Parametre nehnuteľnosti
| Vek | Nad 50 rokov |
|---|---|
| Dispozícia | 4+1 |
| PENB | A - Mimoriadne úsporné |
| Cena za jednotku | 4 686 € / m2 |
| Stav | Veľmi dobrý |
|---|---|
| Číslo inzerátu | 1008448 |
| Úžitková plocha | 105 m² |
Čo táto nehnuteľnosť ponúka?
| Bezbariérový prístup | |
| MHD 1 minúta pešo |
| Garáž | |
| Terasa |
V okolí nehnuteľnosti nájdete
Stále hľadáte to pravé?
Nastavte si strážneho psa. Ponuky vybrané na mieru dostanete súhrnne 1× denne e-mailom. S Premium profilom máte po ruke rovno 5 strážcov a keď sa niečo objaví, informujú vás obratom.











