
Prenájom bytu 2+1 • 58 m² bez realitkyKubánské náměstí, Praha - Vršovice
Pronájem bytu 2+1, 58 m², Vršovice – klidná lokalita, skvělá dostupnost, ihned k nastěhování
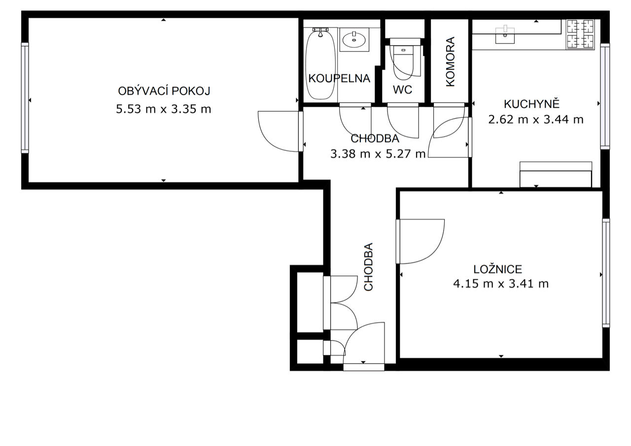
Nabízíme k pronájmu světlý a prakticky řešený byt o dispozici 2+1 a celkové ploše cca 58 m², situovaný ve 3. patře udržovaného domu s výtahem v oblíbené lokalitě Vršovic, v bezprostřední blízkosti zastávky Kubánské náměstí. I přes blízkost tramvajové dopravy je byt příjemně klidný.
Byt prošel částečnou rekonstrukcí v roce 2023 (nové WC, rozvody elektřiny a vody, kuchyňská linka, podlahy v chodbě, kuchyni, WC a komoře, nová výmalba) a nabízí komfortní zázemí pro jednotlivce i pár. Je částečně vybavený – k dispozici je kuchyň s elektrickou troubou, indukční varnou deskou a základním kuchyňským náčiním (rychlovarná konvice, nádobí, příbory apod.), dále se v bytě nachází několik praktických skříní. Po dohodě je možné dodat také pračku.
Dispozici bytu tvoří vstupní chodba s vestavěnou skříní, koupelna s vanou, samostatné WC, technická místnost (komora), kuchyně (9 m²) a dva neprůchozí pokoje (14 m² a 18,5 m²).
Vytápění i ohřev vody jsou řešeny dálkově.
Velkou výhodou je nejen výborná dopravní dostupnost (tramvaj, autobus, metro), ale i kompletní občanská vybavenost v okolí. V docházkové vzdálenosti se nachází nákupní centrum Eden, Fakultní nemocnice Královské Vinohrady, školy, školky, různá sportoviště v areálu Slavia (bazén, atletický stadion,...), stejně jako množství kaváren, restaurací a kulturních podniků, které dávají Vršovicím jejich jedinečnou atmosféru.
Parkování je možné přímo před domem či v okolních ulicích v rámci parkovacích zón (s parkovací kartou).
Byt je k dispozici ihned. Preferován je pronájem v délce cca 2–3 roky, konkrétní podmínky je však možné nastavit individuálně dle dohody.
V případě zájmu o více informací nebo sjednání prohlídky nás neváhejte kontaktovat skrz platformu Bezrealitky.
Parametre nehnuteľnosti
| Dostupné od | 31. 3. 2026 |
|---|---|
| Konštrukcia budovy | Zmiešaná |
| Vybavené | Čiastočne |
| Vykurovanie | Ústredné |
| Umiestnenie | Rušná oblasť |
| Cena za jednotku | 416 CZK / m2 |
| Stav | Veľmi dobrý |
|---|---|
| Dispozícia | 2+1 |
| Poschodie | 4. poschodie z 6 |
| Číslo inzerátu | 1007253 |
| Úžitková plocha | 58 m² |
Čo táto nehnuteľnosť ponúka?
| Výťah |
V okolí nehnuteľnosti nájdete
Stále hľadáte to pravé?
Nastavte si strážneho psa. Ponuky vybrané na mieru dostanete súhrnne 1× denne e-mailom. S Premium profilom máte po ruke rovno 5 strážcov a keď sa niečo objaví, informujú vás obratom.














