
Predaj domu • 326 m² bez realitkyNellinger Straße 47 Stuttgart Heumaden Baden-Württemberg 70619
Nellinger Straße 47 Stuttgart Heumaden Baden-Württemberg 70619MHD 6minút pešo • Parkovanie • GarážVoľne stojaca 12-izbová vila (rok výstavby 1957 / prístavba 1993) s celkovou vykurovanou obytnou plochou 326 m² resp. 405 m² podľa WoFlV (viď obrázok) + 64 m² užitkovej plochy.
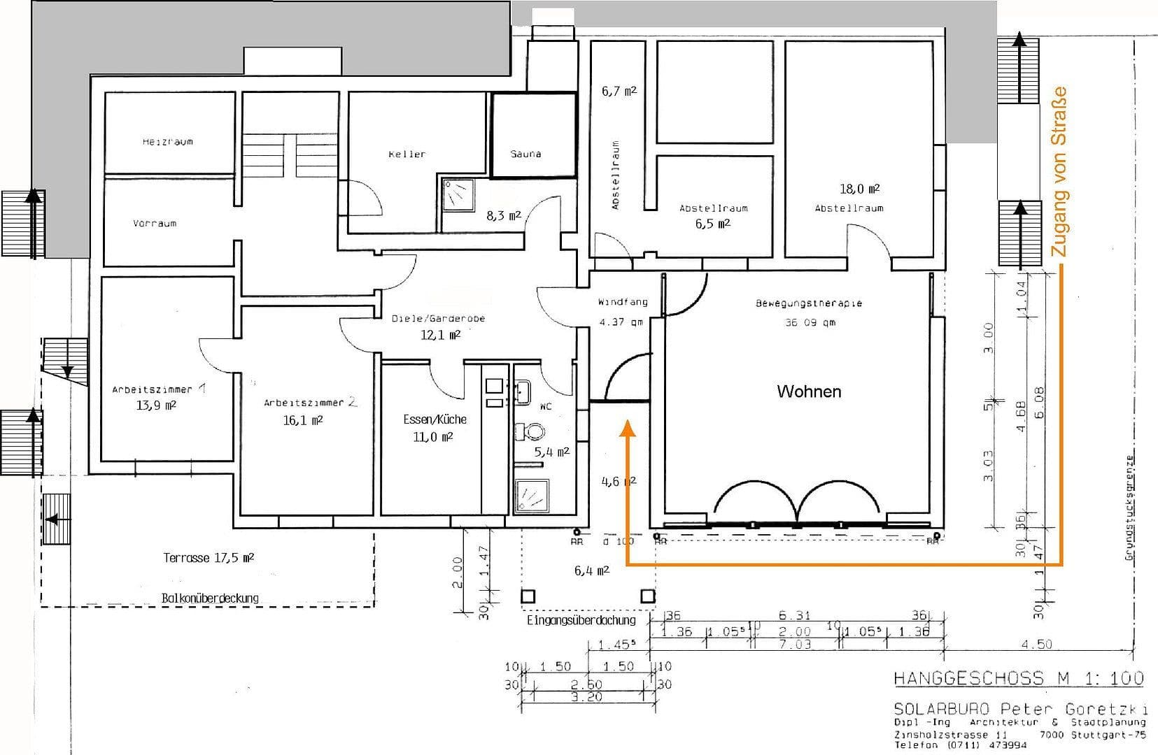
Záhradové podlažie (115 m²) samostatne využiteľné s vlastným vstupom, sauna.
Hlavný byt (prízemie + 1. poschodie + 2. poschodie) nie je vhodný na rozdelenie na viaceré samostatné obytné jednotky (viď pôdorysy).
Veľkosť pozemku: 1366 m², z toho
- 711 m² stavebné pozemky (využiteľnosť stavebnej plochy: cca 1,2-1,4, tzn. cena pôdy aspoň 1,1 milióna €) plus
- 655 m² priamo susediace záhradné územie s kvetinovými lúkami, ovocnými stromami a trsnatými kríkmi. Záhradná chata. Zásobník dažďovej vody s 3 m³ na zavlažovanie.
- navyše 140 m² mestského "bonusového pozemku" bez nájomného.
Preto výhodné oznámenie k dani z nehnuteľnosti v roku 2025 len 1274 €/rok + 147 €/rok za dažďovú vodu.
Územné rozhodnutie podľa §34 BauGB.
Východný svah v pokojnej, neobjednávateľnej okrajovej a výhľadovej polohe.
MHD (metro, autobus), škola, lekári, obchody sú dostupné pešo za pár minút.
Centrum Štutgartu a hlavná stanica sú metrom vzdialené asi 20 minút. K letisku je autobusom približne pol hodiny, do Esslingenu okolo 25 minút. Diaľnica je dostupná za približne 10-15 minút.
Napriek tomu sa nehnuteľnosť nachádza v pokojnej predmestskej lokalite s výhľadom na Katharinenlinde a Schurwald.
Les oproti nehnuteľnosti na východ a polia a sady s divokým ovocím na východ a juh, s výhľadom na Schwäbische Alb, pozývajú počas celého roka na relaxačné prechádzky.
Šikmé letecké snímky dostupné na adrese:
bing.com/maps?FORM=Z9LH2&cp=48.742518%7E9.235655&lvl=20.0&style=g&dir=-60
Priestranná, svetlá jedáleň a obývacia izba (47 m²) s výškou stropu cca 2,8 m a nasledujúcou knižnicou resp. pracovňou v prízemí majú parketové podlahy, spálne v 1. a 2. poschodí majú kobercové podlahy. Na záhradovom podlaží sa nachádzajú korkové resp. laminátové podlahy a dlaždice.
Udržiavaný celkový stav.
Okna v prízemí a 1. poschodí boli prevažne vymenené v roku 2009 (Ug = 1,1 W/m²K).
Strecha: Izolácia medzi krokvami Ud = 0,235 W/m²K
=> žiadna povinnosť ďalšej rekonštrukcie podľa GEG.
Vonkajšie steny:
- Prízemie + poschodia: bloky Bimshohl o hrúbke 24 cm, U = 1,14 W/m²K;
- Podzemie: bloky Bimshohl o hrúbke 30 cm, U = 0,95 W/m²K;
- Prístavba: Porenziegel, U = 0,21 W/m²K.
= Trieda energetickej efektívnosti "E"
Kurenie na nízkoteplotný plyn bolo v roku 2009 vymenené (súčasne môže byť neobmedzene prevádzkované).
Energetická spotreba na kúrenie a teplú vodu okolo 55 000 kWh/rok
= Energetická trieda "D" podľa spotreby.
Prehľad plôch:
Záhradové podlažie:
Izba 1:.......... 13,9 m²
Izba 2:......... 16,1 m²
Jedáleň + kuchyňa:....... 11,0 m²
Záhradná izba:.. 36,1 m²
Predsieň:................ 12,1 m²
WC/sprcha:....... 5,4 m²
Sauna/sprcha:.. 8,3 m²
Prízemie/zálievacia miestnosť:........... 4,2 m²
Skladovacia miestnosť:..... 18,8 m²
Terasy:........ 49,5 m²
-----------------------
Kobulka 1:.............. 6,5 m²
Kobulka 2:.............. 6,7 m²
Kobulka 3:.............. 9,1 m²
Chodba:........... 6,1 m²
Kúrenárenská miestnosť:.......... 5,7 m²
Schody:.............. 11,4 m²
Prízemie:
Jedálenská miestnosť: 19,5 m²
Obývacia izba: 27,4 m²
Izba 3:......... 13,7 m²
Kuchyňa:............... 12,6 m²
Práčovňa/spoločné priestory: 7,5 m²
Chodba:.................... 9,8 m²
Schody:.............. 6,6 m²
Predsieň:.......... 4,5 m²
Sprcha:............ 5,2 m²
WC:.................... 3,2 m²
Balkón:............ 24,0 m²
1. poschodie:
Izba 4:......... 21,1 m²
Izba 5:......... 10,3 m²
Izba 6:......... 14,5 m²
Izba 7:......... 14,2 m²
Chodba:................... 16,1 m²
Schody:.............. 6,6 m²
Kúpeľňa/sprcha:...... 9,9 m²
WC:..................... 3,1 m²
Balkón:............... 5,9 m²
2. poschodie (plne prerobené):
Izba 8:........ 18,4 m²
Izba 9:........ 11,2 m²
Chodba:.................. 6,0 m²
Prehliadky – termíny dohodnuteľné na krátku dobu.
Predaj od súkromnej osoby bez provízie – bez sprostredkovateľa.
Expozícia s pôdorysmi, energetickým preukazom, termografiou a videoprehliadkou v cloude je k dispozícii na požiadanie.
Pri dopytoch uveďte prosím meno, adresu a pevnú telefónnu číslo!
Kúpna cena dohodou, východisková cena 1 650 000 €.
Parametre nehnuteľnosti
| Vek | Nad 50 rokov |
|---|---|
| Číslo inzerátu | 1006781 |
| Úžitková plocha | 326 m² |
| Celkové poschodia | 4 |
| Stav | Dobrý |
|---|---|
| PENB | E - Nehospodárne |
| Plocha pozemku | 1 366 m² |
| Cena za jednotku | 5 061 € / m2 |
Čo táto nehnuteľnosť ponúka?
| Balkón | |
| Garáž | |
| MHD 6 minút pešo |
| Pivnica | |
| Parkovanie | |
| Terasa |
V okolí nehnuteľnosti nájdete
Stále hľadáte to pravé?
Nastavte si strážneho psa. Ponuky vybrané na mieru dostanete súhrnne 1× denne e-mailom. S Premium profilom máte po ruke rovno 5 strážcov a keď sa niečo objaví, informujú vás obratom.

























