
Predaj domu • 295 m² bez realitkyBremen Oberneuland Bremen 28355
Bremen Oberneuland Bremen 28355MHD do minúty pešo • Parkovanie • GarážHlavné prednosti na prvý pohľad:
+ Štedré prostredie: Priestranné bývanie s priamym výhľadom do zelene
+ Wellness a fitness: Exkluzívna spa-zóna priamo v dome
+ Maximálna flexibilita: Ideálne pre bývanie aj prácu alebo ako viacgeneračný dom
Za nadčasovou, svetlou tehlovou fasádou vás čaká domov, ktorý oslní masívnou kvalitou stavby a premyslenou architektúrou – dokonale zasadený do jednej z najžiadanejších lokalít v Bremene.
Prízemie očarí moderným a priestranným rozložením miestností. Stredobodom je obývacia a jedálenská izba s rozlohou takmer 60 m². Kvalitné podlahové dlaždice s teplým dreveným vzhľadom tu spájajú eleganciu s jednoduchosťou údržby. V chladnejších dňoch elegantná kachľová pec zabezpečí príjemné teplo a jedinečne útulnú atmosféru.
Celotvarové okná až po podlahu a vysoké stropy vytvárajú plynulý prechod na terasu a odhaľujú pravý poklad: záhradu, ktorá je úplne súkromná a priamo zapustená do prírody. Táto súkromná oáza so starými stromami, kvetúcimi kríkmi a upraveným trávnikom láka na hranie a oddych.
Toto poschodie je navyše vybavené novým prémiovým vstavaným kuchynským priestorom (značkové spotrebiče a množstvo úložného priestoru) a samostatným spálňovým blokom pozostávajúcim zo 3 izieb a 2 kúpeľní – ideálne pre bezbariérové rodinné bývanie na jednej úrovni.
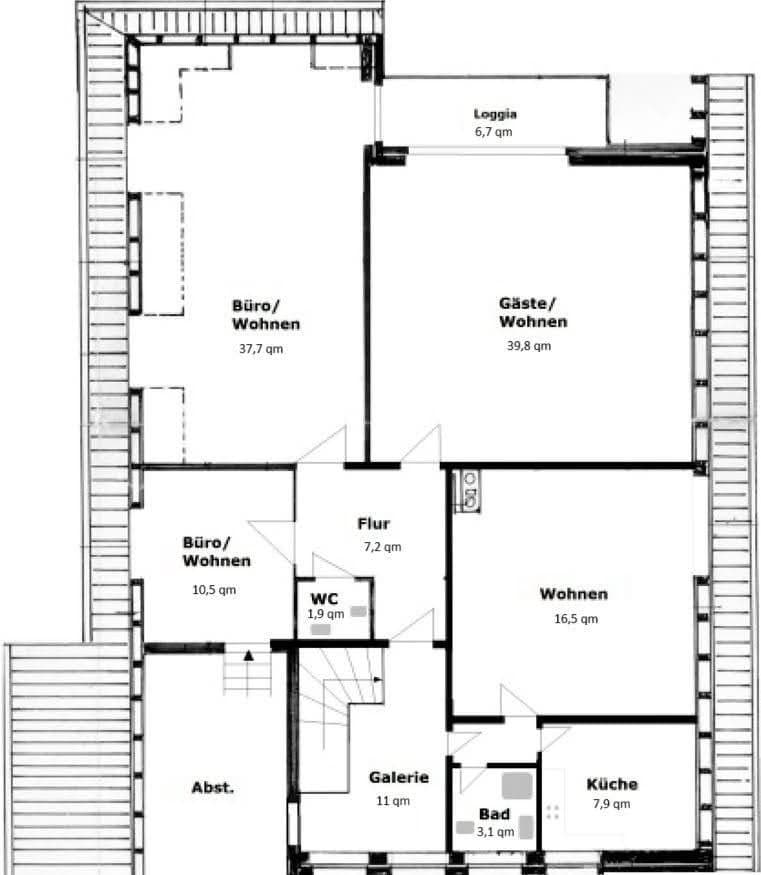
Cez schody sa dostanete na horné poschodie, ktoré ponúka skutočnú flexibilitu. Okrem dvoch pôsobivých štúdií (perfektných ako domáca kancelária, ateliér alebo detský raj) sa tu nachádza aj samostatný byt. Tento priestor môžete využiť pre hostí, Au-pair, staršie deti alebo generovať atraktívne príjmy z prenájmu.
Po dlhom dni vás čaká v zmodernizovanom suteréne čisto oddych. Sauna, sprcha a relaxačná zóna vás pozývajú na odstavenie a únik zo shonu. Samostatná fitnes miestnosť a rôzne hobby a úložné priestory dopĺňajú bohatú ponuku priestoru, ktorý tento dom ponúka.
Pre orientáciu a zabezpečenie hodnoty je k dispozícii nezávislé trhové hodnotenie. To vám nielen poskytne istotu ohľadom férovej kúpnej ceny, ale aj výrazne uľahčí komunikáciu s vašou bankou. Neváhajte nás kontaktovať na čísle 01512 8189417.
Záver: Ide o nehnuteľnosť, ktorá dokonale spája veľkosť, lokalitu a luxus. Predaj prebieha priamo od majiteľa bez provízie.
Nehnuteľnosť sa nachádza v pokojnej a vyhľadávanej obytné lokalite v bremskej mestskej časti Oberneuland, jednej z najexkluzívnejších a najzelenších oblastí hanzového mesta. Táto štvrť je charakteristická priestrannými pozemkami, kvalitnou výstavbou a vysokou úrovňou bývania a životného komfortu.
Nachádza sa v pokojnej zóne s obmedzenou premávkou (30 km/h) bez tranzitnej premávky, kde si môžete vychutnať maximálnu mieru súkromia a vysokú kvalitu života.
Na denné potreby máte k dispozícii vynikajúce nákupné možnosti, na čele s renomovaným EDEKA trhom, ktorý ohromí svojím prvotriednym oddelením delikates a osobitým trhovým šarmom. Ponuka gastronómie je nesmierne pestrá – od očarujúcich kaviarní, cez autentickú taliansku kuchyňu až po moderné crossover koncepty.
Obzvlášť pre rodiny: Najlepšie školy a materské školy v Bremene sa nachádzajú v bezprostrednej blízkosti a sú ľahko dostupné pešo.
Napriek idylickej polohe je centrum Bremenu rýchlo a komfortne dostupné, takže si môžete kedykoľvek bez problémov vychutnať výhody mestského života.
Kľúčové údaje a hlavné prednosti na prvý pohľad:
Dom a pozemok:
+ Pôvabný jednofamilový/dvojrodinný dom v pokojnej prístupovej ulici v Oberneulande
+ Masívna stavba s klasickou tehlovou fasádou
+ Rok výstavby: 1983
+ Rozloha pozemku: 1070 m²
+ Bývacia plocha: cca 295 m²
+ Úžitková plocha: cca 270 m², z toho wellness a fitness zóna v suteréne (cca 90 m²), hobby miestnosti (cca 47 m²) a zvyšná úžitková plocha
+ Izby: 8
+ Kúpeľne: 3
+ Hosťovské WC: 4
+ Nákupné možnosti, gastronomia a infraštruktúra v bezprostrednej blízkosti
+ Dobré spojenie s verejnou dopravou, stanicou Oberneuland a diaľnicami A1 a A27
Osobitné znaky:
+ Pôsobivá wellness oáza so saunou, sprchou, fitnes priestorom a relaxačnou zónou
+ Garáž s priamym vstupom do domu
+ Samostatný byt na hornom poschodí s cca 37 m² bývacej plochy
Energia a udržateľnosť:
+ Energetický preukaz: D
+ Olejové ústredné kúrenie (Viessmann) z roku 2009 so zásobníkom teplej vody o objeme 600 l
+ Solárna termická jednotka na podporu ohrevu teplej vody
+ Wallbox (11 kW až 22 kW) pre elektrické autá
+ 2 podzemné čerpadlá a 2 studne na záhradnú závlahu
Komfort a vybavenie:
+ Prémiová kuchyňa
+ Podlahové kúrenie v prízemí aj na hornom poschodí
+ Kachľová pec pre príjemné teplo
+ Nábytok na mieru z masívneho dreva (vnútorné vstavané skrine)
+ Podlahové krytiny z masívneho dreva na hornom poschodí
+ Elegantné keramické dlaždice s dreveným vzhľadom a dizajnový vinylový podlahový kryt v prízemí
+ Svetlé a všestranné miestnosti na hornom poschodí
+ Vonkajšie rolety v celom dome
+ Moderný alarmový systém s diaľkovým ovládaním cez smartfón
+ Idylická záhrada so slnečnou terasou
+ Balkon/loggia na hornom poschodí
+ Hosťovské WC a praktická úložná miestnosť
Parametre nehnuteľnosti
| Vek | Nad 50 rokov |
|---|---|
| Stav | Po rekonštrukcii |
| PENB | D - Menej hospodárne |
| Plocha pozemku | 1 070 m² |
| Cena za jednotku | 3 712 € / m2 |
| Dostupné od | 5. 4. 2026 |
|---|---|
| Číslo inzerátu | 1006029 |
| Úžitková plocha | 295 m² |
| Celkové poschodia | 2 |
Čo táto nehnuteľnosť ponúka?
| Balkón | |
| Garáž | |
| MHD 0 minút pešo |
| Pivnica | |
| Parkovanie | |
| Terasa |
V okolí nehnuteľnosti nájdete
Stále hľadáte to pravé?
Nastavte si strážneho psa. Ponuky vybrané na mieru dostanete súhrnne 1× denne e-mailom. S Premium profilom máte po ruke rovno 5 strážcov a keď sa niečo objaví, informujú vás obratom.

























