
Prenájom bytu 3+kk • 54 m² bez realitkyPeštukova, Praha - Veleslavín
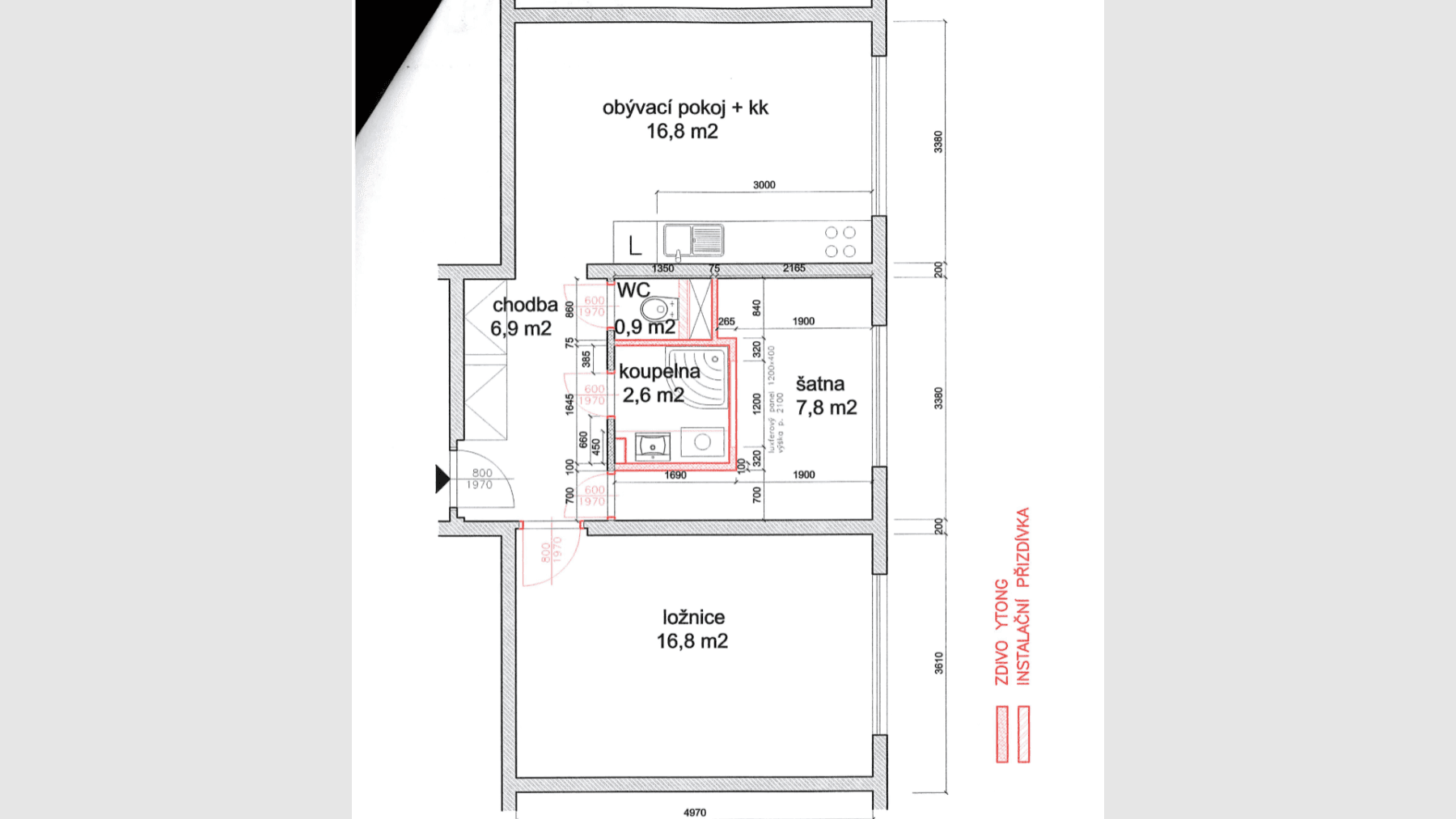
Peštukova, Praha - VeleslavínVybavené • Pivnica 3 m²Vyžaduje sa overenie bezdlžnostiNabízím k pronájmu moderní a prostorný byt 3+kk o rozloze 54 m² nacházející se v panelové budově o pěti podlažích. Byt se nachází ve třetím patře a je ve velmi dobrém stavu, pravidelně udržován a kompletně vybaven, což zaručuje komfortní bydlení ihned od nastěhování.
Okouzlí Vás promyšlené uspořádání interiéru, které nabízí dostatek prostoru pro volný život i pro stylové zařízení dle Vašich představ. K bytu náleží také sklep o ploše 3 m², ideální pro uskladnění osobních věcí.
Pro více informací a domluvení prohlídky mě prosím kontaktujte prostřednictvím zpráv na komunikační platformě.
I am offering for rent a modern and spacious 3-room apartment with a kitchenette, covering an area of 54 m², located in a five-story panel building. The apartment is situated on the third floor and is in very good condition, regularly maintained and completely furnished, ensuring comfortable living from the moment you move in.
You will be charmed by the thoughtful layout of the interior, which provides plenty of space for a relaxed lifestyle as well as stylish furnishing according to your preferences. The apartment also includes a 3 m² cellar, ideal for storing personal belongings.
For more information and to arrange a viewing, please contact me via messages on the communication platform.
Parametre nehnuteľnosti
| Dostupné od | 1. 8. 2026 |
|---|---|
| Konštrukcia budovy | Panel |
| Vybavené | Vybavené |
| Prevedenie | Štandardné |
| Číslo inzerátu | 1004569 |
| PENB | C - Hospodárne |
| Umiestnenie | Tichá lokalita |
| Cena za jednotku | 407,41 CZK / m2 |
| Stav | Veľmi dobrý |
|---|---|
| Dispozícia | 3+kk |
| Poschodie | 3. poschodie z 5 |
| Vykurovanie | Ústredné |
| Vlastníctvo | Osobné |
| Rekonštrukcia | Kompletné |
| Úžitková plocha | 54 m² |
Čo táto nehnuteľnosť ponúka?
| Pivnica 3 m² |
V okolí nehnuteľnosti nájdete
Stále hľadáte to pravé?
Nastavte si strážneho psa. Ponuky vybrané na mieru dostanete súhrnne 1× denne e-mailom. S Premium profilom máte po ruke rovno 5 strážcov a keď sa niečo objaví, informujú vás obratom.


















