
Prenájom bytu 2+1 • 62 m² bez realitkyMarkgrafenstraße 12 Nürnberg Steinbühl Bayern 90459
Markgrafenstraße 12 Nürnberg Steinbühl Bayern 90459MHD 1 minúta pešoPonúkaný 2-izbový byt sa nachádza v 3. nadpodlaží udržiavaného viacrodinného domu na Markgrafenstraße 12, 90459 Nürnberg.
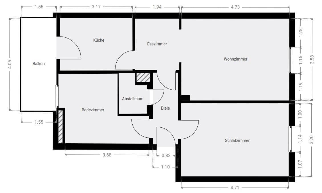
So 61 m² obytnou plochou vás byt očarí funkčným rozdelením miestností a svetlými obytnými priestormi. Priestranná obývačka spojená so spálňou ponúka príjemný komfort bývania. Samostatná kuchyňa je vybavená vstavanou linkou a umožňuje prístup na veľký balkón s výhľadom do vnútorného dvoru. Mimoriadne praktické je usporiadanie chodby, ktoré umožňuje zariadenie dodatočného pracovného kútika. Ďalším lákadlom je komplet zrekonštruovaná a priestranná kúpeľňa z roku 2018 so denným svetlom, sprchou a vaňou. Praktický úložný priestor v byte, ako aj sklepné priestory, logicky rozširujú ponuku dostupného miesta.
Vybavenie:
- Vstavaná kuchynská linka
- Balkón s výhľadom do vnútorného dvoru
- Zrekonštruovaná kúpeľňa (2018)
- Nová podlahová krytina (2019)
- Široký predsál (ideálny pre pracovný kútik)
- Úložný priestor
- Sklepné priestory
Centrálna poloha v južnej časti Nürnberg s veľmi dobrou infraštruktúrou. Obchodné možnosti, gastronómia a zariadenia pre každodenné potreby sú dostupné pešo.
Veľmi dobré spojenie s verejnou dopravou:
- Zastávka električky „Siemensstraße“ (linka 5) cca 300 m vzdialená
- Zastávka autobusu „Markgrafenstraße“ (linky 51, 58, 65) cca 100 m vzdialená
- Stanica S-Bahn „Nürnberg-Steinbühl“ cca 800 m vzdialená
Hlavná stanica v Nürnberg je dosiahnuteľná za pár minút, centrum mesta je taktiež rýchlo dostupné.
Vhodné pre slobodných alebo páry.
Domáce zvieratá po dohode.
Na prehliadku sú ponúkané nasledujúce časové termíny:
Sobota, 28.03., 10:00 – 11:30 hod.
Nedeľa, 29.03., 10:00 – 11:30 hod.
Účasť je možná len po predchádzajúcej dohode.
Dopyty, prosím, s krátkymi údajmi o počte osôb, pracovnej situácii a želaným dátume nasťahovania.
Parametre nehnuteľnosti
| Vek | Nad 50 rokov |
|---|---|
| Stav | Po rekonštrukcii |
| Poschodie | 3. poschodie z 5 |
| PENB | D - Menej hospodárne |
| Cena za jednotku | 13 € / m2 |
| Dostupné od | 24. 3. 2026 |
|---|---|
| Dispozícia | 2+1 |
| Číslo inzerátu | 1004361 |
| Úžitková plocha | 62 m² |
Čo táto nehnuteľnosť ponúka?
| Balkón | |
| MHD 1 minúta pešo |
| Pivnica |
V okolí nehnuteľnosti nájdete
Stále hľadáte to pravé?
Nastavte si strážneho psa. Ponuky vybrané na mieru dostanete súhrnne 1× denne e-mailom. S Premium profilom máte po ruke rovno 5 strážcov a keď sa niečo objaví, informujú vás obratom.

















