
Prenájom bytu • 110 m² bez realitkySolidarity, Praha - Strašnice
Solidarity, Praha - StrašniceMHD 2 minúty pešo • VybavenéNájom a poplatky platia pre prenájom na 12 mesiacov. Túto ponuku je však možné prenajať cez Flatio už od 1 mesiaca. Administratívny poplatok je pre kratšie prenájmy nižší. Prenájmy kratšie ako 6 mesiacov sú vždy bez kaucie.
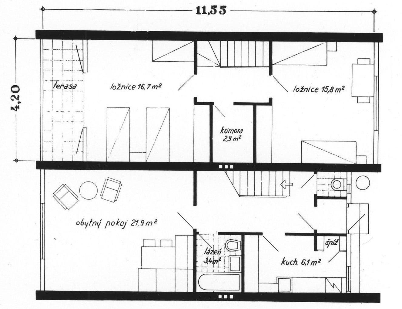
Family townhouse in a green area near the metro. A townhouse surrounded by greenery, with a balcony overlooking the greenery, 3 rooms (bedroom, office as needed). 1000 Mbps fiber-optic internet, 15-minute walk to the subway, 3-minute walk to the tram. Parking in front of the house (paid, no reservation required). Quiet for sleeping. Private bench and garden in front of the house.
Parametre nehnuteľnosti
| Dostupné od | 23. 3. 2026 |
|---|---|
| Číslo inzerátu | 1002790 |
| Cena za jednotku | 311 CZK / m2 |
| Vybavené | Vybavené |
|---|---|
| Úžitková plocha | 110 m² |
Čo táto nehnuteľnosť ponúka?
| Balkón | |
| Terasa |
| MHD 2 minúty pešo |
V okolí nehnuteľnosti nájdete
Nájom a poplatky platia pre prenájom na 12 mesiacov. Túto ponuku je však možné prenajať cez Flatio už od 1 mesiaca. Administratívny poplatok je pre kratšie prenájmy nižší. Prenájmy kratšie ako 6 mesiacov sú vždy bez kaucie.



Prenájom bytuKolbenova, Praha - Vysočany- 2+kk
- 51 m²
27 500 CZK + 3 000 CZK41 000 CZK
Ušetríte 13 500 CZK

Stále hľadáte to pravé?
Nastavte si strážneho psa. Ponuky vybrané na mieru dostanete súhrnne 1× denne e-mailom. S Premium profilom máte po ruke rovno 5 strážcov a keď sa niečo objaví, informujú vás obratom.












