
Prenájom bytu 2+kk • 51 m² bez realitkyKolbenova, Praha - Vysočany
Kolbenova, Praha - VysočanyVybavené • VýťahVyžaduje sa overenie bezdlžnostiArchitektonický loft s galerií | kompletně vybavený | Kolbenova
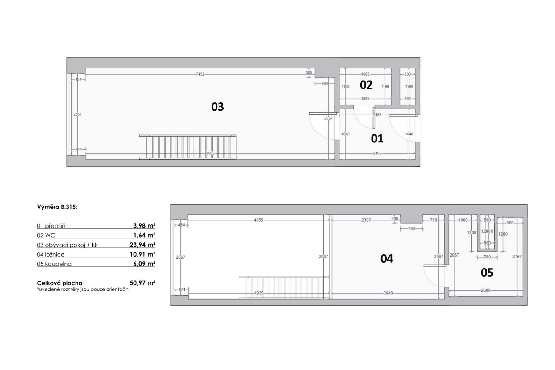
Nabízím k dlouhodobému pronájmu výjimečný loftový byt s galerií, navržený architektem a kompletně vybavený. Byt je řešen ve dvou úrovních, s vysokými stropy, kvalitními materiály a velmi příjemnou atmosférou pro dlouhodobé bydlení.
Byt je připraven k okamžitému nastěhování – stačí přijít s kufrem.
Co byt nabízí
otevřený obytný prostor s kuchyní
ložnice na galerii
samostatné WC
koupelna se sprchou
pračka a sušička
klimatizace, rekuperace
podlahové vytápění
venkovní žaluzie
designová svítidla
TV
Lokalita
metro Kolbenova pár minut chůze
klidná moderní čtvrť
rychlá dostupnost centra
Finanční podmínky
zálohy na služby: 3 000 Kč / měsíc
elektřina: přepis na nájemníka
kauce: 2 x nájem
Byt je vhodný pro jednotlivce nebo pár, nekuřáky.
Dlouhodobý pronájem vítán.
Parametre nehnuteľnosti
| Dostupné od | 19. 1. 2026 |
|---|---|
| Konštrukcia budovy | Tehla |
| Vybavené | Vybavené |
| Číslo inzerátu | 981267 |
| PENB | B - Veľmi úsporné |
| Úžitková plocha | 51 m² |
| Stav | Novostavba |
|---|---|
| Dispozícia | 2+kk |
| Poschodie | 3. poschodie z 5 |
| Vlastníctvo | Osobné |
| Umiestnenie | Tichá lokalita |
| Cena za jednotku | 507,84 CZK / m2 |
Čo táto nehnuteľnosť ponúka?
| Výťah |
V okolí nehnuteľnosti nájdete

Prenájom bytuPetržílkova, Praha - Stodůlky- 3+1
- 82 m²
29 900 CZK + 6 400 CZK31 000 CZK
Ušetríte 1 100 CZK



Stále hľadáte to pravé?
Nastavte si strážneho psa. Ponuky vybrané na mieru dostanete súhrnne 1× denne e-mailom. S Premium profilom máte po ruke rovno 5 strážcov a keď sa niečo objaví, informujú vás obratom.












