
Prenájom domu 5+1 • 153 m² bez realitkyBoschstraße 6 Heldenstein Heldenstein Bayern 84431
Dieses hochwertige und vollunterkellerte Haus in Massivbauweise vereint zwei spiegelgleiche Wohneinheiten mit je 153 m² Wohnfläche.
Toto kvalitné a kompletne so suterénom postavené domové sídlo v masívnej stavbe spája dve zrkadlové obytné jednotky, každá s 153 m² obytného priestoru. Jedna jednotka je orientovaná juhozápadne, druhá juhovýchodne – obe zaujmú moderným obytným komfortom a premysleným dispozíciou. Každá jednotka disponuje vlastným vstupom do domu, priestrannou záhradou a slnečnou južnou terasou – úplne v štýle dvojdomu.
Obe jednotky sú momentálne dokončované a budú k dispozícii na prenájom od 01.06.2026.
VÝHODY
· Priestranný obývací a jedálenský priestor s otvorenou kuchyňou (48 m²) – ideálny na pohodlné bývanie a varenie
· Krásny odkrytý krovy zo voskovaného smrekového dreva so strešným oknom – príjemná atmosféra a prirodzené denné svetlo
· Energetická trieda A+: Moderné tepelné čerpadlo, podlahové kúrenie a fotovoltaická inštalácia s voliteľným modelom prenajatého prúdu (GGV)
· Centrálny ventilačný systém s rekuperáciou tepla – čerstvý vzduch po celý rok, ideálny pre alergikov
· LED vstavané svietidlá v kuchyni, vstupnej hale, šatníku a hosťovskej toalete
· Elektrické žalúzie na všetkých oknách – možnosť ovládania cez aplikáciu
· Kvalitné vinylové dizajnové podlahy v vzhľade dubového dreva a veľkoformátové dlaždice v béžovej farbe
· Príprava na wallbox pre elektromobilitu
· Zariadenie na zmäkčovanie vody pre šetrné využitie vody
· Optické (vlákno) internetové pripojenie
· Bez provízie – bez maklérskych poplatkov
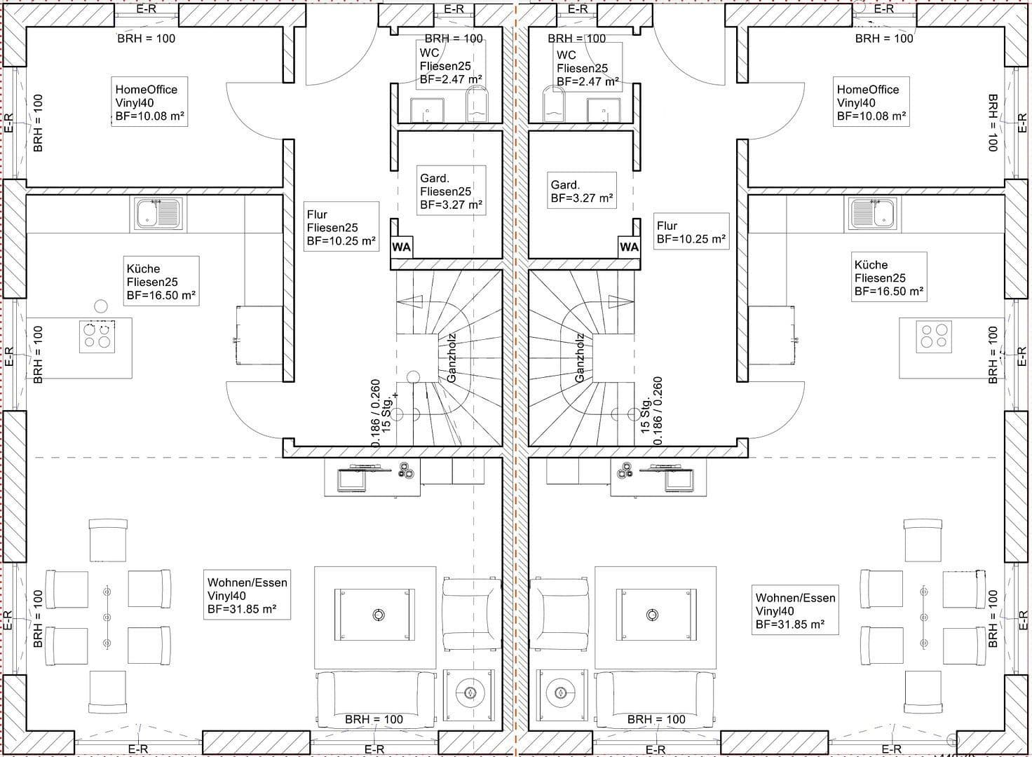
PRIZEMIE
Vlastné domové dvere na severnej strane Vás vedú do svetlého vstupného priestoru, ktorý je vybavený praktickou predsieňovou skrinkou. Prízemie ponúka hosťovskú toaletu s oknom vpúšťajúcim denné svetlo a bezúplatníkovým WC, ako aj miestnosť, ktorú možno flexibilne využiť podľa Vašich predstáv. Z priestranného obývacieho a jedálenského priestoru sa dostanete priamo na slnečnú južnú terasu.
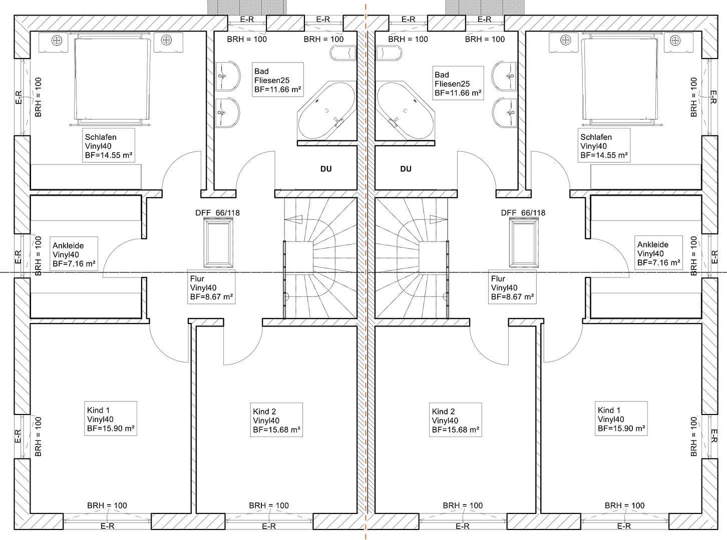
PODKROVIE
Otvorený krivolaký schodisko z lakovaného bukového dreva Vás vedie do podkrovia. Strešné okno zabezpečuje príjemné denné svetlo. Tri spálne, každá s rozlohou približne 15 m², Vás pozývajú na oddych. Ďalšia miestnosť je možné flexibilne využiť, napríklad ako šatník. Kúpeľňa je vybavená veľkoformátovými dlaždicami, vaňou, prechádzkovým sprchovým kútom s úložným priestorom, dvoma umývadlami a sušičom uterákov. Bezúplatníkové WC dopĺňa moderné a ľahko udržiavateľné vybavenie.
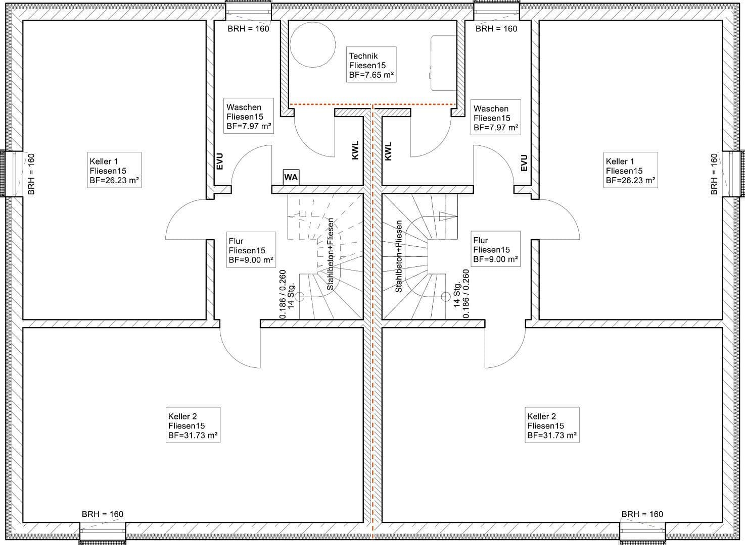
SUTERÉN
Tepelné čerpadlo v spoločnej technickej miestnosti zabezpečuje teplú vodu a vykurovanie pre obe obytné jednotky. V tejto miestnosti sa nachádza aj zariadenie na zmäkčovanie vody. Suterén ponúka pre každú jednotku približne 75 m² vlastného využiteľného priestoru, ktorý je kompletne obložený dlaždicami. V domácej technickej miestnosti sa nachádza centrálny ventilačný systém, umývacia misa a pripojenia pre práčku a sušičku. Dve priestranné suterénne miestnosti ponúkajú dostatok úložného priestoru pre všetko, čo domov so sebou prináša.
TERASA & ZÁHRADA & PRÍJAZD
Vonkajšie plochy budú dokončené koncom apríla. Príjazdová cesta bude dlažbená. Slnečná južná terasa Vás pozýva na oddych – je vybavená vonkajším osvetlením, elektrickou prípojkou a vodovodnou prípojkou pre záhradné zavlažovanie.
Záhrada ponúka veľa miesta pre Váš oddych v prírode:
· Juhozápadná jednotka: cca 155 m² záhrady so 15 m² terasou
· Juhovýchodná jednotka: cca 190 m² záhrady so 15 m² terasou
Dom sa nachádza v pokojnej časti obytného zázemia. Heldenstein je moderná obec so 3000 obyvateľmi v okrese Mühldorf am Inn, ktorá spája vidiecku pohodu s mestskou dostupnosťou. Vďaka diaľnici A 94 je Mníchov pohodlne dostupný približne do 35 minút. Ak preferujete vlak, mníchovská východná stanica je dostupná za približne 60 minút.
Pre každodenné potreby ste výborne zabezpečení – priamo v obci nájdete EDEKA so mäsovým obchodom a pekárňou, ako aj útulnú hostinu. Športoviská, materská škola, škôlka a základná škola sú čiastočne dostupné pešo, čo robí z Heldensteinu mimoriadne rodinne priateľský domov. Blízke mestá Ampfing, Waldkraiburg a Mühldorf navyše ponúkajú rozsiahlu ponuku lekárov, nemocnicu, supermarkety, banky, reštaurácie a oveľa viac.
DVERE
Alumíniové vstupné dvere s výrezom do skla sú vybavené tlačidlom na vyzvonenie. Videovrátnik je pripravený. Vo vnútri domu zabezpečujú biele interiérové dvere svetlý a priateľský pocit z priestoru.
OKNÁ
Biele plastové okná a strešné okno s trojsklom zabezpečujú optimálnu tepelnú izoláciu.
PRIPOJENIA
Internetové optické pripojenie s LAN portami v obývacej izbe (2×), chodbe, home office a vo všetkých spálňach. Satelitné pripojenia sú pripravené v spálňach a obývacej izbe.
PODLAHOVÉ KRÍDLA
V podkroví, home office a v obývacej s jedálenskej miestnosti je kvalitná vinylová dizajnová podlaha s vzhľadom dubového dreva. Vo vstupnej hale, kuchyni, kúpeľni a hosťovskej toalete sú použité veľkoformátové dlaždice v béžovej farbe. Schodisko do suterénu a celý suterén sú kompletne obložené dlaždicami.
PARKOVACIE MISTA
Ku každej časti domu sú k dispozícii dve parkovacie miesta a príprava pre wallbox s výkonom 11 kW.
Teším sa na Vašu dopyt! Neváhajte ma kontaktovať správou.
Dôležité:
· Uprednostňujeme nefajčiarov, domáce zvieratá nie sú povolené.
· Hľadám nájomcov, ktorí si cenia dlhodobý domov – preto sa zo strany oboch strán vzdávame možnosti zrušenia nájomnej zmluvy na obdobie 4 rokov.
Nájom: 1760 € mesačne
Prevádzkové náklady: 280 € mesačne
Dve parkovacie miesta: 50 € mesačne
Kaucia: 5280 € (3 mesačné čisté nájmy)
Dopyty od maklérov nie sú vítané.
Parametre nehnuteľnosti
| Vek | Nad 50 rokov |
|---|---|
| Stav | Novostavba |
| Číslo inzerátu | 1001648 |
| Úžitková plocha | 153 m² |
| Celkové poschodia | 2 |
| Dostupné od | 1. 6. 2026 |
|---|---|
| Dispozícia | 5+1 |
| PENB | A - Mimoriadne úsporné |
| Plocha pozemku | 684 m² |
| Cena za jednotku | 12 € / m2 |
Čo táto nehnuteľnosť ponúka?
| Pivnica | |
| MHD 8 minút pešo |
| Parkovanie | |
| Terasa |
V okolí nehnuteľnosti nájdete
Stále hľadáte to pravé?
Nastavte si strážneho psa. Ponuky vybrané na mieru dostanete súhrnne 1× denne e-mailom. S Premium profilom máte po ruke rovno 5 strážcov a keď sa niečo objaví, informujú vás obratom.





























