
Prenájom bytu 4+kk • 78 m² bez realitkyPočernická, Praha - Malešice
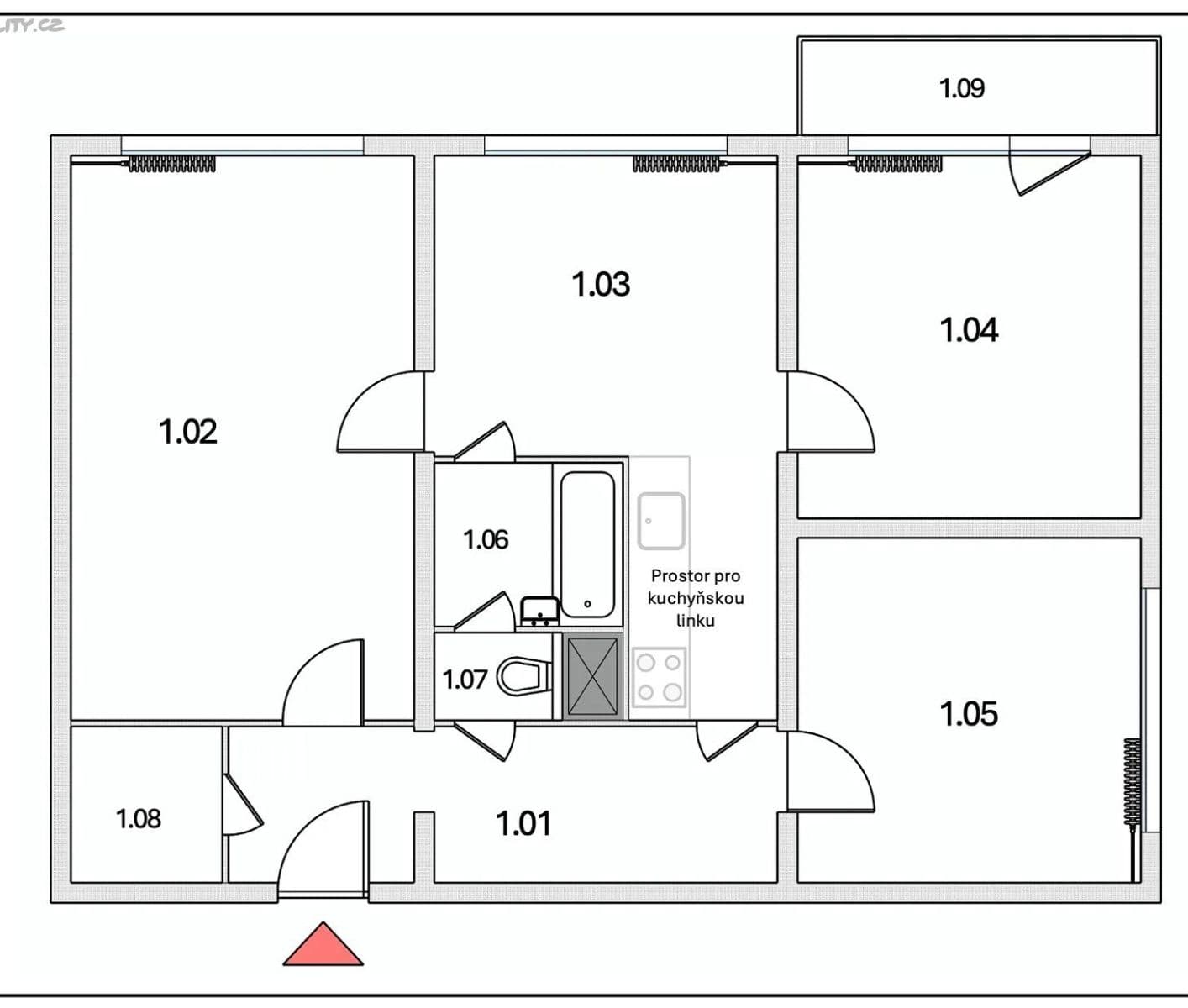
Newly renovated and fully furnished 4+kk apartment for rent in Prague 10 – Malešice. The apartment has 78 m², 3 separate bedrooms, living room with kitchen, balcony, and is located on the 4th floor of a building with elevator. Available immediately.
Equipment: new kitchen, ceramic hob, dishwasher, built-in oven, fridge, washing machine, large sofa, TV table, beds and wardrobes in rooms.
Location: bus stop directly in front of the building, easy access to Metro A – Želivského / Strašnická, quick connection to city center (17min) and main roads. Shops, pharmacy, restaurants, cafés, post office, ATM, schools, kindergarten, playgrounds, sports facilities, and Malešický park nearby.
Price:
35,000 CZK/month + 6,000 CZK utilities
Deposit: 2 months’ rent (second deposit can be split)
Suitable for family or flat-sharing. No pets preferred.
Nabízím k pronájmu nově zrekonstruovaný a plně zařízený byt 4+kk v lokalitě Praha 10 – Malešice. Byt má 78 m², 3 samostatné neprůchozí pokoje, obývací prostor s kuchyňským koutem, balkon a nachází se ve 4. patře domu s výtahem. K nastěhování ihned.
Vybavení: nová kuchyňská linka, sklokeramická varná deska, myčka, vestavěná trouba, lednice, pračka, velká sedačka, TV stolek, postele a skříně v pokojích.
Lokalita: autobusová zastávka přímo před domem, dobrá dostupnost na metro A – Želivského / Strašnická, rychlé spojení do centra i na hlavní silnice. V okolí obchody, lékárna, restaurace, kavárny, pošta, bankomat, školy, školka, hřiště, sportoviště a Malešický park.
Cena:
35 000 Kč/měsíc + 6 000 Kč poplatky
Kauce: 2 nájmy (druhou kauci lze rozdělit)
Provize RK: 1 nájem
Vhodné pro rodinu i spolubydlení. Bez domácích mazlíčků preferováno.
Parametre nehnuteľnosti
| Dostupné od | 15. 3. 2026 |
|---|---|
| Konštrukcia budovy | Panel |
| Vybavené | Vybavené |
| Číslo inzerátu | 1001587 |
| PENB | C - Hospodárne |
| Úžitková plocha | 78 m² |
| Stav | Po rekonštrukcii |
|---|---|
| Dispozícia | 4+kk |
| Poschodie | 4. poschodie z 13 |
| Vlastníctvo | Osobné |
| Umiestnenie | Tichá lokalita |
| Cena za jednotku | 449 CZK / m2 |
Čo táto nehnuteľnosť ponúka?
| Balkón 3,5 m² | |
| Pivnica 1,5 m² | |
| Parkovanie |
| Bezbariérový prístup | |
| Výťah | |
| MHD 1 minúta pešo |
V okolí nehnuteľnosti nájdete
Stále hľadáte to pravé?
Nastavte si strážneho psa. Ponuky vybrané na mieru dostanete súhrnne 1× denne e-mailom. S Premium profilom máte po ruke rovno 5 strážcov a keď sa niečo objaví, informujú vás obratom.



















