
Prenájom bytu 2+1 • 54 m² bez realitkyStuttgart Mitte Baden-Württemberg 70190
Vysoko kvalitný a moderne zariadený 2-izbový byt s veľkým balkónom a úžasným výhľadom na Stuttgart, situovaný v centre, ale napriek tomu v pokojnej lokalite Stuttgart Mitte.
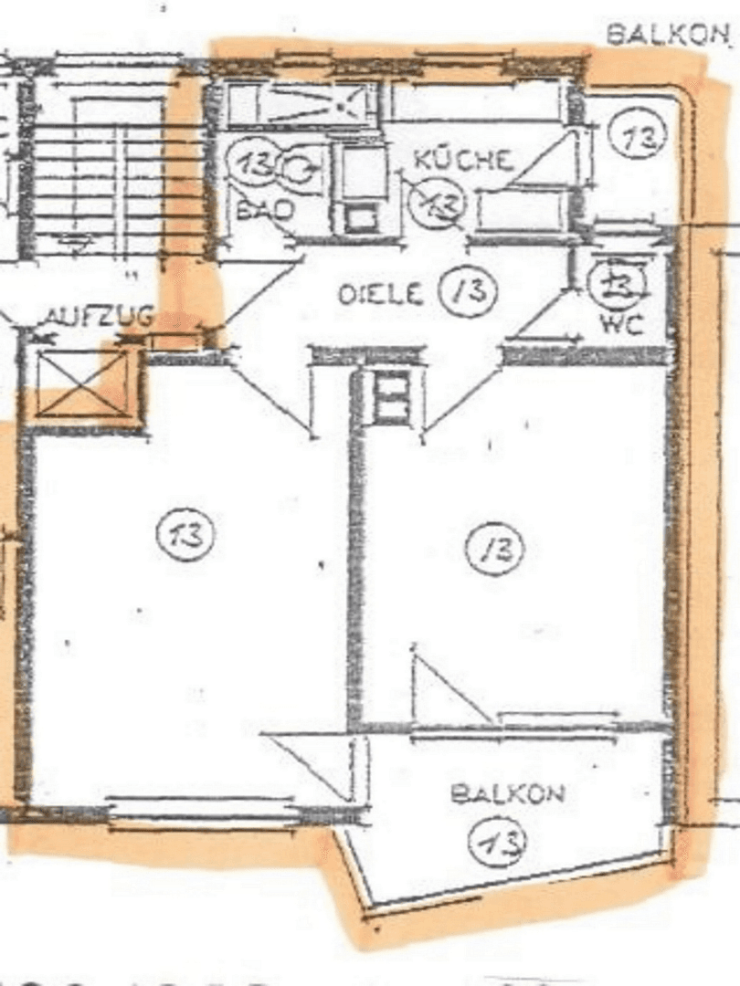
Byt sa nachádza v 5. poschodí so zdvíhačom.
Priestranný obývací priestor je medzi iným vybavený veľkou koženou sedačkou (s funkciou hosťovskej postele), plochou TV, stereo systémom, vitrínou, knižnicou a jedálenským stolom so stoličkami.
V spálni sa nachádza medzi iným veľká posteľ (1,60 x 2,00 m), komoda a skriňa (4 metre).
Z obývacej izby aj zo spálne je prístup na veľký balkón.
Nová kúpeľňa s prirodzeným denným svetlom disponuje vaňou s možnosťou sprchy. WC je samostatné.
Vybavená kuchyňa s umývačkou riadu a malým kuchynským balkónom je plne zariadená.
Práčka sa nachádza v uzamykateľnom suteréne, ktorý patrí iba bytu.
V byte je zakázané fajčiť, avšak na balkónoch je to povolené.
Do zámockého námestia, hlavnej stanice a zámockého parku sa dostanete pešo za 8-10 minút.
V blízkosti bytu sa nachádzajú obchody, reštaurácie a kaviarne.
Jeden z najexkluzívnejších stuttgartsých hotelov, Le MERIDIEN, sa nachádza v priamom susedstve. Aj externí návštevníci tam môžu za poplatok využívať plavecký a wellness areál.
3 minúty pešo k zastávke liniek U1, U2, U4, U9, U14 (zastávka Staatsgalerie), 10 minút pešo k HBF Stuttgart.
V prípade záujmu ma budem tešiť krátkou správou s niekoľkými informáciami o vás (kto sa sťahuje a od kedy hľadáte).
Parametre nehnuteľnosti
| Vek | Nad 50 rokov |
|---|---|
| Dispozícia | 2+1 |
| Číslo inzerátu | 1000777 |
| Úžitková plocha | 54 m² |
| Stav | Dobrý |
|---|---|
| Poschodie | 5. poschodie z 5 |
| PENB | C - Hospodárne |
| Cena za jednotku | 18 € / m2 |
Čo táto nehnuteľnosť ponúka?
| Balkón | |
| Pivnica | |
| Výťah | |
| MHD 4 minúty pešo |
| Bezbariérový prístup | |
| Garáž | |
| Parkovanie |
V okolí nehnuteľnosti nájdete


Prenájom bytuLandauerstrasse 30A Stuttgart Weilimdorf Baden-Württemberg 70499- 2+kk
- 75 m²
1 050 € + 218 €


Stále hľadáte to pravé?
Nastavte si strážneho psa. Ponuky vybrané na mieru dostanete súhrnne 1× denne e-mailom. S Premium profilom máte po ruke rovno 5 strážcov a keď sa niečo objaví, informujú vás obratom.















