
Predaj domu 5+1 • 173 m² bez realitkyIm Kisselfließ 15a, , Bádensko-Wurttembersko
Im Kisselfließ 15a, , Bádensko-WurttemberskoMHD 6minút pešo • Parkovanie • GarážKrátky profil
Kisselfließ 15
799.000 €
približne 173 m² obytná plocha
približne 272 m² pozemok
Garáž + parkovacie miesto
________________________________________
Nasledujúce základné údaje:
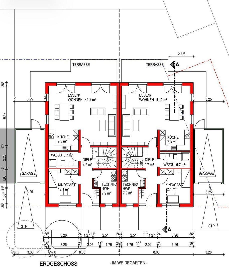
• 173 m² obytná plocha, novostavba, prvé použitie
• 2 plné poschodia v masívnej konštrukcii
• veľký, svetlý obývací/jedálenský priestor s otvorenou kuchyňou
• južná terasa s pekným výhľadom
• 3 kúpeľne
• navyše izba v prízemí
• garáž s wallboxom + parkovacie miesto
• Daikin vzduch–tepelná čerpadlo
• veľká fotovoltaická inštalácia s 20 modulmi
• podlahové kúrenie
• od podlahy po strop trojcestne zasklené okná značky Schüco
• elektrické žalúzie
• LAN v každej izbe
• bez provízie priamo od vlastníka
________________________________________
Stručný popis:
Tieto dve moderné dvojdomy v Laudenbach ponúkajú presne to, čo hľadajú mnohí kupujúci: veľa priestoru, moderné technológie, vysokú energetickú efektívnosť a priateľské rodinné rozloženie.
Stredobodom domu je veľký, otvorený obývací/jedálenský priestor s otvorenou kuchyňou a množstvom až ku stropu siahajúcich okien. Vďaka tomu domy pôsobia svetlo, moderne a príjemne. Južná terasa rozširuje obývací priestor do exteriéru a ponúka pekný výhľad na okolie.
Obzvlášť praktické: V prízemí sa nachádza navyše ďalšia veľká izba a plne vybavená kúpeľňa. Ideálne pre home office, hostí alebo bývanie na jednom poschodí.
Na poschodí vás čakajú dve detské izby s vlastnou kúpeľňou, ako aj priestranná rodičovská časť so spálňou, šatníkom a vlastnou kúpeľňou.
________________________________________
Takmer k nastěhovaniu s individuálnym dokončením
Domy sú vo veľmi pokročilom štádiu dokončenia a sú ponúkané ako takmer nastěhovateľné novostavby.
Základné stavebné a technické opatrenia sú už realizované. Kupujúci tak profituje z modernej novostavby, pri ktorej je v podstate potrebné dotápiť len viditeľné povrchové úpravy podľa vlastného vkusu.
V podstate to zahŕňa:
• podlahové krytiny
• obklady kúpeľní
• interiérové dvere
• plot a zeleň
Predajca ešte zabezpečí:
• maliarske práce
• spevnenie terasy a príjazdovej cesty
• moderné zábradlia pri schodoch
Pri voľbe individuálnych povrchových úprav v interiéri by mal byť – podľa požadovaného vybavenia – zohľadnený dodatočný rozpočet približne 30.000 € na dom.
Pri otázkach nás prosím kontaktujte na:
0176-77107652
Novozastavbová oblasť – Kisselfließ I Laudenbach
Pri otázkach nás prosím kontaktujte na:
0176-77107652
Parametre nehnuteľnosti
| Vek | Nad 50 rokov |
|---|---|
| Dispozícia | 5+1 |
| Úžitková plocha | 173 m² |
| Celkové poschodia | 2 |
| Stav | Novostavba |
|---|---|
| Číslo inzerátu | 1000280 |
| Plocha pozemku | 272 m² |
| Cena za jednotku | 4 387 € / m2 |
Čo táto nehnuteľnosť ponúka?
| Bezbariérový prístup | |
| Parkovanie | |
| Terasa |
| Garáž | |
| MHD 6 minút pešo |
V okolí nehnuteľnosti nájdete
Stále hľadáte to pravé?
Nastavte si strážneho psa. Ponuky vybrané na mieru dostanete súhrnne 1× denne e-mailom. S Premium profilom máte po ruke rovno 5 strážcov a keď sa niečo objaví, informujú vás obratom.































