
Predaj domu • 265 m² bez realitkyZähringerstraße 6, , Bádensko-Wurttembersko
Zähringerstraße 6, , Bádensko-WurttemberskoMHD 2 minúty pešo • Parkovanie • GarážMilí záujemcovia,
na predaj je viacrodinný dom v pokojnej obytné oblasti. Nachádza sa v časti obce Teningen, ktorá leží južne od Elz.
Dom bol postavený v roku 1970 a je v rodinnej vlastníctve už dve generácie.
Byty v 1. a 2. poschodí sú prenajaté, zatiaľ čo byt v prízemí je od júla 2025 neobsadený.
K domu patrí idylická záhrada (približne 500 m²) a dve garáže.
Dom je kompletne podkrovený/suterénny. V roku 2019 bola inštalovaná nová olejová kúrenie. K dispozícii je komínový ťah, čo umožňuje inštaláciu dreveného kachle v prízemnom byte.
Stav:
Dom bol vždy starostlivo udržiavaný. Suterén je suchý.
Byt v prízemí:
Byt v prízemí je po odchode posledného nájomníka dňa 01.07.2025 potrebný na rekonštrukciu. Disponuje terasou orientovanou na záhradnú stranu.
Nájomníci:
Nájomníci na 1. a 2. poschodí bývajú vo svojich bytoch už mnoho rokov.
Súčasné nájomné príjmy sú:
1. poschodie: studené nájomné vo výške 630 € za 100 m²
2. poschodie: studené nájomné vo výške 437 € za 70 m²
Studené nájomné na 1. poschodí nebolo od nasťahovania nájomníkov dňa 01.09.2009 zvýšené.
Na 2. poschodí bolo studené nájomné naposledy zvýšené pred troma rokmi. Nájomníci tu bývajú od roku 2003.
Kontaktujte nás, ak máte záujem.
Uvedená cena je orientačná. Konečná kúpna cena môže byť nad alebo pod touto sumou.
Lokalita:
Dom sa nachádza v pokojnej obytné oblasti, v časti obce Teningen, ktorá leží južne od Elz.
Miestny bazén, početné športové kluby (futbal, hádzaná, tanec) ako aj krásne prechádzkové trasy pri hrádzi Elz alebo v Allmendwalde sú dostupné pešo.
Množstvo nákupných možností (Rewe, Edeka, Aldi, Mediamarkt, Obi) je vzdialených 3–10 minút jazdy (na bicykli alebo autom) od domu.
Vďaka stanici Teningen-Mundingen (12 minút pešo, 4 minúty na bicykli) a miestnemu prístupu na diaľnicu A5 (6 minút autom) máte vynikajúce dopravné spojenie s regiónom.
Ďalšou výhodou je blízkosť okresného mesta Emmendingen. Do krásneho historického centra Emmendingenu sa dostanete za 10 minút (na bicykli alebo autom), kde nájdete kaviarne, početné malé obchody či kino.
Stav:
Dom bol vždy starostlivo udržiavaný. Suterén je suchý. V roku 2019 bola inštalovaná nová olejová kúrenie. V roku 2022 boli investované prostriedky do dvoch nových strešných okien.
Byt v prízemí:
Byt v prízemí je po odchode posledného nájomníka dňa 01.07.2025 potrebný na rekonštrukciu. Disponuje terasou orientovanou na záhradnú stranu.
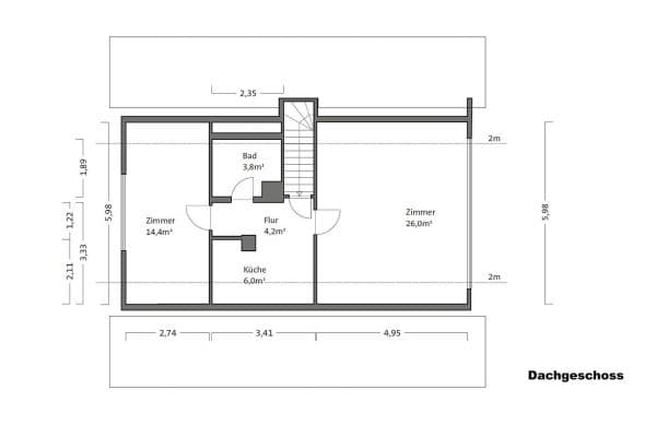
Parametre nehnuteľnosti
| Vek | Nad 50 rokov |
|---|---|
| Stav | Pred rekonštrukciou |
| Úžitková plocha | 265 m² |
| Celkové poschodia | 3 |
| Dostupné od | 14. 3. 2026 |
|---|---|
| Číslo inzerátu | 1000274 |
| Plocha pozemku | 650 m² |
| Cena za jednotku | 2 528 € / m2 |
Čo táto nehnuteľnosť ponúka?
| Balkón | |
| Garáž | |
| MHD 2 minúty pešo |
| Pivnica | |
| Parkovanie | |
| Terasa |
V okolí nehnuteľnosti nájdete
Stále hľadáte to pravé?
Nastavte si strážneho psa. Ponuky vybrané na mieru dostanete súhrnne 1× denne e-mailom. S Premium profilom máte po ruke rovno 5 strážcov a keď sa niečo objaví, informujú vás obratom.














