
Predaj kancelárie • 110 m² bez realitkyDüsseldorf Flingern Nordrhein-Westfalen 40233
Düsseldorf Flingern Nordrhein-Westfalen 40233MHD 1 minúta pešoLadenlokal, prízemie, v Flingern-Nord medzi ulicami Hermannstrasse a Dorotheenstrasse, v galériovej štvrti.
Secesný dom bol v roku 2008 kompletne zrekonštruovaný a galéria bola vybavená podlahovým kúrením (na plyn) s brúseným dizajnovým stiepeným betónom v šedej farbe. Sú tu dve veľké výkladné okná smerom k ulici, dvojkrídlový vstup, ktorý je možné otvoriť z oboch strán. K dispozícii je aj druhý prístup do dvoru. V priestore orientovanom k ulici je osvetlenie. Sklepná miestnosť je využiteľná ako sklad. Energetický preukaz bude pri obhliadke predložený.
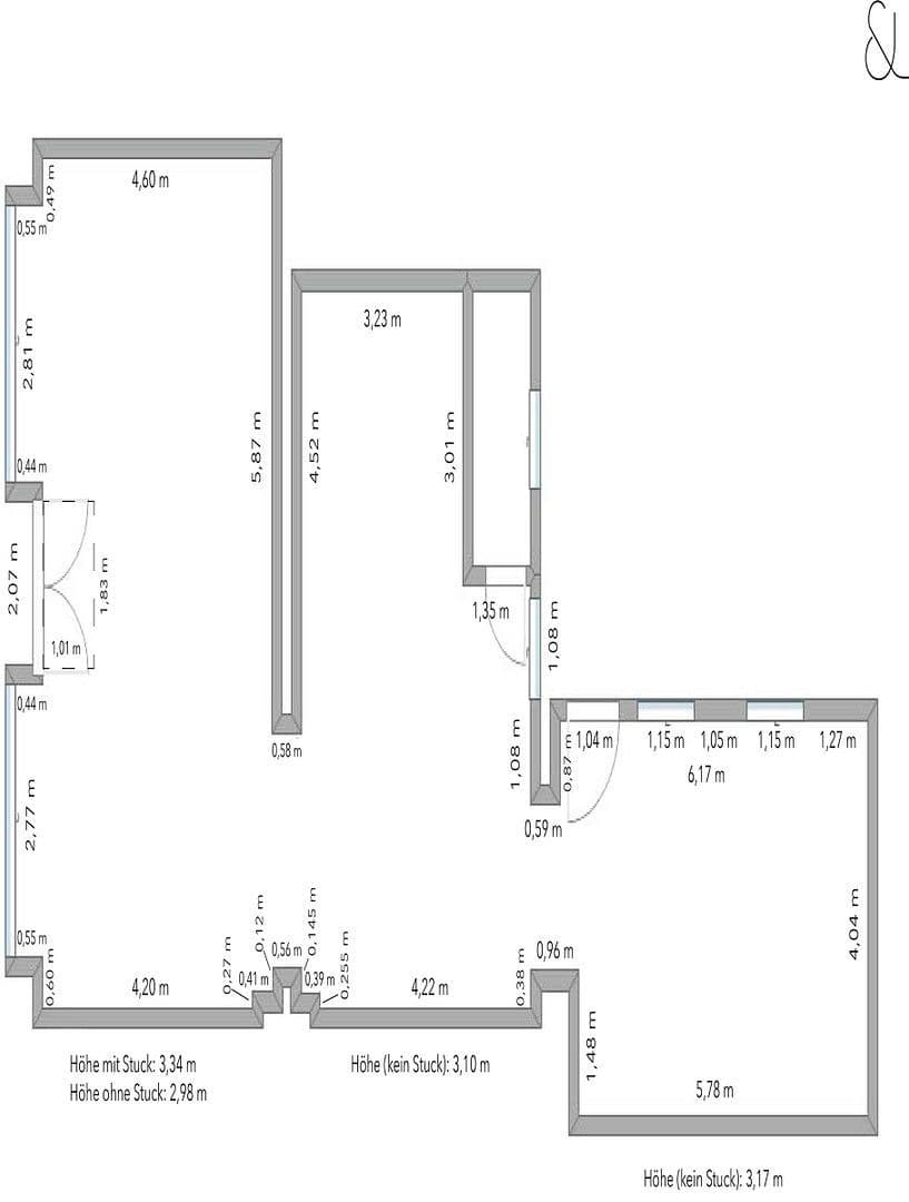
Je k dispozícii malá kúpeľňa so sprchovacím kútom a oknom do dvoru, pričom dvor (cca 120 m²) je k dispozícii na užívanie. Podľa časti vyhlásenia má LALo právo na výlučné užívanie. Avšak musí byť zabezpečený prístup do bicyklového sklepa, vykurovacieho sklepa a ku kontajnerom na odpadky. Ďalej je v deklarácii uvedené, že predajňa môže so súhlasom stavebného dozoru prebudovať na bývanie. Čo sa týka výšky stropu a dispozície, pozrite si plány.
Predajňa sa nachádza v rozmanitej, dynamickej štvrti Flingern-Nord, na jednej z najobľúbenejších nákupných ulíc v danej štvrti. Flingern-Nord je silno umeleckého charakteru a v posledných rokoch sa tu usadili renomované galérie.
Lokalita je vzdialená 2,7 km od Königsallee (mestské centrum) a 1,6 km od hlavnej stanice.
Objekt je veľmi dobre napojený na verejnú dopravu – má prístup k viacerým autobusovým, električkovým, metro aj vlakovým (S-Bahn) linkám.
Výkladné okná boli v roku 2008 novozasklené s dvojitým sklom so zachovaním pôvodných profilov. Ostatné okná boli nahradené starými drevenými oknami. Ide o Merantif okná z certifikovanej príčlenky, spoločnosti Bröcking.
Predajná miestnosť vpredu má výšku stropu 3,70 m a originálna štuková lišta z roku 1907 zdobí strop.
Všimnite si, prosím, že som nemohol uviesť náklady na elektrinu a kúrenie. V prípade záujmu Vám rád e-mailom zašlem aktuálne rozúčtovanie prevádzkových nákladov za rok 2024. Na niektorých fotkách môže podlaha pôsobiť nažltnuto, čo nezodpovedá skutočnej farbe – autentický odtieň je šedý.
Predajňa je momentálne prenajatá. Pri „vlastnej potrebe“ platia zákonné predpisy. (Výpoveď je možná len za dodržania zákonnej lehoty (§ 580a BGB: 6 mesiacov k záveru štvrťroka) alebo mimoriadne z dôležitého dôvodu.)
Podľa vyhlásenia o vlastníctve nesmie byť zriazená reštaurácia, herňa, práčovňa ani niečo podobné.
Parametre nehnuteľnosti
| Vek | Nad 50 rokov |
|---|---|
| Stav | Po rekonštrukcii |
| Plocha kancelárie | 110 m² |
| Dostupné od | 30. 6. 2026 |
|---|---|
| Číslo inzerátu | 999460 |
| Cena za jednotku | 0 € / m2 |
Čo táto nehnuteľnosť ponúka?
| Pivnica |
| MHD 1 minúta pešo |
V okolí nehnuteľnosti nájdete
Stále hľadáte to pravé?
Nastavte si strážneho psa. Ponuky vybrané na mieru dostanete súhrnne 1× denne e-mailom. S Premium profilom máte po ruke rovno 5 strážcov a keď sa niečo objaví, informujú vás obratom.














