
Predaj domu 4+1 • 129 m² bez realitkySchlossbergstraße 6, , Šlezvicko-Holštajnsko
Schlossbergstraße 6, , Šlezvicko-HolštajnskoMHD 2 minúty autom • ParkovanieNa predaj je "Sny pod sierskou strechou":
Uprostred dediny a predsa oddelený – láskavo zariadený dom so sierskou strechou v rozprávkovej záhrade s kvetmi, starými jablňami a rozľahlým sýto zeleným trávnikom.
Frízske vidiecke sídlo z roku 1785, zrekonštruované v roku 2020, s jednoduchou pamiatkovou ochranou (predovšetkým exteriérového vzhľadu),
približne 129 m² prízemia, podkrovie s možnosťou rozšírenia
Dom je momentálne prenajímaný ako rekreačný dom. Prenájmy môžu byť prevzaté.
Doteraz vždy nefajčiari, nikdy žiadne domáce zvieratá.
Plne zariadený/plne vybavený, množstvo antikvít, elegantné vybavenie, moderná vstavaná kuchyňa, sauna
– ideálny ako druhé bývanie a/alebo rekreačný prenájom
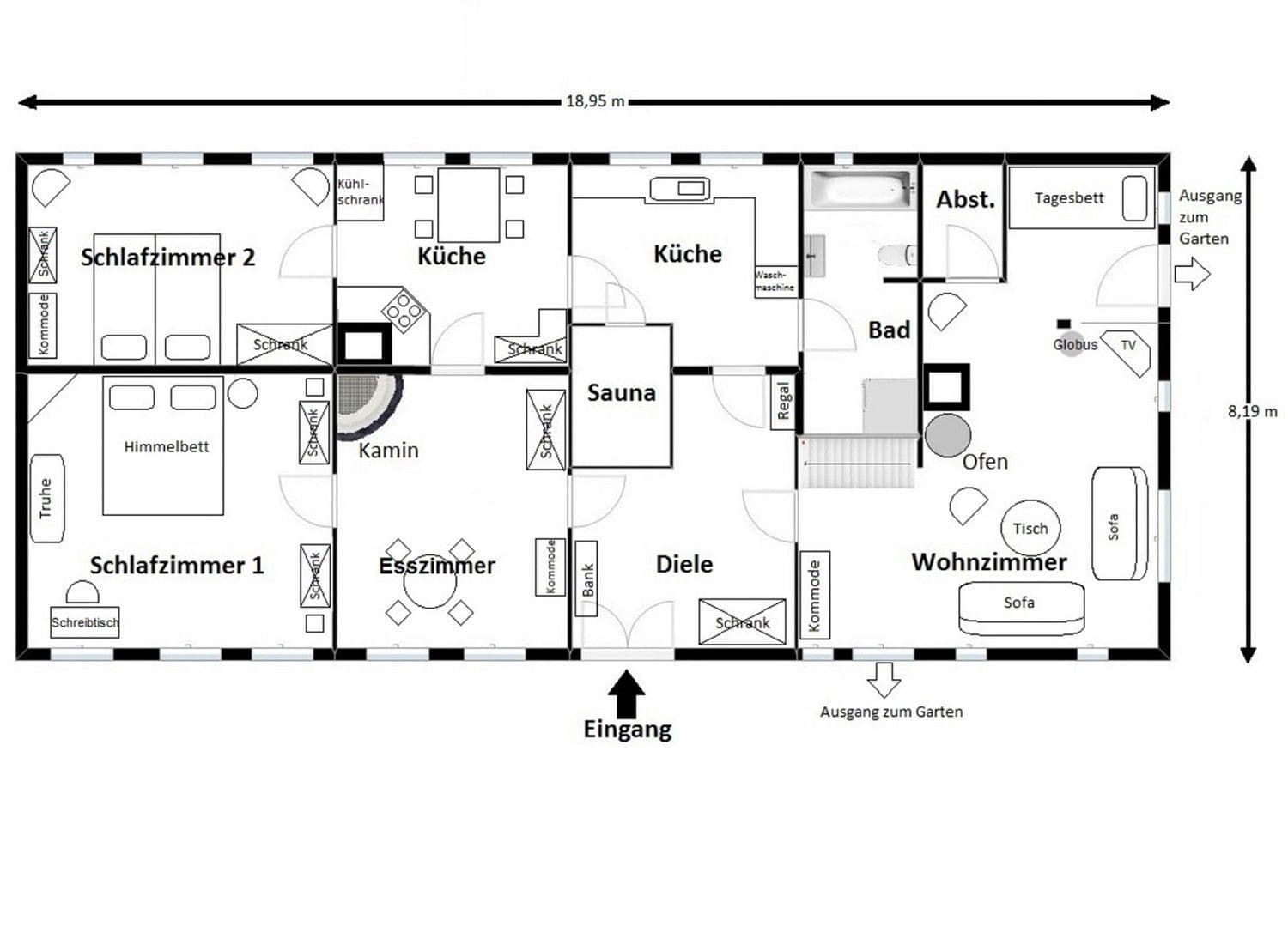
Interiér: Do domu vstúpite cez dvojkrídlové dvere (južný portál) a dostanete sa do haly. Pôvodne bol dom rozdelený na obytnú časť (západná časť domu) a o 10 cm nižšie položenú stajňu (východná časť domu). Medzičasom sú všetky miestnosti obytné.
Z haly na ľavej strane sa nachádza jedáleň (s elektrickým podlahovým kúrením) s veľkým krbom a spálňa, za ktorými nasleduje kuchyňa a druhá spálňa. Kuchyňa pozostáva z dvoch častí, a to z "variacej" kuchyne s krbom (dnes moderná indukčná doska) a z bývalej "práčovne", dnes vybavenej umývadlom, umývačkou riadu a práčkou.
Odtiaľ vedie cesta aj k kúpeľni a saune.
Pravá časť domu, viditeľná z haly, bola pôvodne stajňou, ale dnes je to priestranný obývací priestor s okneným stodolovým dverami a výhľadom do záhrady. Otočný krbový pec vytvára príjemnú atmosféru. Za oddelovacím prvkom sa nachádza odpočinkový kútik s východom do záhrady a zároveň prístup do "technickej miestnosti"; tam sa tiež nachádza riadiaca jednotka pre moderné elektrické kúrenie (oneskorené kúrenie, využívajúce výhodný tarif N-elektriny).
Exteriér: Pozemok, ktorý je zarastený starým dreveným porastom, je členitý premyslene navrhnutými exteriérovými úpravami: portál a záhradná brána; medzi nimi frízsky val s pieskovou dúnou, 1 parkovacie miesto pre automobil vnútri ohrady, 1 miesto mimo ohrady; 2 terasy a záhradné chodníky obložené antickým rašelinným klinkerom, ohraničené živými plotmi busu. Pri dome sa nachádza murivá studňa. V záhrade je aj úložná chata (na bicykle, záhradné náradie atď.) a dodatočný prístrešok na palivové drevo.
Vybavenie: Dom je plne vybavený, úplne zariadený vrátane záhradného nábytku, záhradných náradí a robota na sekanie trávy. Momentálne je priebežne prenajímaný ako rekreačný dom, už aj na niekoľko týždňov počas roka. Už rezervované prenájmy môžu byť prevzaté.
Lokalita: Dom sa nachádza v dedine Stadum, ktorá leží pri ceste B199 medzi Schafflundom a Leckom (každá približne 8 km vzdialená), v dvoch vidieckych centrách ponúkajúcich obchody, lekárov, školy, remeselné a servisné podniky. Vzdialenosti do Flensburgu, Husumu a Tondernu/Dánska sú približne 25 km. Do Niebüllu (vlakom na Sylt) je to 18 km.
Vybavenie: Dom sa predáva kompletne s inventárom.
Je plne vybavený, úplne zariadený vrátane záhradného nábytku, záhradných náradí a robota na sekanie trávy. Momentálne je priebežne prenajímaný ako rekreačný dom, už aj na niekoľko týždňov počas roka. Už rezervované prenájmy môžu byť prevzaté.
Energetický preukaz nie je potrebný/nie je možný, pretože ide o historickú nehnuteľnosť.
Parametre nehnuteľnosti
| Vek | Nad 50 rokov |
|---|---|
| Dispozícia | 4+1 |
| Úžitková plocha | 129 m² |
| Celkové poschodia | 1 |
| Stav | Dobrý |
|---|---|
| Číslo inzerátu | 999382 |
| Plocha pozemku | 1 021 m² |
| Cena za jednotku | 3 062 € / m2 |
Čo táto nehnuteľnosť ponúka?
| Parkovanie | |
| Terasa |
| MHD 2 minúty autom |
V okolí nehnuteľnosti nájdete
Stále hľadáte to pravé?
Nastavte si strážneho psa. Ponuky vybrané na mieru dostanete súhrnne 1× denne e-mailom. S Premium profilom máte po ruke rovno 5 strážcov a keď sa niečo objaví, informujú vás obratom.






























