
Prenájom bytu 3+1 • 87 m² bez realitkyBorsteler Chaussee 177 Hamburg Groß Borstel Hamburg 22453
Diese neu errichtete Dachgeschosswohnung befindet sich in einem frisch modernisierten Mehrfamilienhaus mit insgesamt sieben Wohneinheiten in ruhiger Lage von Hamburg-Groß Borstel.
Táto novovzniknutá podkrovná bytosť sa nachádza v čerstvo zmodernizovanom viacrodinnom dome s celkovo siedmimi obytnými jednotkami v pokojnej lokalite Hamburg-Groß Borstel.
Im Zuge des Dachgeschossausbaus entstanden zwei komplett neue Wohnungen. Gleichzeitig wurde das ehemalige Gewerbe im Erdgeschoss zu hochwertigem Wohnraum umgestaltet. Rückseitig eröffnet sich der Blick auf einen ruhigen, grünen Garten.
Pri podkrovnom prestavbe vznikli dva úplne nové byty. Súčasne bolo bývalé komerčné priestory v prízemí premenené na kvalitné obytné priestory. Zo zadnej strany sa otvára výhľad na pokojnú, zelenú záhradu.
Der Innenausbau ist abgeschlossen und die Wohnungen bezugsfertig.
Interiérové úpravy sú dokončené a byty sú pripravené na nasťahovanie.
Das Objekt verbindet den Charme eines Bestandshauses mit dem Komfort moderner Technik. Die Geschichte des Gebäudes – ursprünglich 1961 errichtet – bleibt dabei spürbar: Im Keller befindet sich noch heute ein rund 30 m² großer Beton-Tresorraum aus der Zeit, als das Haus eine Sparkassenfiliale war. Später diente das Erdgeschoss viele Jahre als Apotheke.
Objekt spája čaro historickej budovy s komfortom modernej techniky. História budovy – pôvodne postavenej v roku 1961 – je stále cítiť: v suteréne sa dodnes nachádza približne 30 m² veľká betónová trezorová miestnosť z čias, keď bola budova pobočkou Sparkasse. Neskôr slúžilo prízemie mnoho rokov ako lekáreň.
Die Wohnung liegt zentral im grünen Stadtteil Groß Borstel.
Byt sa nachádza centrálne v zelenej štvrti Groß Borstel.
Die Anbindung an den öffentlichen Nahverkehr ist mit einer Bushaltestelle direkt vor der Haustür äußerst praktisch.
Doprava verejnou dopravou je mimoriadne praktická, keďže autobusová zastávka je priamo pred domu.
Die Buslinie 114 bringt sie entweder Richtung Eppendorf bzw. weiter in 25 Minuten zum Dammtor oder in die andere Richtung in weniger als 10 Minuten direkt zur Lufthansa-Basis - perfekt für Beschäftigte am Flughafen.
Autobusová linka 114 vás zavezie buď smerom k Eppendorfu, respektíve ďalej za 25 minút k Dammtoru, alebo opačným smerom za menej ako 10 minút priamo k základni Lufthansa – ideálne pre zamestnancov letiska.
Mit dem Expressbus X35 gelangen Sie in rund 35 Minuten zum Rathausmarkt.
Expresným autobusom X35 sa dostanete približne za 35 minút na námestie úradov.
Sämtliche Einkaufsmöglichkeiten für den täglichen Bedarf sowie Arztpraxen und Apotheken finden Sie direkt um die Ecke in der Borsteler Chaussee.
Všetky možnosti nákupu denného tovaru, ako aj lekárske ordinácie a lekárne, nájdete hneď za roh na ulici Borsteler Chaussee.
Erholung im Grünen finden Sie im nahe gelegenen Naturschutzgebiet Eppendorfer Moor oder am Alsterlauf.
Oddych v prírode nájdete v blízkom prírodnom chránenom území Eppendorfer Moor alebo pozdĺž rieky Alsterlauf.
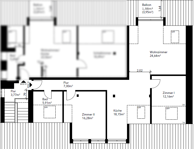
Über das allgemeine Treppenhaus gelangt man in die frisch hergestellte Dachgeschosswohnung (2. Obergeschoss).
Do novo zrekonštruovanej podkrokvovej bytu (2. poschodie) sa dostanete cez spoločný schodisko.
Von der Wohnungstür betritt man den Eingangsbereich und befindet sich in einem langen Flur von dem man in alle vorhandenen Wohnbereiche gelangt.
Zo dverí bytu vstúpite do vstupnej haly a ocitnete sa v dlhom chodbe, z ktorého vedú dvere do všetkých dostupných obytných priestorov.
Als erstes findet sich auf der rechten Seite das ansprechende Badezimmer (ca. 5,9 m²) mit Badewanne, WC, Waschbecken und Spiegelschrank. Im Badezimmer sorgt ein Dachfenster für eine helle und freundliche Atmosphäre.
Prvá miestnosť vpravo je príťaživá kúpeľňa (približne 5,9 m²) s vaňou, toaletou, umývadlom a zrkadlovou skriňou. V kúpeľni zaistí strešné okno svetlú a priateľskú atmosféru.
Der zweite Raum (Zimmer II, ca. 16,3 m²) bietet sich zur Nutzung als Schlafzimmer an und verfügt über zwei großes Fenster. Neben einem Bett ist hier aktuell ein kleiner Arbeitsplatz untergebracht.
Druhá izba (izba II, cca 16,3 m²) je vhodná ako spálňa a disponuje dvoma veľkými oknami. Okrem postele tu je momentálne zariadené aj malé pracovisko.
Das großzügige Wohnzimmer (ca. 23,5 m²) mit offener angrenzender Küche bildet das Herzstück der Wohnung. Wie alle Wohnräume ist es mit modernem Echtholzparkett (Eiche) als Fußbodenbelag ausgestattet. Bereits hier erkennt man den besonderen Charme der Dachgeschosswohnung: Die gemütlichen Dachschrägen sind modern und dem natürlichen Aufbau des Daches sowie den tragenden Elementen nachempfunden. Im Wohnzimmer finden Esstisch, Couch und Fernseher sowie die vollständig mit hochwertigen Elektrogeräten ausgestattete Einbauküche ihren Platz.
Obrovský obývací priestor (približne 23,5 m²) s otvorenou prístupnou kuchyňou tvorí srdce bytu. Rovnako ako všetky obytné miestnosti je vybavený moderným parketovým podlahovým krytinom z masívneho dreva (dub). Už v tejto miestnosti je vidieť špeciálne kúzlo podkrovného bytu: útulné šikmé stropy sú moderné a verne napodobňujú prirodzenú štruktúru strechy a nosné prvky. V obývacej izbe nájdete jedálenský stôl, pohovku a televízor, ako aj kompletne vybavenú vstavanú kuchyňu s kvalitnými elektrickými spotrebičmi.
Die helle Ausleuchtung ergibt sich neben den beiden Dachfenstern auch durch die große Gaube im Wohnzimmer, von welcher man auf den Balkon gelangt. Der nach Südwesten ausgerichtete Balkon liegt rückseitig und somit ruhig zum Garten. Mit einer Fläche von knapp 4 m² bietet er Platz für einen kleinen Tisch und Stühle – der Blick kann hier ins Grüne schweifen.
Dostatočné osvetlenie zabezpečujú okrem dvoch strešných okien aj veľká vikýna v obývacej izbe, z ktorej vedie vchod na balkón. Balkon orientovaný na juhozápad sa nachádza vzadu, takže je smerom do záhrady tichý. S plochou takmer 4 m² ponúka miesto pre malý stôl a stoličky – odtiaľ sa otvára výhľad do zelene.
Von der Küche/Wohnzimmer aus, gelangt man in den letzten Raum (Zimmer I, ca. 12,1 m²) welches sich ebenfalls zur Nutzung als Schlafzimmer anbietet. Neben dem zweiten Bett findet sich hier ein Schrank, Regale und weiterer Stauraum.
Z kuchyne/obývacej izby sa dostanete do poslednej miestnosti (izba I, približne 12,1 m²), ktorá je taktiež vhodná na spálňu. Popri druhej posteli tu nájdete skriňu, police a ďalší úložný priestor.
Die Wohnung ist durch Ihren Schnitt und die vorhandenen Einrichtung geeignet für Paare mit und ohne Kinder. Durch die zwei vollwertigen Schlafzimmer wäre aber auch eine Berufstätigen-WG möglich.
Vďaka dispozícii a existujúcemu zariadeniu je byt vhodný pre páry s deťmi aj bez detí. Vďaka dvom plnohodnotným spálňam je však možná aj spoločná bývanie pracujúcich osôb (WG).
Insgesamt wirkt die Wohnung durch die nicht anrechenbaren Teile der Dachschrägen größer, als es die Quadratmeterangabe vermuten lässt.
Celkovo sa byt javí väčší, než naznačujú jeho štvorcové metre, vďaka nepočítateľným častiam šikmých stropov.
In der Pauschalmiete sind neben den klassischen Mietnebenkosten auch Internetanschluss, Fernseher & TV-Sender über Kabelanschluss bzw. Internet, Strom-, Wasser- und Heizungskosten - im Rahmen eines haushaltsüblichen Verbrauchs enthalten.
V paušálnej nájomnej sume sú okrem klasických režijných nákladov zahrnuté aj pripojenie na internet, televízor a TV kanály cez káblovú prípojku či internet, náklady na elektrinu, vodu a kúrenie – v rámci bežnej spotreby domácnosti.
Die gesetzliche Rundfunkgebühr wird direkt von der zuständigen Stelle beim Mieter erhoben und ist uns als Vermieter nicht möglich.
Zákonný poplatok za verejnoprávne vysielanie sa priamo od účtovnej autority odoberá od nájomcu a nie je súčasťou našich povinností ako prenajímateľa.
Bitte beachten Sie, dass die Wohnung nur "zum vorübergehenden Gebrauch" angemietet werden kann. Hierfür muss ein sachlicher Grund wie etwa ein Praktikum, ein Projektvertrag oder ein anderer vorübergehender Sonderbedarf vorliegen, welcher sachlich eine entsprechende Kurzfristigkeit begründet.
Vezmite prosím na vedomie, že byt je možné prenajať iba „na dočasné užívanie“. Pre tento účel musí existovať oprávnený dôvod, napríklad stáž, projektová zmluva alebo iná dočasná špeciálna potreba, ktorá oprávňuje takú krátkodobú dobu prenájmu.
Die zulässige Mindestmietdauer umfasst in diesem Rahmen mindestens 3 Monate und eine maximale Mietdauer von 12 Monaten.
Prípustná minimálna doba prenájmu v tomto prípade je najmenej 3 mesiace a maximálne 12 mesiacov.
Alle hier gemachten Angaben sind ohne Gewähr.
Všetky tu uvedené informácie sú bez záruky.
Impressums-Angaben des Anbieters des Objekts:
Údaje o poskytovateľovi objektu:
FdW Development GmbH
Firmensitz: Teilfeld 5
20459 Hamburg
Registergericht: Amtsgericht Hamburg
Registernummer: HRB 160209
Vertretungsberechtigter Geschäftsführer: Dr. Florian de Weryha, Sven Paul, Jan-Torsten Paul
Kontakt: Bitte nutzen Sie bei Interesse am Objekt das Kontaktformular.
Kontakt: V prípade záujmu o objekt, prosím, využite kontaktný formulár.
Weitere Pflichtangaben (nicht für Anfragen zum Objekt):
Ďalšie povinné údaje (nepre určené pre dopyty ohľadom objektu):
Tel: 040 / 555 49-444
E-Mail: info@fdwventures.de
[WE 07]
Parametre nehnuteľnosti
| Vek | Nad 50 rokov |
|---|---|
| Dispozícia | 3+1 |
| Poschodie | 2. poschodie z 3 |
| PENB | B - Veľmi úsporné |
| Cena za jednotku | 21 € / m2 |
| Stav | Novostavba |
|---|---|
| Vybavené | Vybavené |
| Číslo inzerátu | 999376 |
| Úžitková plocha | 87 m² |
Čo táto nehnuteľnosť ponúka?
| Balkón | |
| MHD 1 minúta pešo |
| Pivnica |
V okolí nehnuteľnosti nájdete
Stále hľadáte to pravé?
Nastavte si strážneho psa. Ponuky vybrané na mieru dostanete súhrnne 1× denne e-mailom. S Premium profilom máte po ruke rovno 5 strážcov a keď sa niečo objaví, informujú vás obratom.


















