
Predaj bytu 4+1 • 82 m² bez realitkyEggstätt Eggstätt Bayern 83125
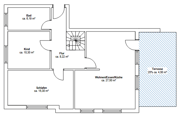
Eggstätt Eggstätt Bayern 83125MHD 2 minúty pešo • ParkovanieNa predaj je upravený a vysoko kvalitne vybavený 4-izbový prízemný byt v Eggstätt. Jedna z týchto izieb je svetlá záľubná miestnosť v suteréne, ku ktorej vedie schodisko z prízemia a následne je prístupná zo samotného bytu. Byt zaujme otvoreným, premysleným pôdorysom, svetlými priestormi a vysoko kvalitným vybavením – ideálny pre páry, malé rodiny alebo náročných používateľov. Súčasťou bytu je približne 18 m² terasa a približne 30 m² záhradný priestor.
Obytná plocha je približne 82 m², pričom záľubná miestnosť v suteréne sa započítava na 50 % a terasa na 25 % (výpočet obytných plôch podľa nariadenia o obytných plochách). Celková využiteľná plocha však činí približne 109 m².
Dom je vybavený olejovým centrálne kúrením.
KAPITÁLOVY INVESTÍCIÓVY PROJEKT
Byt je od júna 2024 prenajatý. Nájomné bez služieb: 1 190 € mesačne plus 300 € záloha na prevádzkové náklady.
Ročné nájomné bez služieb: 14 280 €. Atraktívna kapitálová investícia vo vyhľadávanej obytné oblasti.
Byt sa nachádza v centrálnej tichej obytné štvrti Eggstätt, na okraji Chráneného prírodného územia Eggstätt-Hemhofer Seenplatte. V pešej vzdialenosti sú supermarket, lekáreň, lekári, materské školy, základná škola a gastronomické zariadenia. Vysoká hodnota pre oddych a rekreáciu vďaka jazerám, prírode a aktívnemu spolčenskému životu.
Rozloženie a vybavenie:
- Priestranná obývacia jedáleň s priamym vstupom na terasu
- Otvorená kuchyňa s kvalitnou kuchyňou Nolte (2018), Bora systémom a spotrebičmi Miele – zahrnuté v kúpnej cene
- Dve dobre rozmiestnené spálne plus dodatočná izba v suteréne (s priepustom svetla a kúrením)
- Modernizovaná kúpeľňa (čiastočná rekonštrukcia 2024)
- Podlahové kúrenie v prízemí
- Podlahové krytiny: dlaždice a laminát
- Suterén (priamy vstup z bytu cez schodisko a zvonku cez spoločné schodisko)
- Carport a parkovacie miesto
Ďalšie výhody:
- Pripojenie pre práčku v kúpeľni
- Vlastný sklepný priestor (približne 10 m²)
- Spoločný cyklistický sklep
- Sušiareň
Fotografie pochádzajú z obdobia pred nasťahovaním súčasných nájomcov.
Kvôli ochrane súkromia neboli zverejnené aktuálne zábery interiéru.
Parametre nehnuteľnosti
| Vek | Nad 50 rokov |
|---|---|
| Dispozícia | 4+1 |
| Úžitková plocha | 82 m² |
| Stav | Dobrý |
|---|---|
| Číslo inzerátu | 999126 |
| Cena za jednotku | 4 854 € / m2 |
Čo táto nehnuteľnosť ponúka?
| Pivnica | |
| MHD 2 minúty pešo |
| Parkovanie | |
| Terasa |
V okolí nehnuteľnosti nájdete
Stále hľadáte to pravé?
Nastavte si strážneho psa. Ponuky vybrané na mieru dostanete súhrnne 1× denne e-mailom. S Premium profilom máte po ruke rovno 5 strážcov a keď sa niečo objaví, informujú vás obratom.










