
Predaj bytu 4+1 • 106 m² bez realitkyBernau am Chiemsee Bernau a. Chiemsee Bayern 83233
Bernau am Chiemsee Bernau a. Chiemsee Bayern 83233MHD 2 minúty pešoTáto priestranná 4-izbová bytosť v atraktívnej lokalite Bernau pri Chiemsee je ideálna pre kapitálových investorov, ktorí zvažujú strednodobé vlastné užívanie (napríklad pre rodinu alebo ako dôchodcovský rezidenciu).
Bytosť prináša trhovú mieru nájomného výnosu a je vhodná ako stabilná investícia s dodatočným potenciálom pre vlastné bývanie. Ide o zriedkavú ponuku pre kupujúcich, ktorí si cenia flexibilitu medzi prenájmom a vlastným užívaním.
Lokalitu Bernau pri Chiemsee je ťažké prekonať:
Viacrodinný dom sa nachádza v pokojnej, etablovanej obytné štvrti Bernau pri Chiemsee. Okolie je prevažne tvorené viacrodinnými a rodinnými domami a vyznačuje sa príjemnou, rodinne orientovanou atmosférou.
Železničná stanica Bernau (Chiemsee) je dostupná pešo a poskytuje veľmi dobré spojenie smerom do Mníchova aj do Salzburgu. Aj centrum Bernau s obchodmi, lekármi, gastronomickými zariadeniami a ďalšími službami pre každodenné potreby je ľahko dostupné.
Blízkosť k Chiemsee, k rekreačným oblastiam aj k alpskej oblasti podčiarkuje vysokú kvalitu bývania a voľnočasových aktivít tejto lokality. Zároveň vynikajúce dopravné spojenie (diaľnica A8, vlak) umožňuje atraktívnu kombináciu pokojného bývania a výhod pre dojíždzaných.
Kľúčové informácie:
• Moderný, veľmi udržiavaný viacrodinný dom s iba 9 jednotkami
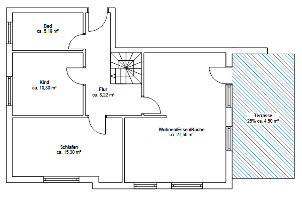
• Bývacia plocha: cca 106 m² (97 m² bytu + cca 18 m² balkón so 50 % podielom)
• Počet izieb: 4
• Poschodie: 1. nadzemné podlažie
• Balkón s južným orientáciou smerom k Kampenwande
• Kúpeľňa s oknom, vaňou a sprchovým kútom + samostatná toaleta pre hostí
• Vlastná kuchyňa s oknom a samostatným jedálenským kútom
• Podlahové kúrenie
• Žalúzie na oknách
• Vlastná pivnica
• K dispozícii je parkovacie miesto v podzemnej garáži (nie duplex)
• Rok výstavby: Pôvodná stavba (okolo 1990)
• Stav: Veľmi udržiavaná stavba, perspektívne modernizovateľná
• Nové plynové ústredné kúrenie (2024)
• Elektrické rozvody: 3-vodičové
• Drevené okná: dvojité zasklenie (pôvodné, v dobrom stave, perspektívna výmena možná)
• Energetická trieda: C
• Aktuálne: prenajaté
• Právne možná výpoveď pre vlastnú potrebu – viacrodinný dom je už rozdelený podľa WEG, bez záložnej lehoty
Kuchyňa je vo vlastníctve nájomcu
Kúpna cena:
Bytosť vrátane pivnice cca 413 500 € a parkovacie miesto v podzemnej garáži za 25 000 €
Provízia: žiadna
Kontakt:
V prípade záujmu ma prosím kontaktujte – rád vám zašlem ďalšie informácie alebo dohodneme termín obhliadky.
Parametre nehnuteľnosti
| Vek | Nad 50 rokov |
|---|---|
| Dispozícia | 4+1 |
| Číslo inzerátu | 995692 |
| Úžitková plocha | 106 m² |
| Stav | Dobrý |
|---|---|
| Poschodie | 1. poschodie z 3 |
| PENB | D - Menej hospodárne |
| Cena za jednotku | 3 901 € / m2 |
Čo táto nehnuteľnosť ponúka?
| Balkón | |
| MHD 2 minúty pešo |
| Pivnica |
V okolí nehnuteľnosti nájdete
Stále hľadáte to pravé?
Nastavte si strážneho psa. Ponuky vybrané na mieru dostanete súhrnne 1× denne e-mailom. S Premium profilom máte po ruke rovno 5 strážcov a keď sa niečo objaví, informujú vás obratom.






