
Prenájom domu 5+1 • 129 m² bez realitkyHebbelstr.6d u. 6e, , Severné Porýnie - Westfálsko
Hebbelstr.6d u. 6e, , Severné Porýnie - WestfálskoMHD 2 minúty pešo • ParkovanieTieto dva novo postavené poloduplexy Vám a Vašej rodine ponúkajú každý približne 129 m² obytného priestoru s najmodernejším komfortom.
Domy sa nachádzajú na pozemkoch o rozlohe 367 m² resp. 344 m² v Neuenkirchen/St. Arnold a budú k dispozícii na nasťahovanie od 01.07.2026.
Vďaka priestrannému rozdeleniu na prízemí (otvorený koncept obývacej, jedálenskej časti a kuchyne) vzniká moderný a príjemný obytný priestor, ideálny pre spoločenské stretnutia. Pre milovníkov oddelenej kuchyne je možnosť oddeliť kuchyňu stavebne od obývacej a jedálenskej časti. Kuchynská linka je na vybavenie nájomcom. Ďalej sa na prízemí nachádza veľká úložná miestnosť, domáca práčovňa s prípojkou pre práčku a sušičku a samostatná toaleta pre hostí.
Poschodie ponúka tri spálne a modernú kúpeľňu s podlahovou sprchou. Je tu možnosť inštalácie vane.
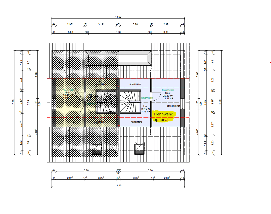
Na podkroví sa nachádza ďalšia svetlá miestnosť s rozlohou viac ako 12 m², ktorá je ideálna ako kancelária, izba pre hostí alebo ďalšia spálňa.
Podlahové kúrenie na prízemí a podkroví, izbové termostaty v každej izbe, elektrické rolety a plastové okná s trojnásobným izolačným zasklením sľubujú najvyšší obytný komfort.
Všetky obytné miestnosti budú vybavené vkusným podlahovým dizajnom s dreveným vzhľadom. Výnimkou je podkrovie (tu budú položené príjemné kobercové dlaždice) ako aj kúpeľňa/toaleta pre hostí/úložná miestnosť/domáca práčovňa, ktoré budú vybavené modernými veľkoformátovými podlahovými dlaždicami. Biele dvere dokonale doladia štýlový dizajn.
Poloduplexy sa vyznačujú modernou architektúrou, konštrukciou v drevenom rámovom systéme, ako aj energeticky úspornou a klimaticky priateľskou vykurovacou technikou (energetická účinnosť triedy KfW 40+). Kombinácia vzduch-voda tepelného čerpadla s fotovoltaickou sústavou a batériovým úložiskom znižuje prevádzkové náklady, zlepšuje environmentálnu bilanciu a zvyšuje energetickú nezávislosť.
Na terase orientovanej na juhozápad si aj po pracovnom dni môžete vychutnať slnko. K dispozícii je carport a navyše aj záhradná budka na náradie.
Domy budú odovzdané v stave priamo k nasťahovaniu (novostavba/prvé užívanie, všetky steny s Raufaser tapetou, natreté na bielo).
Celkovo ide o skvelú ponuku, ktorú si môžete osobne overiť pri prehliadke.
Máte záujem? Prosím, zašlite svoju požiadavku výhradne e-mailom, my vám radi odpovieme.
Tieto poloduplexy sa nachádzajú v pokojnej a vyvinutej obytné oblasti v St. Arnold, obľúbenom sídle Neuenkirchen v okrese Steinfurt.
Zasadené do zelenej, pokojnej prírody na okraji Münsterlandu, spája idylický vidiecky život pre milovníkov prírody s dobrou infraštruktúrou a výhodnou dopravnou dostupnosťou.
Čarovná rekreačná oblasť s dvoma rybníkmi pre rybárov sa nachádza priamo pred vašimi dverami! Okolo rybníkov bol zariadený dobre prístupný okružný chodník s informačnými tabuľami – ideálny na oddych, pozorovanie a relaxáciu. Prírodné a vodné vzdelávacie chodníky, ako aj dráha na cvičenie a tréning, ponúkajú aktívnu voľnočasovú aktivitu aj oddych.
St. Arnold ponúka všetko, čo potrebujete pre každodenné potreby – pekáreň, supermarket, materskú školu, základnú školu, strednú školu, ako aj lekárov a športové kluby – všetko priamo na mieste. Blízke centrum Neuenkirchen, ako aj okresné mesto Rheine, je dostupné autom alebo autobusom za niekoľko minút.
Neuenkirchen s približne 14 000 obyvateľmi ponúka vysokú kvalitu bývania a života. Aktívny spolkový život, početné kultúrne podujatia, optimálna infraštruktúra, dobré možnosti nakupovania a týždenný trh sľubujú rozmanitosť a sú charakteristickými znakmi tejto obce.
– Vykurovanie vzduch-voda tepelným čerpadlom
– Fotovoltaická sústava s batériovým úložiskom
– Podlahové kúrenie v prízemí a podkroví (podkrovie s radiátorom)
– Izbové termostaty v každej izbe
– Elektrické žalúzie
– Obytné miestnosti s dizajnovou podlahou v drevenom vzhľade (podkrovie s kobercovými dlaždicami)
– Kúpeľňa/toaleta pre hostí/úložná miestnosť/domáca práčovňa s modernými veľkoformátovými dlaždicami
– Kúpeľňa s podlahovou sprchou
– Carport
– Záhradná budka na náradie
Parametre nehnuteľnosti
| Vek | Nad 50 rokov |
|---|---|
| Stav | Novostavba |
| Číslo inzerátu | 998598 |
| Úžitková plocha | 129 m² |
| Celkové poschodia | 3 |
| Dostupné od | 1. 7. 2026 |
|---|---|
| Dispozícia | 5+1 |
| PENB | A - Mimoriadne úsporné |
| Plocha pozemku | 367 m² |
| Cena za jednotku | 10 € / m2 |
Čo táto nehnuteľnosť ponúka?
| Parkovanie | |
| Terasa |
| MHD 2 minúty pešo |
V okolí nehnuteľnosti nájdete
Stále hľadáte to pravé?
Nastavte si strážneho psa. Ponuky vybrané na mieru dostanete súhrnne 1× denne e-mailom. S Premium profilom máte po ruke rovno 5 strážcov a keď sa niečo objaví, informujú vás obratom.















