
Predaj bytu 3+1 • 83 m² bez realitkyBayreuth Bayreuth Bayern 95447
Bayreuth Bayreuth Bayern 95447MHD 2 minúty pešoMit týmto expozé Vám predstavujeme dva podkrovia s možnosťou rozšírenia, nachádzajúce sa v atraktívnej lokalite Bayreuthu. Jednotky sa nachádzajú vo veľmi udržiavanom bytovom dome, ktorý je vykurovaný olejovým centrálnym kúrením z roku 2024.
V rokoch 2025/2026 prebehla u súčasného majiteľa komplexná rekonštrukcia schodiska. Pri tejto príležitosti boli renovované steny, stropy, schody a vstupné dvere bytov, pričom boli všetky novo natreté. Okrem toho bude čoskoro úplne obmenená aj vstupná dvere do domu, čo ešte viac podčiarkne pozitívny celkový dojem budovy.
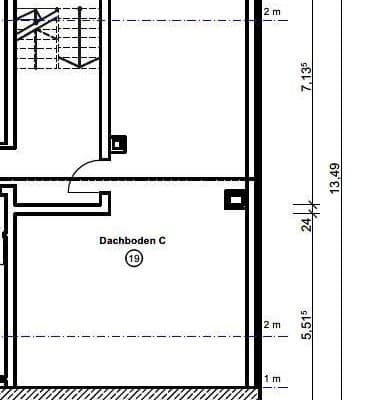
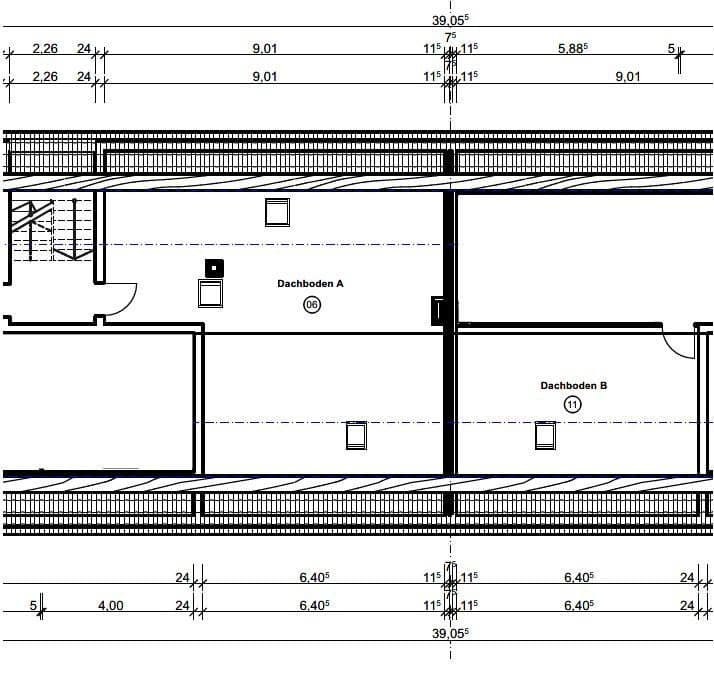
Podkrovia najmä zaujmú vďaka svojej veľkorysej výškovej dispozícii stropov, čo ponúka množstvo možností pre individuálnu rekonštrukciu. Spojením a rozšírením oboch jednotiek je možné vytvoriť prenajímateľnú plochu až približne 83 m².
Základné povolenie alebo súhlas na rozšírenie zo strany spoločenstva vlastníkov už existuje a je zakotvený v deľacej zmluve bytového domu. Akékoľvek prípadné stavebno-právne povolenie na rekonštrukciu je však potrebné, aby kupujúci sám zabezpečil na úrade mesta.
Okrem podkroví je možné, ak je to potrebné, dokúpiť až 2 samostatné garáže na dvore bytového domu (+12 000 € za každú garáž).
K podkrovi patrí aj vlastný pivničný priestor.
Nevlastniteľnosť sa nachádza vo veľmi udržiavanom bytovom dome v krásnom a žiadanom Bayreuthe.
Lokalita spája výhody centrovej polohy s príjemnou kvalitou bývania: obchody, reštaurácie, ako aj možnosti pre voľnočasové aktivity sa nachádzajú v pešej vzdialenosti, čo zabezpečuje vysoký komfort bývania.
Verejná doprava je v dobrej dostupnosti.
- Olejové centrálné kúrenie z roku 2024
- Ideálne prispôsobiteľný podkrovný priestor
- Schodisko zrekonštruované v roku 2025
- V roku 2026 obnova vstupných dverí do domu
- Bytový dom z roku 1964
- Nie je zaradený pod ochranu pamiatok
- Poloha blízko centra (len niekoľko minút do historickej štvrte)
- Optimálne napojenie na verejnú dopravu
- Možnosť modernej dispozície
- 2. nadpodlažie
- Vlastný pivničný priestor
Parametre nehnuteľnosti
| Vek | Nad 50 rokov |
|---|---|
| Dispozícia | 3+1 |
| Číslo inzerátu | 998138 |
| Úžitková plocha | 83 m² |
| Dostupné od | 14. 3. 2026 |
|---|---|
| Poschodie | 2. poschodie |
| PENB | E - Nehospodárne |
| Cena za jednotku | 842 € / m2 |
Čo táto nehnuteľnosť ponúka?
| Balkón | |
| MHD 2 minúty pešo |
| Pivnica | |
| Terasa |
V okolí nehnuteľnosti nájdete
Stále hľadáte to pravé?
Nastavte si strážneho psa. Ponuky vybrané na mieru dostanete súhrnne 1× denne e-mailom. S Premium profilom máte po ruke rovno 5 strážcov a keď sa niečo objaví, informujú vás obratom.





