
Predaj domu • 224 m² bez realitky, Bádensko-Wurttembersko
Predaj súkromný – ŽIADNI MAKLÉRI!
– prosíme, aby ste sa od maklérskych dopytov zdržali!
Tento samostatne stojaci rodinný dom Vám ponúka 224 m² obytného priestoru na troch podlažiach. Očaruje Vás svojou priestrannou dispozíciou, svetlými miestnosťami a vynikajúcou polohou s výhľadom do zelene.
Prízemie:
Pri vstupe do domu Vás privíta útulná predsieň s vešiakom. Štýlové antikné farebné vitráže medzi chodbou a kuchyňou tu vytvárajú osobitý dizajn. Návštevnícke WC je vybavené sprchovacím kútom. Samostatná televízna izba a priestranná obývacia s jedálenskou miestnosťou ponúkajú mnoho možností využitia. Kuchyňa je oddeliteľná od jedálne posuvnými dverami. Z jedálne sa dostanete priamo na veľkú, krytú terasu s priehľadným strešným krytím – ideálne miesto pre relaxačné chvíle v upravovanej záhrade.
Horné podlažie:
Horné podlažie disponuje veľmi priestrannou spálňou nad carportom a garážou. Štyri ďalšie izby ponúkajú dostatočný priestor pre deti, hostí alebo domáce kancelárie. Priestranná kúpeľňa s dostatkom denného svetla, vaňou, sprchou a podlahovým kúrením dokonale dopĺňa dispozíciu domu.
Pokrýva (podkrovie):
Veľké podkrovie je prístupné, je možné ho rozšíriť o ďalší obytný priestor a ponúka vynikajúcu úložnú kapacitu.
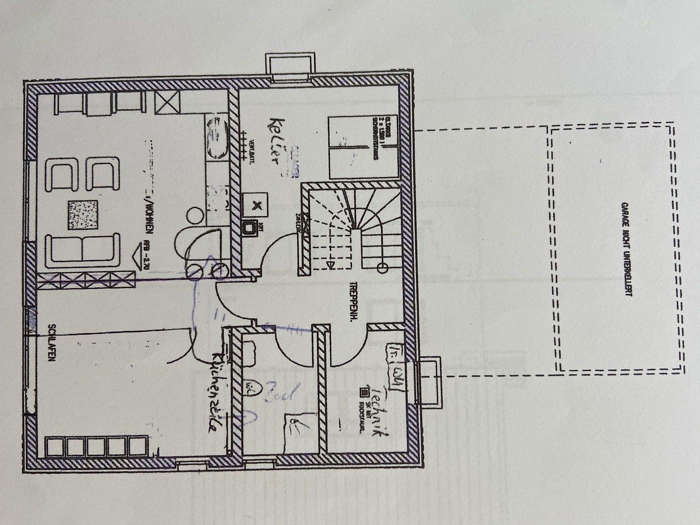
Suterén:
V suteréne sa nachádzajú dve svetlé, priestranné miestnosti s veľkými oknami, kuchyňa a priestranná kúpeľňa. Sú ideálne pre záľuby, prácu alebo izbu pre hostí. Tieto miestnosti môžu byť využité aj ako samostatné bydlisko. Okrem toho sa tu nachádza pivničná miestnosť a technická/domáce miestnosť s pripojeniami pre práčku a sušičku.
ENERGIA:
Energetická trieda: A
Energetický preukaz k dispozícii
Hlavné zdroje energie: ústredné kúrenie
Energetická spotreba: 42,9 kWh/(m²*a)
Platnosť do: 02.03.2035
Rok výstavby (podľa energetického preukazu): 2007
Výkonná fotovoltaická inštalácia (8,2 kWp) s úložným systémom (pre dosiahnutie čo najväčšej autonómie v pripojení na sieť)
• Najlepšia poloha s výhľadom do zelene na západ (terasa),
• druhá terasa smerom na východ,
• pokojná ulica v obytnom sídlisku,
• Bývanie & práca / starostlivosť: Na tento účel sú výborne vhodné miestnosti v suteréne s vlastnou kúpeľňou a kuchyňou.
Pozemok (619 m²) susedí s lúkou a poľom, poskytuje voľný výhľad a nádherný západ slnka. Vzdialenosť od susedných domov je príjemne veľkorysá, poloha mimoriadne idylická a pokojná.
Rodinný dom má 224 m² obytného priestoru na 3 podlažiach a 18 m² pivnice/technickej miestnosti, veľkú terasu s kvalitným krytím, ako aj carport a garáž s 2 parkovacími miestami. Objekt nevyžaduje žiadne rekonštrukčné práce. Veľmi pekná záhrada je udržiavaná a obsahuje mimo iné čerešňový aj slivkový strom.
Ostatné:
DOSTUPNÝ OD: máj 2026 alebo neskôr
V prípade záujmu nás neváhajte kontaktovať a dohodnúť si termín prehliadky.
V prílohe nájdete:
– Zmluvu o dielo
– Obytné/użytkové plochy domu
– Stavebné výkresy
– Výpis z katastrálneho registra nehnuteľností – energetický preukaz
– Technickú dokumentáciu ústredného kúrenia
Popis lokality:
Dom sa nachádza na pokojnej vedľajšej ulici v obytnom sídlisku "Solpark" v Schwäbisch Hall-Hessental. Všetky možnosti nákupu, materské školy a základné školy sú v pešej vzdialenosti. Centrum Schwäbisch Hall je ľahko dostupné bicyklom, autom alebo mestskou autobusovou dopravou. Dobrá verejná doprava je k dispozícii.
Dopravná situácia:
– Autobusová linka: Linka 2 priamo na konci ulice – centrum, škola, stanica a spojenie so ZOB
– Linka 1: cca 700 metrov – centrum, stanica a spojenie so ZOB
– Materské školy: 350 m, 1 km, 1,2 km
Mestska časť Hessental (cca 5000 obyvateľov) je začlenená do Schwäbisch Hall a ponúka v okruhu 5 km výbornú infraštruktúru.
Vybavenie:
– Krytá terasa s elektrickým markízom a bočným markízom (směr západ) z roku 2020
– Fotovoltaická inštalácia s 8,5 kWp a 6,5 kW úložiskom z roku 2018
– Kúpeľňa s denným svetlom
– Sprchovňa s denným svetlom
– Návštevnícke WC s dushou a denným svetlom
– Montovaná kuchyňa
– Elektrické rolety v obytných priestoroch
– Švédska pec
– Dubové parkety, dlaždice, koberec (na hornom podlaží)
– Pivnica
– Záhrada
– Carport
– Garáž
– Nabíjacia stanica (Wallbox) od Heidelberg
Parametre nehnuteľnosti
| Vek | Nad 50 rokov |
|---|---|
| Číslo inzerátu | 997742 |
| Úžitková plocha | 224 m² |
| Celkové poschodia | 3 |
| Stav | Dobrý |
|---|---|
| PENB | A - Mimoriadne úsporné |
| Plocha pozemku | 619 m² |
| Cena za jednotku | 3 348 € / m2 |
Čo táto nehnuteľnosť ponúka?
| Balkón | |
| Garáž | |
| MHD 1 minúta pešo |
| Pivnica | |
| Parkovanie | |
| Terasa |
V okolí nehnuteľnosti nájdete
Stále hľadáte to pravé?
Nastavte si strážneho psa. Ponuky vybrané na mieru dostanete súhrnne 1× denne e-mailom. S Premium profilom máte po ruke rovno 5 strážcov a keď sa niečo objaví, informujú vás obratom.





















