
Prenájom bytu 2+1 • 69 m² bez realitkyLeipziger Straße 19, , Sasko
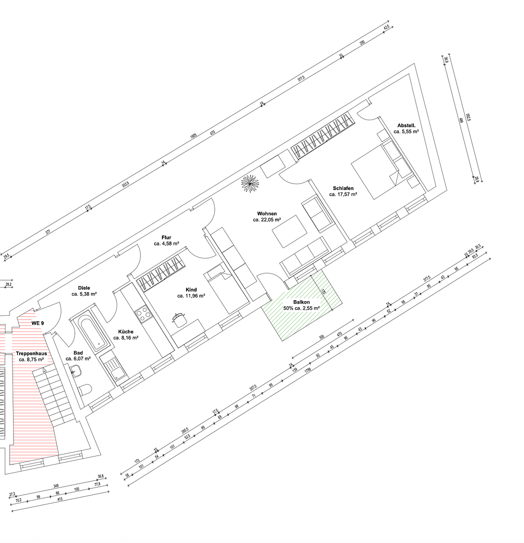
Leipziger Straße 19, , SaskoMHD 6minút pešoVitajte na Leipziger Straße 19–23 v Schkeuditz: Tento dobre rozvrhnutý 3-izbový byt (WE03) v prízemí vpravo ponúka na približne 80,52 m² príjemný domov s balkónom – ideálny pre páry, malé rodiny alebo pre tých, ktorí ocenia dodatočnú izbu pre homeoffice.
Pôdorys zaujme jasným rozdelením priestoru: centrálna obývacia časť tvorí srdce bytu, zatiaľ čo ďalšie dve izby možno flexibilne využiť ako spálňu, detskú izbu, pracovňu alebo izbu pre hostí. Balkón rozširuje obytný priestor do exteriéru a pozýva na pokojné chvíle na čerstvom vzduchu.
Budova pochádza z roku 1990 a je vykurovaná podlažnými kúreniami (plyn/elektricky) – čo umožňuje individuálne riadenie tepelnej potreby bytu. Energetický stav je vyznačený triedou energetickej účinnosti D.
Momentálne nie je uzatvorená žiadna aktívna nájomná zmluva. Radi vám byt osobne predstavíme počas obhliadky a preberieme všetky detaily týkajúce sa jeho stavu, vybavenia a možných termínov na nastěhovanie.
Schkeuditz spája blízkosť k veľkému mestu s krátkymi dennými cestami. Ulica Leipziger je dobre dostupná a ponúka praktickú infraštruktúru: možnosti nákupu pre každodenné potreby, poskytovateľov služieb a ďalšie každodenné vybavenie sú v okolí po ruke.
Dopravné spojenie je jasnou výhodou lokality: cez mestskú hromadnú dopravu a blízke cestné spojenia sa rýchlo dostanete do Lipska a do celého regiónu. Aj rodiny profitujú z ponuky materských škôl, škôl a rekreačných možností v Schkeuditz a jeho okolí.
Jednotka: WE03 (prízemie vpravo)
Obytná plocha: cca 69 m²
Izby: 3
Balkón: áno
Nehnuteľnosť: Leipziger Straße 19–23 (Kód: LS19), 04435 Schkeuditz
Rok výstavby: 1990
Vykurovanie: podlažné kúrenie (plyn/elektricky)
Energetická účinnosť: D
Pamiatková ochrana: nie
Parkovanie: neuvedené
Domáce zvieratá: po dohode
Dostupnosť: ihneď
Parametre nehnuteľnosti
| Vek | Nad 50 rokov |
|---|---|
| Stav | Po rekonštrukcii |
| Číslo inzerátu | 997536 |
| Cena za jednotku | 10 € / m2 |
| Dostupné od | 10. 3. 2026 |
|---|---|
| Dispozícia | 2+1 |
| Úžitková plocha | 69 m² |
Čo táto nehnuteľnosť ponúka?
| Balkón | |
| MHD 6 minút pešo |
| Pivnica | |
| Terasa |
V okolí nehnuteľnosti nájdete
Stále hľadáte to pravé?
Nastavte si strážneho psa. Ponuky vybrané na mieru dostanete súhrnne 1× denne e-mailom. S Premium profilom máte po ruke rovno 5 strážcov a keď sa niečo objaví, informujú vás obratom.















