
Prenájom bytu 3+1 • 66 m² bez realitkyUhlandstraße 1, , Sasko
Uhlandstraße 1, , SaskoMHD 4 minúty pešo • ParkovanieČerstvo zrekonštruovaný 3-izbový byt sa nachádza v udržiavanom viacrodinnom dome a je okamžite k dispozícii. Vo vcelku bytu bol položený kvalitný dizajnový podlahový kryt s integrovanou protišmykovou zvukovou izoláciou. Steny boli čerstvo omietnuté, čo prispieva k svetlému a modernému pocitu z bývania. Aj kúpeľňa bola vylepšená – vybavená novými značkovými armaturami a novým umývadlom so spodnou skrinkou.
K dispozícii je parkovacie miesto priamo pred domom. Jazero Zwenkauer je vzdialené len niekoľko sto metrov, ponúka vysokú hodnotu pre voľnočasové aktivity a atraktívnu lokalitu na bývanie.
Byt sa nachádza v pokojnej a ustálenej obytné štvrti v Zwenkau, len niekoľko minút chôdze od jazera Zwenkauer. Okolie je charakterizované množstvom zelene a príjemným susedstvom s vysokou kvalitou života. Nákupné možnosti, lekári a ďalšie zariadenia pre bežné potreby sú ľahko dostupné.
Vďaka veľmi dobrému dopravnému spojeniu je Lipsko, podľa cieľa, vzdialené približne 20 minút. Prostredníctvom novo vybudovanej spol. cesty Bundesstraße a blízkej diaľnice existuje rýchle a komfortné spojenie do centra Lipska a celej mestskej oblasti. Takto sa ideálne spája bývanie v prírode s blízkosťou veľkomesta.
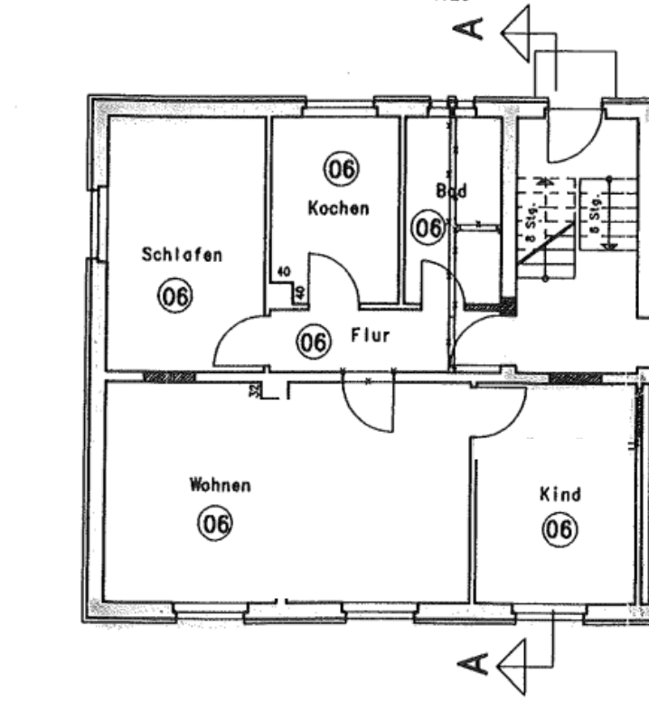
• 3-izbový byt s približne 65 m² obytného priestoru
• Okna s izolačným dvojsklom
• Opticky veľmi príťažlivý nový podlahový kryt
• Elektrická inštalácia podľa súčasných technických štandardov
• Priestranná kuchyňa s možnosťou osobného prispôsobenia
• Moderná kúpeľňa s denným svetlom, dlažbou a kvalitnými značkovými armaturami
• K dispozícii je aj pivničné priestory
• Parkovacie miesto priamo pred domom
• Služby domového správcu a upratovanie domu pre ďalší komfort
Prenájom prebieha súkromne, teším sa na sympatických a spoľahlivých záujemcov, ktorí ocenia tento kvalitný byt.
Na podanie žiadosti potrebujem aktuálnu správu zo Schufa, tri posledné mzdové potvrdenia od zamestnávateľa, alebo ak rodina zabezpečuje nájom, príslušné potvrdenie, prípadne aj doklad o štúdiu, pracovnú zmluvu.
Okrem toho želáme krátky opis osoby a plánov na nasledujúce roky.
Parametre nehnuteľnosti
| Vek | Nad 50 rokov |
|---|---|
| Stav | Po rekonštrukcii |
| Číslo inzerátu | 997179 |
| Úžitková plocha | 66 m² |
| Dostupné od | 6. 3. 2026 |
|---|---|
| Dispozícia | 3+1 |
| PENB | D - Menej hospodárne |
| Cena za jednotku | 8 € / m2 |
Čo táto nehnuteľnosť ponúka?
| Pivnica | |
| MHD 4 minúty pešo |
| Parkovanie |
V okolí nehnuteľnosti nájdete
Stále hľadáte to pravé?
Nastavte si strážneho psa. Ponuky vybrané na mieru dostanete súhrnne 1× denne e-mailom. S Premium profilom máte po ruke rovno 5 strážcov a keď sa niečo objaví, informujú vás obratom.














