
Predaj domu 3+kk • 145 m² bez realitky, Šlezvicko-Holštajnsko
, Šlezvicko-HolštajnskoMHD 2 minúty pešo • Parkovanie • GarážTento samostatne stojaci rodinný dom v Haseldorfe je príkladom zdravého, ekologického bývania. Boli kladené dôrazy na prírodné materiály, udržateľné stavebné materiály a príjemné vnútorné prostredie. Pohoda a moderný životný štýl v súlade s prírodou tu boli zlúčené.
Ideálny pre páry a malé rodiny, ktoré si cenia udržateľnosť a zdravie bývania.
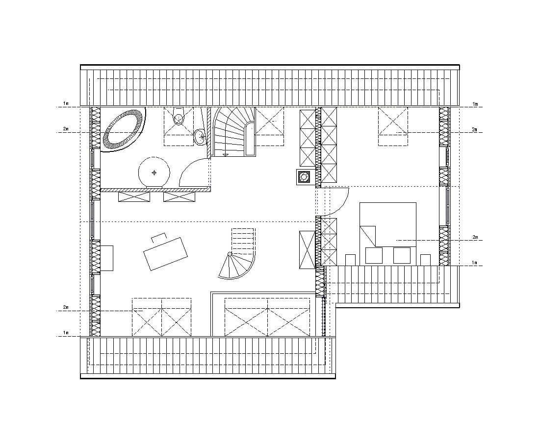
Tento exkluzívny architektonický dom ponúka 145 m² obytného priestoru, 3 m stropnú výšku v prízemí, príjemný vstupný priestor, svetlý obývací a jedálenský priestor, otvorenú kuchyňu a hostinskú toaletu.
Veľká južne orientovaná terasa, ktorá obkolesuje dve strany domu, ponúka skvelé miesta na slnko aj tieň. Z terasy sa otvára nádherný výhľad na záhradu upravenú ako park, s rozmanitou kvetinovou lúkou, ako aj s orechovými a ovocnými stromami.
Široké, zakrivené oceľové schody vedú do poschodia so slnečnou galériou. Na východe sa nachádza priestranná spálňa, zatiaľ čo na západe je svetlá kúpeľňa s rohovou vaňou a sprchou bez prahu.
Ďalšie oceľové schody vedú do útulného ateliéru s veľkými strešnými oknami orientovanými na sever.
Masívne murované vonkajšie múry s červenou omietkou a drevené príčnice so závesnou fasádou z prírodného larixového dreva sú nenáročné na údržbu. Výborná tepelná izolácia zo celulózových vločiek či korkového granulátu udržiava v zime teplo v dome a zabezpečuje príjemné vnútorné teploty v lete. Hlinená omietka a masívna hliněná stena zaručujú príjemné a prirodzene regulované vnútorné prostredie.
Podlahové kúrenie v prízemí a stienkové kúrenie v poschodí pracujú pri veľmi nízkych teplotách suku. Plynová kondenzačná kotol (rok výstavby 2001) je integrovaná do solárneho tepelná systému s podporou vykurovania a akumulačného zásobníka. Fotovoltaický systém s akumulátorom (2022) vyrába 3/4 potrebného elektrického prúdu. Dom je navrhnutý na pasívne solárne zisky a trvalo nízke energetické náklady.
Kuchyňa bola obnovená v roku 2008 a okno v kúpeľni bolo v roku 2022 upravené na trojsklo. V roku 2021 bol dom pripojený k širokopásmovému internetu od WilhelmTel.
K nehnuteľnosti patrí garáž s jedným parkovacím miestom, ako aj 2–3 vonkajšie parkovacie miesta.
Záhrada a terasa výrazne rozširujú obytný priestor do vonkajšieho prostredia.
Podkrovie je upravené a izolované.
Budova nemá suterén.
Dom zaujme svojím premysleným návrhom, udržateľnou stavbou, nízkou spotrebou energie a priestrannou, svetlou dispozíciou.
Detaily
- Rodinný dom, rok výstavby 2000/2001, 25489 Haseldorf
- Udržateľné, prírodné stavebné materiály
- Zdravé, bezškodové prostredie na bývanie
- Vysoká energetická efektívnosť
- Veľmi dobrá izolácia (porovnateľná s požiadavkami KFW 40/55)
- Obnoviteľné zdroje energie
- Spotreba energie podľa energetického preukazu (2023): 30,54 kWh/(m²*a)
- Energetická trieda A
- Obytná plocha cca 145 m²
- 3 ½ izby plus ateliér na podkroví
- Pozemok: 854 m²
- Pozemok sa nachádza v hracej ulici.
- Rozsiahla dokumentácia plánovania a výstavby domu
Haseldorf sa nachádza v Šleswig-Holštajnsku, v okrese Pinneberg pri Labe. Je to jedna z najstarších dedín v Šleswig-Holštajnsku a je známa svojou prírodnou krásou s chránenou prírodnou rezerváciou "Haseldorfer Marsch".
Mnohé záležitosti je možné vybaviť pešo alebo na bicykli za niekoľko minút.
Haseldorf má aktívny spolkový život.
Infrastruktúra v obci a okolí:
- Detské ihrisko: 300 m
- Materská škola "Elb Arche": 1100 m
- Základná škola Haseldorfer Marsch: 900 m
- Športové centrum: 900 m
- Zastávka autobusu: 200 m resp. 1000 m
- Lekárska ambulancia Haseldorf: 700 m
- Raiffeisenbanka: 800 m
- Predaj ovocia a zeleniny: 1500 m
- Pekáreň: 1600 m
- Mäsiarstvo: 2100 m
- Supermarket Heist: 6 km
- Reštaurácia: 1600 m
- Prístav a občerstvenie v Haseldorfe: 2800 m
- Golfové ihrisko: 3100 m
- Labe-pláž Hetlinger Schanze: 5 km
- Správa obce: 6 km
- Uetersen: 10 km
- Wedel: 15 km
- Centrum Hamburgu: 35 km
Doprava:
- Na diaľnicu A23 (smer Hamburg/Heide) cca 16 km.
- Autobus 589 jazdí každú hodinu na S stanicu Wedel.
V obci a okolí sú dobré možnosti zásobovania a infraštruktúry. V Haseldorfe môžete bývať v dedinskom prostredí pri Labe a zároveň byť dobre prepojení s Hamburgom.
Stručný prehľad:
- Svetlý, otvorený obývací a jedálenský priestor
- Priestranná výška 3 m v prízemí
- Reprezentatívna priečka zo viditeľnej stlačenej hliny
- Otvorená vysoko kvalitná vstavaná kuchyňa s ostrovčekom
- Spižíreň priamo pri kuchyni
- Hosťovská toaleta v prízemí
- Stropná výška 2,6 m na poschodí
- Do poschodia otvárajúca sa galéria s oceľovým zábradlím
- Svetlá kúpeľňa s rohovou vaňou a sprchou bez prahu na poschodí
- Útulný ateliér na podkroví
- Zakrivené oceľové schody s bukovými schodmi do poschodia a podkrovia
- Dánske drevené okná a strešné okná (s ochrannými markízami proti horúčavám na poschodí a podkroví)
- Vysoko kvalitná a udržateľná izolácia z korkového granulátu a celulózových vločiek
- Prírodná regulácia vlhkosti cez hlinenú omietku na stenách a šikmých strešných plochách
- Bezškodlivý vnútorný natierací náter z vápna, kazeínu a silikátových farieb
- Podlahy v prízemí z odolného dlažobného materiálu typu Cotto alebo Terrazzo
- Podlahová úprava na poschodí z borovicových dosiek s proti-rúchmitovou izoláciou, obklady v kúpeľni
- Vysoko kvalitná bezškodlivá koberčeková podlaha v ateliéri
- Prírodné viditeľné drevené stropné trámy a nosníky
Technika:
- Vysoko efektívne plynové kondenzačné kúrenie v solárnom zásobníku vrstiev
- Solárna termika s 7,5 m² a solárna podpora vykurovania
- Bezpečná ochrana pred Legionellou pomocou ohrevu teplej vody cez platňový výmenník tepla
- Hydraulické vyváženie vykurovacej sústavy
- Nočné zníženie teploty
- Prirodzené vetranie okien
- Krb pre pripojenie dreveného ohrievača
- Podlahové kúrenie v prízemí
- Stienkové kúrenie na šikmých strešných plochách v poschodí
- Fotovoltaický systém s inštaláciou 6,75 kWp a 5 kWh akumulátorom (2022)
- Rýchly internet – optické pripojenie až do 1000 Mbit/s
- Príprava na wallbox v garáži, 400 V pripojenie
- Regénačná cisterna z betónu s objemom 5000 l na využitie dažďovej vody
Exteriér:
- Prijazdová cesta s 2–3 parkovacími miestami, málo priestoru pri ulici
- Masívna murovaná veľká garáž a miestnosť na záhradné náradie
- Záhrada upravená ako park s rozmanitou kvetinovou lúkou, orechovými a ovocnými stromami
- Veľká južná terasa cez dve strany domu
- Vstupná prístrešok z oceľových profilov a tvrdeného skla
- Masívne murované vonkajšie múry s červenou omietkou (U-hodnota 0,21 W/m²K)
- Drevené príčnice so závesnou fasádou z prírodného larixového dreva (U-hodnota 0,17 W/m²K)
- Strecha krytá červenými keramickými tehličkami (U-hodnota 0,17 W/m²K)
Kľúčové slová pre internetové informácie
moderná hlinená výstavba v praxi
ekologická výstavba
Wikipedia: Haseldorf
NDR: Haseldorfer Marsch – prírodný idyl pri Labe
Amt-Geest-und-Marsch-Südholstein: Obec Haseldorf
Máte záujem, budeme sa tešiť na vašu správu.
Exkluzívna 360-stupňová prehliadka je k dispozícii na záujem a na požiadanie.
Parametre nehnuteľnosti
| Vek | Nad 50 rokov |
|---|---|
| Dispozícia | 3+kk |
| PENB | A - Mimoriadne úsporné |
| Plocha pozemku | 854 m² |
| Cena za jednotku | 4 683 € / m2 |
| Stav | Dobrý |
|---|---|
| Číslo inzerátu | 997254 |
| Úžitková plocha | 145 m² |
| Celkové poschodia | 3 |
Čo táto nehnuteľnosť ponúka?
| Garáž | |
| MHD 2 minúty pešo |
| Parkovanie | |
| Terasa |
V okolí nehnuteľnosti nájdete
Stále hľadáte to pravé?
Nastavte si strážneho psa. Ponuky vybrané na mieru dostanete súhrnne 1× denne e-mailom. S Premium profilom máte po ruke rovno 5 strážcov a keď sa niečo objaví, informujú vás obratom.

































