
Predaj domu 6+1 • 165 m² bez realitky, Bádensko-Wurttembersko
, Bádensko-WurttemberskoMHD 1 minúta pešo • ParkovanieV samotnom srdci Backnangu. Uprostred zelene. Rodinný dom s tepelným čerpadlom.
Na predaj je skutočné rodinné sídlo v atraktívnej lokalite v Backnangu. Postavený v roku 1930 – v jadre dôkladne zrekonštruovaný s dostatočným priestorom pre individuálne prestavby a bývanie. Technicky je vybavený zemným tepelným čerpadlom a kvalitnou fasádnou izoláciou podľa moderných štandardov (energetická trieda A). V prípade dodatočnej potreby tepelného komfortu je možné využiť modernú remeselne vyrobenú pec na drevo. Celý dom sa nachádza v ustálenom obytnom prostredí na upokojenej uličke.
Jadrová rekonštrukcia, strecha, okná a fasádna izolácia boli zrealizované v rokoch 2006 a 2007, kúrenie v roku 2018, pričom carport s priestorom na bicykle a fotovoltaický systém boli postavené v roku 2016.
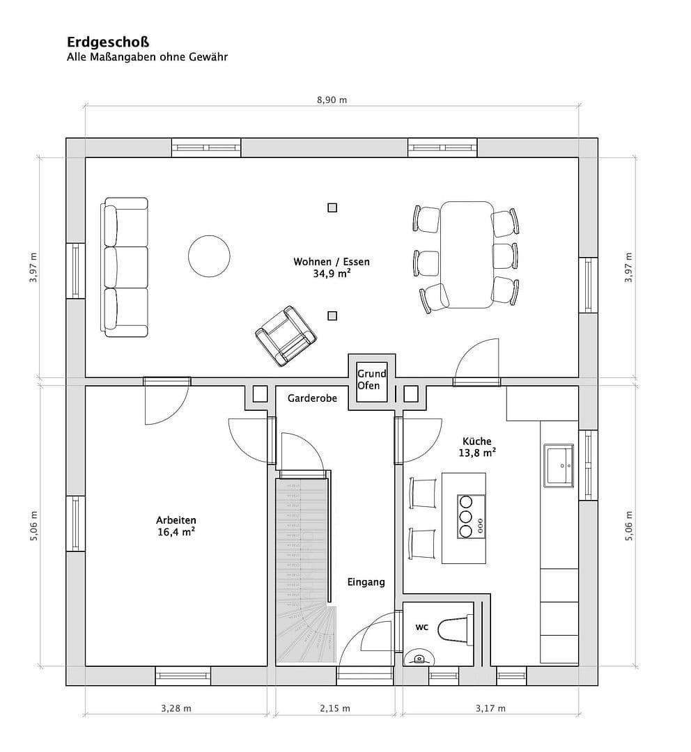
Priestranná, otvorená jedálne-obývacia izba je srdcom domu. Podlahové okná orientované na juh umožňujú prienik veľkého množstva denného svetla a ponúkajú krásny výhľad do záhrady. Kvalitná zabudovaná kuchyňa zabezpečuje ideálne podmienky pre rodinný život i náročnejšie varenie a harmonicky zapadá do celkového konceptu.
Osobné ústupové priestory sa nachádzajú v hornom poschodí: dve detské izby, spálňa pre rodičov a moderná, svetlá kúpeľňa s denným svetlom. Design kúpeľňa je vhodná pre rodiny a moderná; užívatelia majú na výber medzi priestrannou sprchou s oblúkom a komfortnou vaňou. Miestnosť je vybavená moderným odvodňovacím systémom.
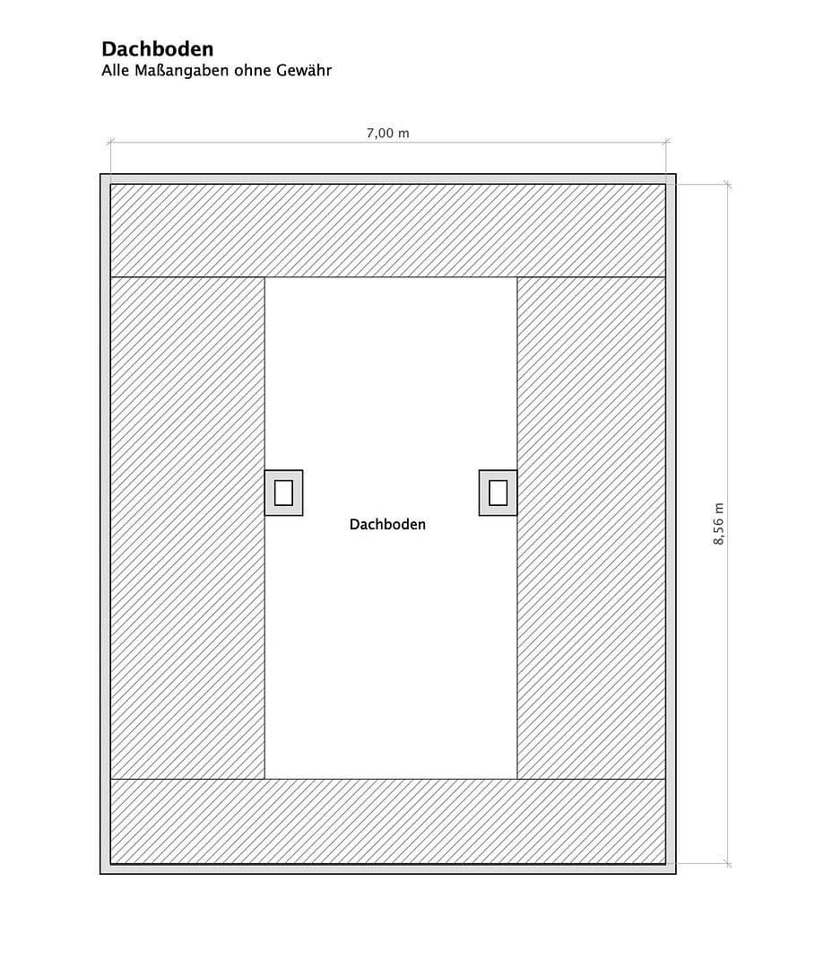
V suteréne sa nachádza veľkorysá hobby miestnosť, funkčná práčovňa a klenutá pivnica, ktorú je možné podľa potreby využiť ako sklad alebo vinný pivničný priestor. Podkrovie ponúka ďalší potenciál – je dimenzované tak, že jeho predelanie na ďalšiu obytnú plochu je dobre realizovateľné (samozrejme v prípade získania príslušných úradných povolení a po technickej kontrole). Tento dom je teda obzvlášť vhodný pre kupcov, ktorí ocenia nielen okamžite použiteľnú obytnú plochu, ale aj dlhodobé možnosti rozvoja.
Kúrenie zabezpečuje zemné tepelné čerpadlo, ktoré pracuje efektívne a ekologicky a pomáha znižovať bežné náklady na energiu. Doplnením je remeselne vyrobená pec, ktorá poskytuje príjemné tepelné žiarenie, pričom viditeľný oheň vytvára výnimočnú atmosféru počas chladnejších období roka.
Príjemná terasa pred domom pozýva na grilovanie, oslavy a relaxáciu a počas letných mesiacov tvorí stredobod života na čerstvom vzduchu. Z vonkajšieho posedenia so slnečným plachtou vedie prírodný kameňový schod do nádhernej prírodnej záhrady.
V exteriéri ponúka carport vybavený nabíjacou stanicou (wallbox), priestorom na skladovanie dreva a samostatný priestor na bicykle komfortné a chránené úložné možnosti pre vozidlá a bicykle. Na streche carportu bol v roku 2020 nainštalovaný balkonový fotovoltaický systém, ktorý umožňuje výrobu vlastnej elektriny.
Nehnuteľnosť sa nachádza na juhozápadnom okraji Backnangu, štvrtého najväčšieho mesta v okrese Rems-Murr s približne 38 000 obyvateľmi. Backnang leží dopravne výhodne, približne 30 kilometrov severovýchodne od Stuttgartu, a zároveň je len niekoľko kilometrov od prírodného parku Schwäbisch-Fränkischer Wald. Ako regionálne centrum disponuje Backnang všetkými školskými zariadeniami a obchodnými možnosťami.
Dostupnosť:
• Stuttgart – centrum: cca 30–40 min (S-Bahn/regionálny vlak/osobné auto)
• Letisko Stuttgart: cca 60 min (S-Bahn)
• Heilbronn: cca 45 min (osobným autom)
• Ludwigsburg: cca 30 minút (S-Bahn/osobným autom)
• Samostatne stojaci rodinný dom, postavený v roku 1930, zmodernizovaný
• Veľká, upravená záhrada s viacerými úrovňami a nezablokovateľným výhľadom
• Nachádza sa na upokojenej uličke (slepa ulica)
• Terasa určená na grilovanie a oslavy
• Carport s nabíjacou stanicou (wallbox) a priestorom na bicykle
• Nádor aj centrum mesta dosiahnuteľné pešo za pár minút
• Energeticky zrekonštruovaný
• Dodatočný zdroj kúrenia: remeselne vyrobená pec
• Okamžite k nasťahovaniu
Parametre nehnuteľnosti
| Vek | Nad 50 rokov |
|---|---|
| Stav | Po rekonštrukcii |
| Číslo inzerátu | 997253 |
| Úžitková plocha | 165 m² |
| Celkové poschodia | 2 |
| Dostupné od | 9. 3. 2026 |
|---|---|
| Dispozícia | 6+1 |
| PENB | A - Mimoriadne úsporné |
| Plocha pozemku | 675 m² |
| Cena za jednotku | 4 661 € / m2 |
Čo táto nehnuteľnosť ponúka?
| Pivnica | |
| MHD 1 minúta pešo |
| Parkovanie | |
| Terasa |
V okolí nehnuteľnosti nájdete
Stále hľadáte to pravé?
Nastavte si strážneho psa. Ponuky vybrané na mieru dostanete súhrnne 1× denne e-mailom. S Premium profilom máte po ruke rovno 5 strážcov a keď sa niečo objaví, informujú vás obratom.
















































