
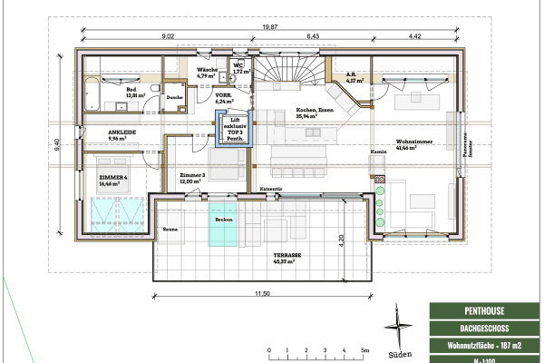
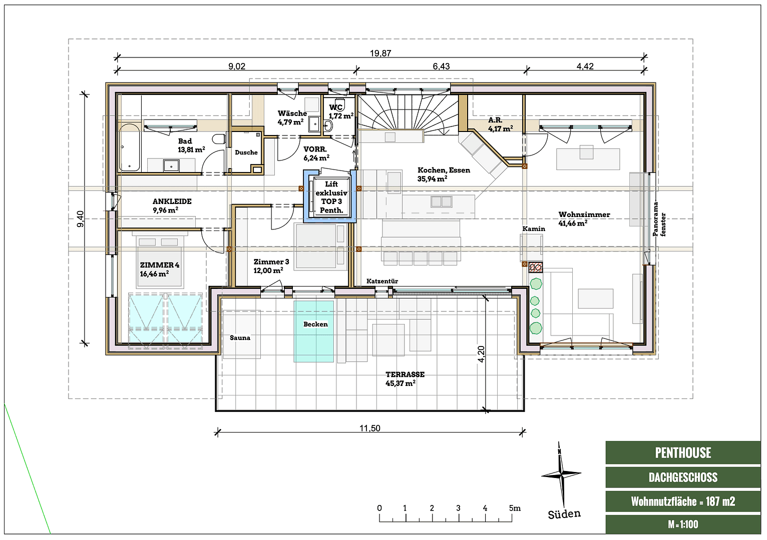
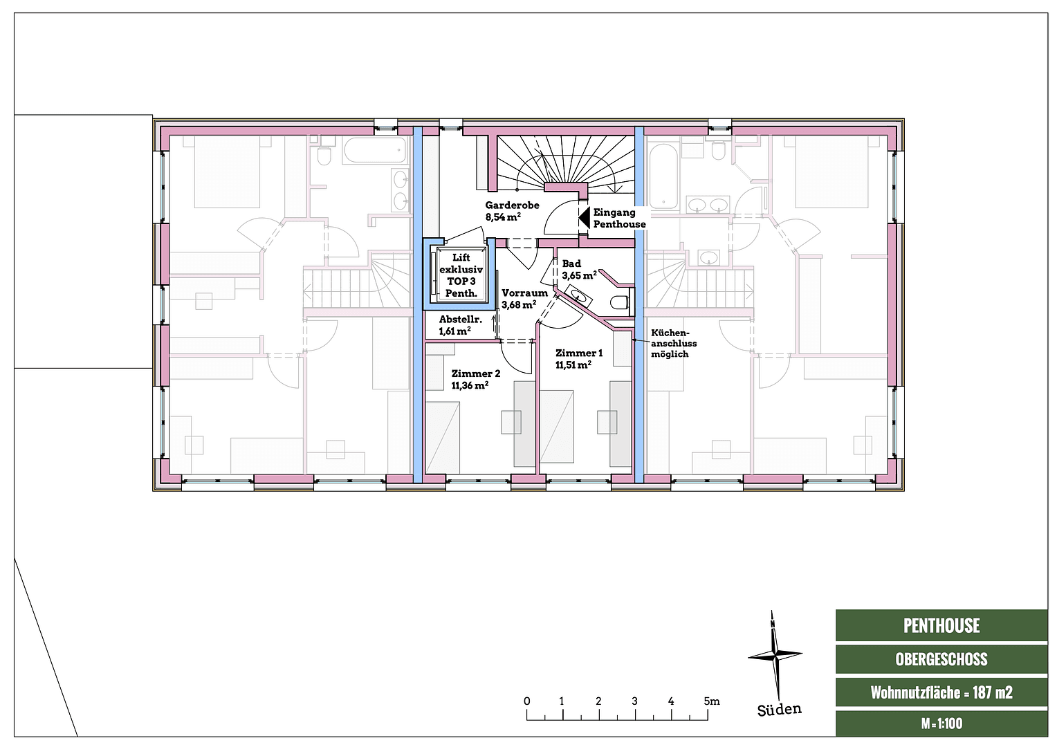
Predaj bytu 5+1 • 187 m² bez realitkyDraxlerstraße Hallwang Salzburg 5300
Draxlerstraße Hallwang Salzburg 5300MHD 5minút pešo • Výťah • Parkovanie • GarážFantastická panoráma, priestranné priestory a absolútny komfort.
• Maisonette Penthouse – s výťahom na obe poschodia
• 187 m² obytných priestorov
• Výška miestností až 3,35 m
• 77 m² veľký jedálenský a obývací priestor
• 4 spálne
• Obe izby na prízemí sú zariadené ako malý samostatný priestor s vlastnou kúpeľňou – sú vhodné aj ako kancelária alebo hosťovský priestor
• 45 m² strešná terasa s malou vonkajšou saunou a možnosťou menšieho bazéna
• Slávny výhľad na Untersberg
• 3 mimoriadne veľké parkovacie miesta pre osobné automobily s výškou 2,50 m, zabezpečujúce bezbariérový prístup k suterénnemu priestoru, sú zahrnuté v kúpnej cene
• Suterénny priestor s rozlohou 30 m², vybavený odtokovým umývadlom a dielňou
• Inštalácia výťahu ešte nebola vykonaná, avšak je zahrnutá v cene. Môžete si vybrať medzi klasickým rýchlejším výťahom s vyššími prevádzkovými nákladmi a kabínovým výťahom s nižšou rýchlosťou a takmer zanedbateľnými prevádzkovými nákladmi.
• Vidiecka podlaha z dubovej dosky a ručne vyrobená talianska Cottopodlaha
• Vynikajúce energetické hodnoty, nízke prevádzkové náklady
HWB 27 kWh/m²a
fGEE 0,53 = najlepšia energetická trieda A++
• Malá bytová zástavba so len 4 byty
• Rok výstavby 2020
Vitajte v Hallwangu pri Salzburgu,
očarujúcom mieste na severnom okraji Salzburgu, kde sa spájajú vidiecka idyla a bývanie blízko mesta.
V bezprostrednom okolí nájdete všetko, čo potrebujete pre každodenný život: obchodné domy, lekáreň, lekári, mäsiar, čerpacia stanica … a oveľa viac je rýchlo dostupné.
A ak by ste potrebovali ešte viac:
Linka MHD O-Bus číslo 4 zabezpečuje rýchle spojenie do centra mesta, resp. historické centrum Salzburgu je na bicykli dosiahnuteľné za menej ako 15 minút.
Nadšenci športu ocenia aj okolitú cyklistiku a behové trate, milovníci prírody krásne prechádzkové cesty, napríklad na Heuberg, a gurmáni si pochutia v malých, útulných reštauráciách v okolí, ako napríklad „Pfefferschiff“ alebo „Santa Fe“.
S Coccon sa vaše bývacie sny stanú skutočnosťou.
Osobne vás sprevádzam pri vašom bývacom projekte:
Christoph Stangl
Mobil: 0676 – 586 7373
COCCON GmbH
Mayrwiesstraße 27
5300 Hallwang/Mayrwies
coccon_at
Parametre nehnuteľnosti
| Vek | Nad 50 rokov |
|---|---|
| Dispozícia | 5+1 |
| Číslo inzerátu | 997130 |
| Úžitková plocha | 187 m² |
| Stav | Veľmi dobrý |
|---|---|
| Poschodie | 2. poschodie z 2 |
| PENB | A - Mimoriadne úsporné |
| Cena za jednotku | 9 358 € / m2 |
Čo táto nehnuteľnosť ponúka?
| Balkón | |
| Pivnica | |
| Výťah | |
| MHD 5 minút pešo |
| Bezbariérový prístup | |
| Garáž | |
| Parkovanie | |
| Terasa |
V okolí nehnuteľnosti nájdete
Stále hľadáte to pravé?
Nastavte si strážneho psa. Ponuky vybrané na mieru dostanete súhrnne 1× denne e-mailom. S Premium profilom máte po ruke rovno 5 strážcov a keď sa niečo objaví, informujú vás obratom.

















