
Predaj bytu 5+1 • 187 m² bez realitkyDraxlerstraße, Hallwang Esch Salzburg 5020
Draxlerstraße, Hallwang Esch Salzburg 5020MHD 6minút pešo • Výťah • Parkovanie • GarážFantastická panoráma, priestranné priestory a absolútny komfort.
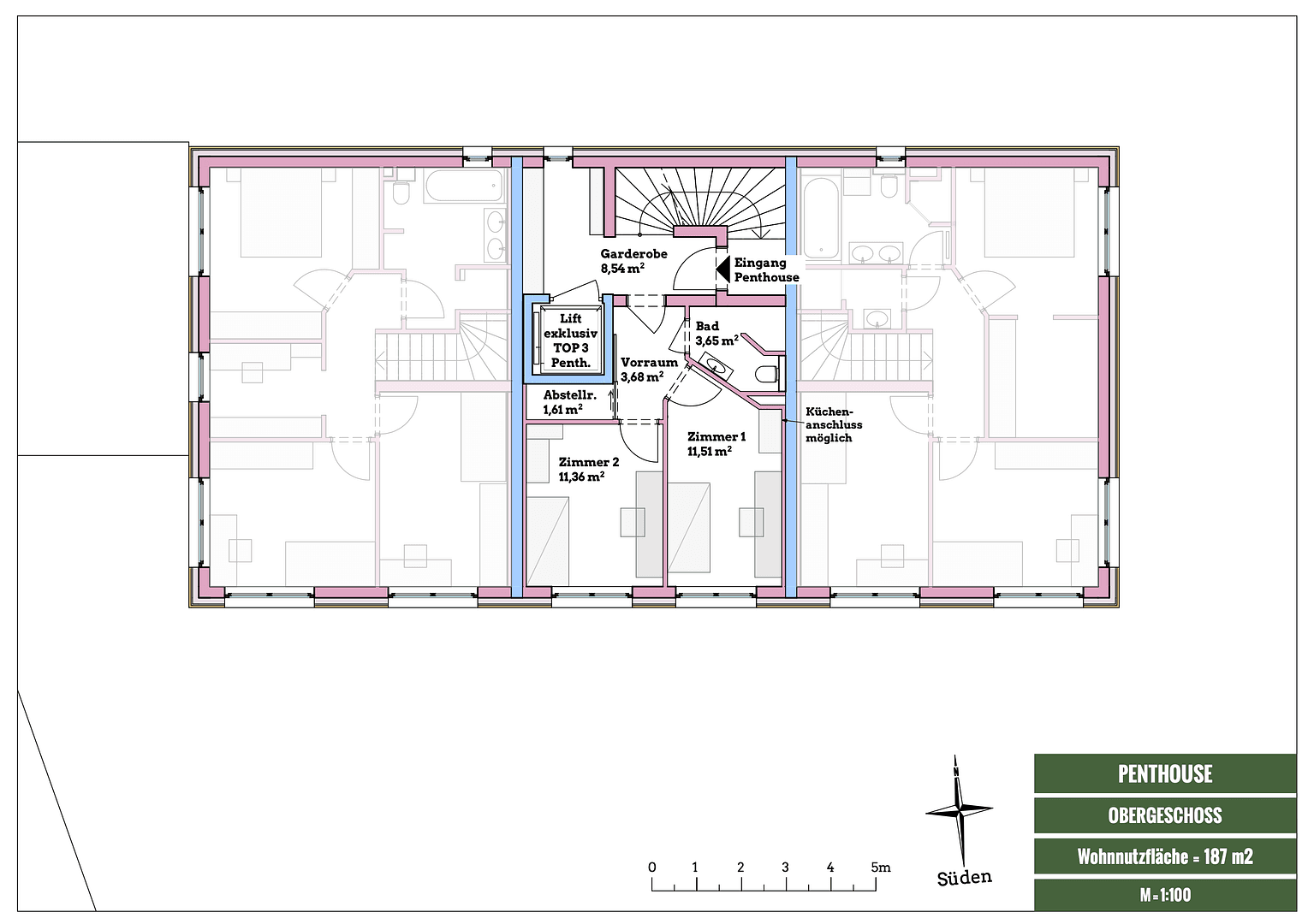
• Maisonette Penthouse – s výťahom do oboch poschodí
• 187 m² obytná plocha
• Výška miestností až 3,35 m
• 77 m² veľká jedálenská a obývacia časť
• 4 spálne
• Dve izby na vstupnej úrovni sú zariadené ako malá samostatná časť s vlastnou kúpeľňou – tiež vhodné ako kancelária alebo priestor pre hostí
• 45 m² strešná terasa s malou exteriérovou saunou a možnosťou malého bazéna
• Skvelý výhľad na Untersberg
• 3 nadrozmerné, 2,50 m vysoké komfortné parkovacie miesta pre automobily, s bezbariérovým prístupom do pivničného oddelenia, sú zahrnuté v cene
• Pivničné oddelenie s rozlohou 30 m², vybavené odtokovou mísou a dielňou
• Inštalácia výťahu zatiaľ nebola vykonaná, ale je zahrnutá v cene. Môžete si vybrať medzi klasickým výťahom s vyššou rýchlosťou a vyššími prevádzkovými nákladmi alebo kabinovým výťahom s nižšou rýchlosťou a veľmi nízkymi prevádzkovými nákladmi
• Vidiecke dosky z dubového dreva a ručne vyrábaná talianska Cotto podlaha
• Vynikajúce energetické hodnoty, nízke prevádzkové náklady
HWB 27 kWh/m²a
fGEE 0,53 = najlepšia energetická trieda A++
• Malá obytná zástavba pozostávajúca len zo 4 bytov
• Rok výstavby: 2020
Vitajte v Hallwang pri Salzburgu,
očarujúcom mieste na severných okrajoch Salzburgu. Tu sa spájajú vidiecka idylka a bývanie v blízkosti mesta.
V bezprostrednom okolí nájdete všetko, čo potrebujete pre každodenný život: obchodný dom, lekáreň, lekári, mäsiara, čerpaciu stanicu… a oveľa viac je rýchlo dostupné.
A ak budete potrebovať ešte niečo:
Linka O-Bus č. 4 zabezpečuje rýchle spojenie do centra mesta, prípadne je staré mesto Salzburgu na bicykli dosiahnuteľné za menej ako 15 minút.
Športoví nadšenci ocenia aj okolité cyklistické a bežecké trasy, milovníci prírody krásne prechádzky, napríklad na Heuberg, a gurmáni malé, výnimočné reštaurácie v okolí, ako napríklad "Pfefferschiff" alebo "Santa Fe".
So spoločnosťou Coccon sa rozvinú vaše bývateľské sny.
Osobne vás sprevádzam pri vašom bývateľskom projekte:
Christoph Stangl
Mobil: 0676 - 586 7373
COCCON GmbH
Mayrwiesstraße 27
5300 Hallwang/Mayrwies
coccon_at
Parametre nehnuteľnosti
| Vek | Nad 50 rokov |
|---|---|
| Dispozícia | 5+1 |
| Číslo inzerátu | 997124 |
| Úžitková plocha | 187 m² |
| Stav | Veľmi dobrý |
|---|---|
| Poschodie | 2. poschodie z 2 |
| PENB | A - Mimoriadne úsporné |
| Cena za jednotku | 9 358 € / m2 |
Čo táto nehnuteľnosť ponúka?
| Balkón | |
| Pivnica | |
| Výťah | |
| MHD 6 minút pešo |
| Bezbariérový prístup | |
| Garáž | |
| Parkovanie | |
| Terasa |
V okolí nehnuteľnosti nájdete
Stále hľadáte to pravé?
Nastavte si strážneho psa. Ponuky vybrané na mieru dostanete súhrnne 1× denne e-mailom. S Premium profilom máte po ruke rovno 5 strážcov a keď sa niečo objaví, informujú vás obratom.

















