
Prenájom bytu 3+1 • 75 m² bez realitkyHorní, Úžice - Úžice u Kralup nad Vltavou, Středočeský kraj
Nabízím k pronájmu světlý, zrekonstruovaný byt 3+1 (cca 75 m²) v 1. patře bytového domu v Úžicích
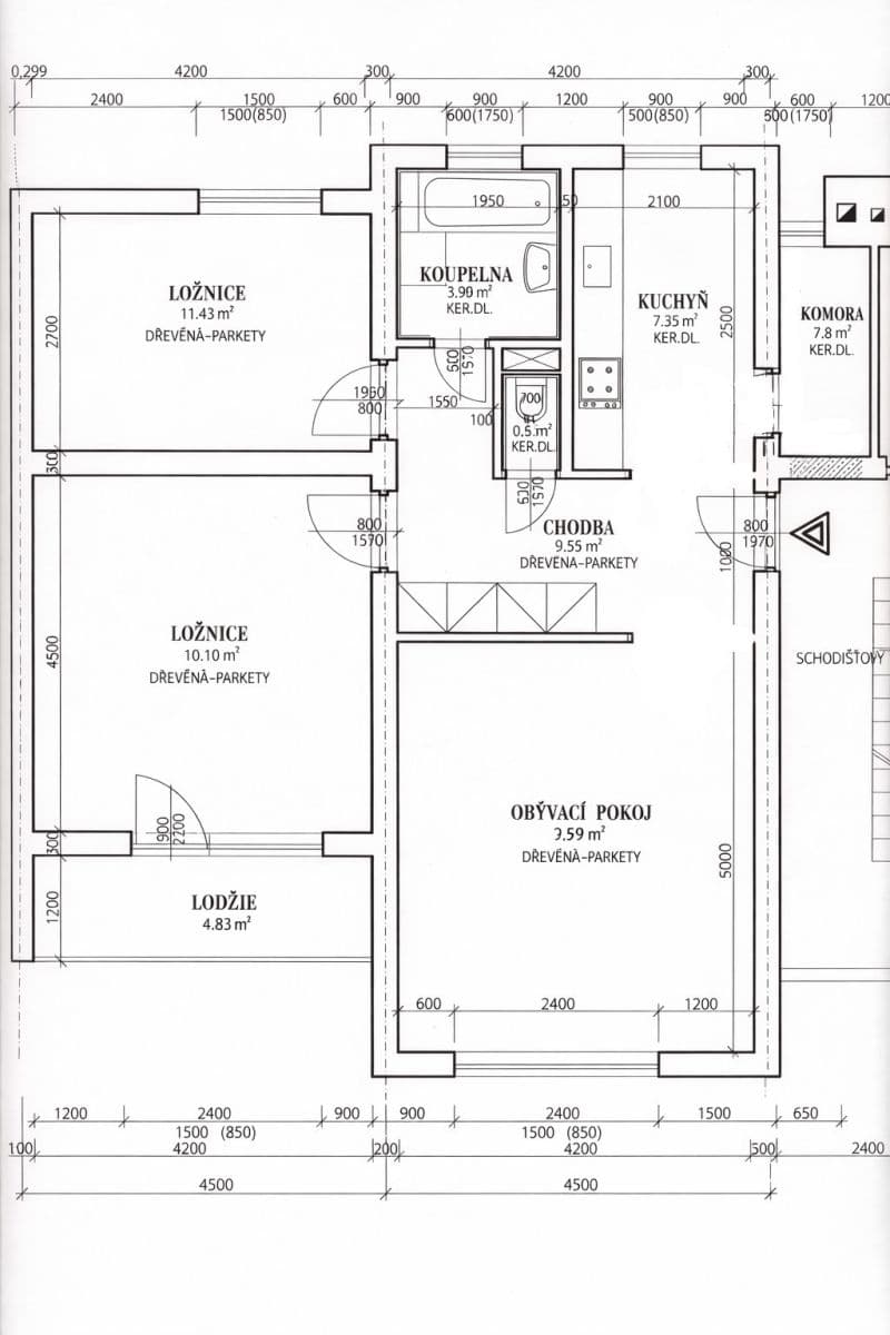
Nabízím k pronájmu velmi příjemný a světlý byt o dispozici 3+1 v 1. patře menší dvoupodlažní bytovky se čtyřmi byty v klidné části obce Úžice.
Nájem je ideální pro ty, kdo hledají klidné bydlení - lokalita i provoz domu jsou klidné. Stejný přístup očekávám od nájemníků :-)
Před domem se nachází dětské hřiště, vedle domu obecní park.
Škola, školka, autobusová zastávka, vlaková zastávka do 10 minut chůzce.
Obchod, pošta 3-5 minut chůze.
Součástí pronájmu je garáž cca 15 m2. Před garáží se nachází stání ze zámkové dlažby pro 2 auta.
Byt prošel rekonstrukcí a je ve velmi dobrém stavu. Dominantou interiéru jsou nové dřevěné podlahy, které dodávají prostoru teplo a nadčasový vzhled. Díky orientaci a větším oknům je byt přirozeně světlý po celý den.
Dispozice
- prostorný obývací pokoj
- dvě samostatné ložnice
- kuchyně s jídelním koutem
- koupelna (vana, sprchová zástěna s hlavovou sprchou)
- samostatné WC
- praktická komora (technická místnost)
- chodba s úložnými prostory (vestavná skříň rozdělená na 3 části)
Byt nabízím částečně vybavený:
- gauč v obývacím pokoji, skříňka pod TV, jídelní stůl a židle
- moderní kuchyňská linka se spotřebiči: indukční varná deska, trouba, myčka, digestoř
- lednice s mrazákem
- pračka
- klimatizace pro komfort v letních měsících
Technické informace
- vytápění: plynové
- klimatizace
- klidný dům o 4 bytových jednotkách
Obec Úžice nabízí dobrou dostupnost do Prahy i okolních měst a zároveň klidné bydlení v menší obci s dobrou občanskou vybaveností (autobusy, vlak, obchod, pošta, MŠ a ZŠ do 5. třídy v obci).
Dopravní napojení vzhledem k D8 velmi dobré, hned u nájezdu na D8 je nově retail park s obchody, lékárnou i restauracemi.
Byt je vhodný pro pár či rodinu, kteří hledají světlé, čisté a funkčně řešené bydlení.
Pro více informací či sjednání prohlídky mě neváhejte kontaktovat.
Realitní kanceláře nevolat!
Parametre nehnuteľnosti
| Dostupné od | 3. 3. 2026 |
|---|---|
| Konštrukcia budovy | Tehla |
| Vybavené | Čiastočne |
| Číslo inzerátu | 997028 |
| Úžitková plocha | 75 m² |
| Stav | Veľmi dobrý |
|---|---|
| Dispozícia | 3+1 |
| Poschodie | 1. poschodie z 2 |
| Umiestnenie | Tichá lokalita |
| Cena za jednotku | 293 CZK / m2 |
Čo táto nehnuteľnosť ponúka?
| Garáž | |
| Parkovanie |
| Lodžia 4,8 m² |
V okolí nehnuteľnosti nájdete
Stále hľadáte to pravé?
Nastavte si strážneho psa. Ponuky vybrané na mieru dostanete súhrnne 1× denne e-mailom. S Premium profilom máte po ruke rovno 5 strážcov a keď sa niečo objaví, informujú vás obratom.
























