
Prenájom domu 5+1 • 135 m² bez realitky, Dolné Sasko
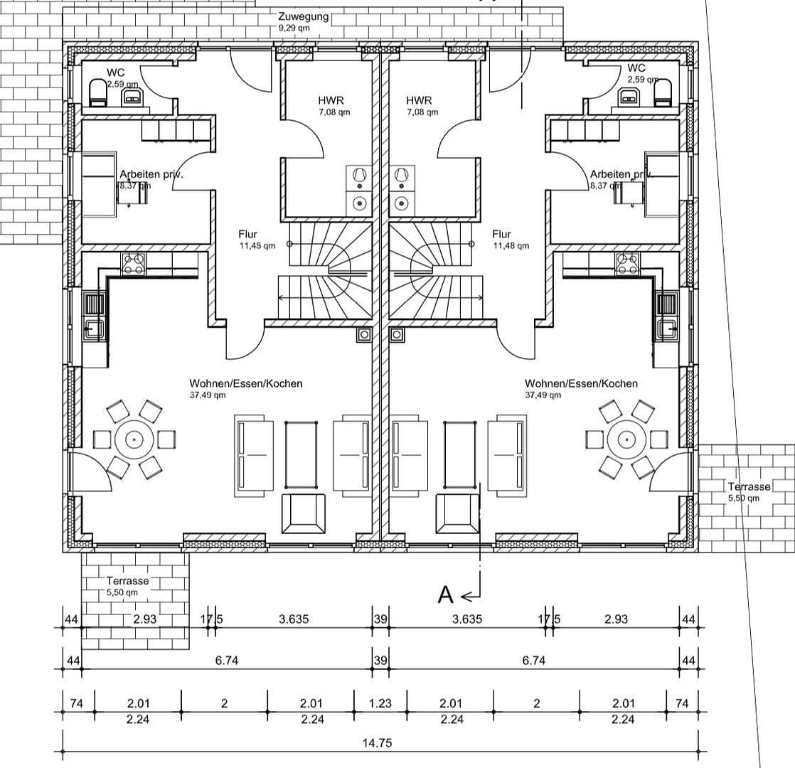
, Dolné SaskoMHD 3 minúty pešo • ParkovanieTento kvalitný dvojdom v štýle mestského sídla bol dokončený v roku 2022 a ponúka moderné bývanie na výbornom mieste – polovica je ešte k dispozícii. Diaľnica a vlaková stanica sa nachádzajú v bezprostrednej blízkosti. Mesta Hannover (cca 25 minút), Brém (cca 50 minút) a Hamburg (cca 90 minút) sú pohodlne dostupné autom alebo vlakom.
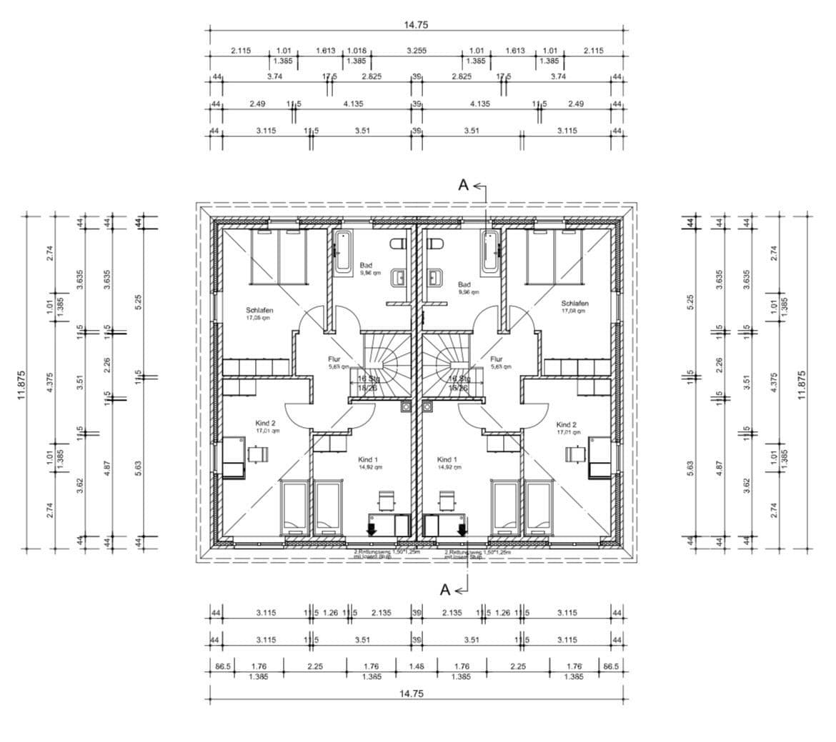
Dom zaujme premysleným vybavením: podlahové kúrenie v celom bývacom priestore, prípojka pre krb na útulné večery, ako aj vlastná terasa pre každú časť domu. Hosťovské WC a moderná kúpeľňa so sprchou a vaňou ponúkajú vysoký komfort bývania. Otvorená, moderná kuchyňa je harmonicky začlenená do obývacej časti a vytvára príjemnú atmosféru. Polovicu dvojdomu vykurova moderné plynové kúrenie.
Prehľad vybavenia:
• Elektrické rolety v celom dome
• Optické pripojenie pre rýchly internet
• Parkovacie miesto pre automobil
• Moderné dlažby v celom dome
Supermarkety, lekári, školy a materská škôlka sú pešo dostupné len 5–10 minút – ideálne pre rodiny alebo dochádzajúcich do práce.
Základný nájom činí 1 350 €, poplatky sú paušálne 150 €.
V prípade záujmu o dohodnutie prehliadky mi, prosím, zavolajte na číslo 015223418976.
Pozrite si opis objektu.
Parametre nehnuteľnosti
| Vek | Nad 50 rokov |
|---|---|
| Stav | Veľmi dobrý |
| Číslo inzerátu | 996909 |
| Plocha pozemku | 666 m² |
| Cena za jednotku | 10 € / m2 |
| Dostupné od | 1. 6. 2026 |
|---|---|
| Dispozícia | 5+1 |
| Úžitková plocha | 135 m² |
| Celkové poschodia | 2 |
Čo táto nehnuteľnosť ponúka?
| Parkovanie | |
| Terasa |
| MHD 3 minúty pešo |
V okolí nehnuteľnosti nájdete
Stále hľadáte to pravé?
Nastavte si strážneho psa. Ponuky vybrané na mieru dostanete súhrnne 1× denne e-mailom. S Premium profilom máte po ruke rovno 5 strážcov a keď sa niečo objaví, informujú vás obratom.


















